Moderne Doppelhaushälfte in Pilchowo bei Stettin – naturnah und familienfreundlich
274,000 € 290,000 €
Opis
Stilvoller Doppelhaushälfte in Waldnähe – Pilchowo
Willkommen in Ihrem zukünftigen Zuhause in Pilchowo – einem ruhigen Ort vor den Toren von Stettin, eingebettet in eine charmante Naturlandschaft mit direktem Zugang zum Wald. Diese moderne Doppelhaushälfte befindet sich auf einem ruhig gelegenen Grundstück in einem kleinen, gepflegten Wohnviertel und bietet Ihnen auf ca. 155 m² Gesamtfläche und einem eigenen Grundstück von ca. 436 m² ein komfortables Lebensumfeld für die ganze Familie.
Komfortabler Wohnraum mit durchdachter Architektur
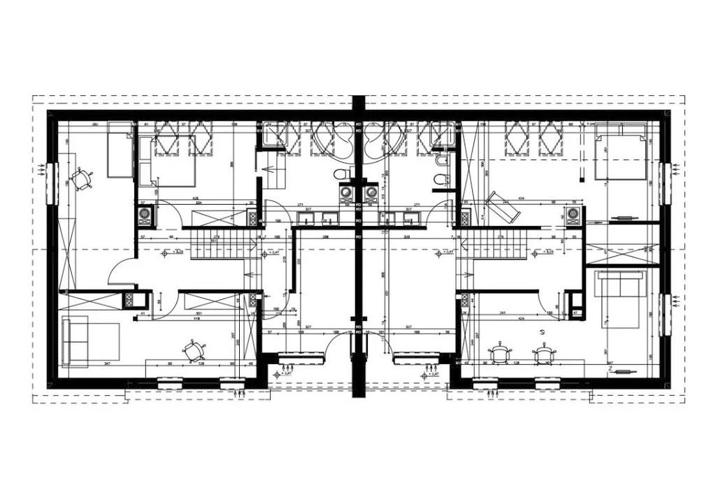
Die Immobilie wurde im Jahr 2022 mit viel Liebe zum Detail und hochwertigen Materialien errichtet. Sie verfügt über ca. 136,7 m² Wohnfläche sowie ca. 18,8 m² Garage mit direktem Zugang zum Haus. Dank ihrer funktionalen Aufteilung eignet sie sich sowohl als großzügiges Familienhaus als auch für eine Kombination aus Wohnen und Arbeiten.
Hochwertige Ausstattung im geschlossenen Rohbauzustand (Premium-Ausführung)
Die angebotene Ausbaustufe inkludiert bereits zahlreiche hochwertige Bauelemente:
- Fußbodenheizung im Erdgeschoss
- Moderne Elektro- und Sanitärinstallationen
- Sicherheits-Eingangstür der Klasse RC2 mit P4-Verglasung von "Wiśniowski"
- Dreifachverglaste Qualitätsfenster von "Sokółka" mit hervorragenden Wärme- und Schalldämmwerten (UW = 0,80 W/m²K), inklusive warmer, mehrschichtiger Montage
- Bodenplatten und Innenputz
- Hocheffiziente Wärmepumpe von "Nibe"
- Zufahrts- und Grundstückstor von "Wiśniowski"
- Dachdeckung aus geprägter Stahlblechdachpfanne von "Braas"
- Schornsteinsystem von "Hoch" – vorbereitet für Kamininstallation
Wand- und Deckenkonstruktionen
- Tragende Innenwände aus Silikatsteinen mit Zement-Kalk-Putz
- Nichttragende Trennwände ebenfalls aus Silikat mit Putzbeschichtung
- Zwischendecke aus 16 cm Stahlbetonplatte mit 7 cm Betonestrich, vorbereitet für Fußbodenheizung, und 2 cm Bodenbelagsschicht
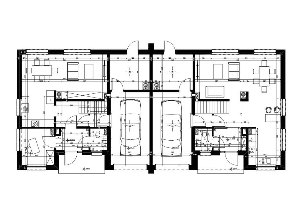
Raumaufteilung (Beispielnutzung)
- Offene Küche (ca. 8 m²)
- Zwei moderne Badezimmer (7,8 m² + 2,3 m²)
- Balkon (2,9 m²)
- Wirtschaftsraum
- Garderobe
- Einladender Garten mit viel Platz zum Entspannen
- Großzügige Garage mit direktem Zugang
Lage mit Lebensqualität
Pilchowo besticht durch seine ruhige, grüne Lage nahe dem Wald – perfekt für Naturliebhaber, Familien und all jene, die Entschleunigung suchen. Gleichzeitig ist die Anbindung an die Stadt Szczecin hervorragend – öffentliche Verkehrsmittel, Einkaufsmöglichkeiten, Schulen und Freizeiteinrichtungen sind in direkter Nähe.
Weitere Ausstattungsmerkmale
- Kunststofffenster
- Kaminvorbereitung
- Barrierefrei
- Stromanschluss vorhanden
- Stadtwasseranschluss
- Abwasser über moderne Abwasseranlage
- Ruhige Straße – ideale Wohnlage
- Grundstück in rechteckiger Form für einfache Gartengestaltung
Preis
Die Immobilie wird im geschlossenen Rohbauzustand (Premium) zum Preis von ca. €289.400 (PLN 1.229.000) angeboten.
Diese Immobilie ist ideal für internationale Käufer, die eine moderne, bezugsfertige Lösung mit exzellentem Potenzial in naturnaher und dennoch gut erreichbarer Lage suchen.
Verwirklichen Sie Ihren Wohntraum in Pilchowo!
Szczegóły
Haustyp: Doppelhaushälfte
Stadtteil: Pilchowo
Grundstückslage: Flaches Gelände
Gesamtfläche: 155,00 m²
Grundstücksfläche: 436,00 m²
Grundstücksform: Rechteckig
Wohnfläche: 136,70 m²
Grundstückseigentum: Eigentum
Baujahr: 2022
Standard: Sehr gut
Gebäudestatus: Sehr gut
Wandmaterial: Silikat
Küche: Offen
Küchenfläche: 8 m²
Anzahl der Badezimmer: 2
Badezimmerflächen: 7,8 m² + 2,3 m²
Zufahrtsstraße: Ruhige Straße
Anzahl der Etagen (inkl. EG): 1
Heizung: Fußbodenheizung, elektrische Zentralheizung
Stromanschluss: Ja
Abwasser: Sickergrube
Wasserversorgung: Stadtwasser
Belüftung: Ja
Fensterart: Kunststofffenster
Dachdeckung: Blechdachpfanne
Zaun: Maschendraht
Garage: Ja
Garagenplätze: 1
Garten: Ja
Ankleidezimmer: Ja
Hauswirtschaftsraum: Ja
Behindertengerechter Zugang: Ja
Kamin: Ja
Anzahl der Balkone: 1
Balkonfläche: 2,9 m²
Naherholungsgebiete: Park, Wald – in der Nähe
Geschäfte: In der Nähe
Öffentliche Verkehrsmittel: In der Nähe
Frühere Preisangabe: €290.800 (PLN 1.229.000)
Uwaga
- Pierwsze zdjęcie w naszej galerii zostało lekko zmodyfikowane, aby pokazać, jak nieruchomość mogłaby wyglądać – na przykład po zmianie koloru ścian. Kolejne zdjęcia przedstawiają rzeczywisty stan nieruchomości.
- Cena podana w euro odpowiada cenie w złotych, jednak ze względu na wahania kursów walut jest zawsze wartością przybliżoną. W naszych ogłoszeniach zawsze podajemy również cenę w złotych, zgodnie z życzeniem sprzedającego.
Informacje o polskich praktykach rynku nieruchomości:
- Ograniczone informacje o lokalizacji: W Polsce przyjęło się, że ogłoszenia nieruchomości nie ujawniają dokładnego adresu nieruchomości.
- Rzuty: Szczegółowe plany pięter nie zawsze są dostępne w ofertach.
Jako biuro nieruchomości zapewniamy kompleksową obsługę. Reprezentujemy Cię jako kupującego.
Współpracujemy ze sprawdzonymi partnerami (wycena nieruchomości, doradztwo prawne i podatkowe, tłumaczenia przysięgłe, remonty).
Przy inwestycjach kapitałowych oferujemy również zarządzanie nieruchomością.
Osobiste wsparcie – transparentne i kompetentne.
Cechy nieruchomości
- Garage
- Garten
- Garderobe
- Barrierefrei
- Kamin
Te nieruchomości mogą Cię również zainteresować
O nas
Witamy u Twojego partnera na rynku nieruchomości w Szczecinie i na Pomorzu Zachodnim!
Jesteśmy zaangażowanym biurem nieruchomości z wieloletnim doświadczeniem na lokalnym rynku. W naszej ofercie znajdziesz szeroki wybór nieruchomości w Szczecinie oraz atrakcyjne obiekty nad polskim Bałtykiem – do zamieszkania, jako inwestycję kapitałową lub na cele wypoczynkowe.
Mówimy po polsku i po niemiecku, profesjonalnie przeprowadzimy Cię przez cały proces kupna lub sprzedaży. Mieszkanie, dom, działka czy nieruchomość wakacyjna – na pewno znajdziemy odpowiedni adres dla Ciebie!
Zapraszamy na filiżankę kawy do naszego biura lub po prostu skontaktuj się z nami. Czekamy na Ciebie!
Współpraca z nami
Jesteśmy biurem nieruchomości współpracującym z agencjami nieruchomości w województwie zachodniopomorskim. Reprezentujemy wyłącznie jedną stronę transakcji – klienta z Niemiec lub krajów DACH. W jego imieniu negocjujemy cenę, weryfikujemy ofertę i zajmujemy się wszelkimi formalnościami.
Wspieramy naszych klientów również po zakupie i pozostajemy z nimi w kontakcie. Na życzenie pomagamy przy remoncie lub kompleksowej renowacji nieruchomości. Oferujemy również zarządzanie wynajmowanymi nieruchomościami – w Szczecinie i najbliższych okolicach.
Przywiązujemy dużą wagę do jasnych zasad i uczciwości. Nasze prowizje odpowiadają stawkom obowiązującym w Polsce: 3,69% ceny zakupu dla mieszkań i domów oraz 6,15% dla działek. Prowizja jest wymagalna i płatna u notariusza przy podpisaniu umowy.
Współpracujemy z renomowaną, niemieckojęzyczną kancelarią notarialną w Szczecinie.
Korzyści podatkowe
Przy zakupie nieruchomości z rynku wtórnego podatek od czynności cywilnoprawnych wynosi jedynie 2%, a przy rynku pierwotnym nie ma podatku PCC. Dodatkowo podatek od nieruchomości w Polsce jest naliczany od powierzchni i jest bardzo niski.