Stilvolles 3-Zimmer-Apartment im Zentrum von Stettin mit eigenem Eingang & Garten
272,000 € 283,000 €
Opis
Stilvolles Apartment im Herzen von Stettin – ideal für Familien oder ruhige Geschäftstätigkeit
Sie suchen ein komfortables Zuhause im Stadtzentrum oder einen Ort für eine diskrete Geschäftstätigkeit in exzellenter Lage? Dieses charmante Erdgeschossapartment mit separatem Straßeneingang bietet Ihnen beides! Die Wohnung befindet sich im Herzen von Stettin und verfügt über eine großzügige Wohnfläche von 90,97 m².
Highlights der Immobilie:
- Erdgeschoss mit separatem Eingang – ideal für Familien mit Kindern, Senior*innen, Personen mit eingeschränkter Mobilität sowie für stille Tätigkeiten
- Stilvoller Umbau im Jahr 2020 auf Basis professioneller Planung – vollständige technische Dokumentation liegt vor
-
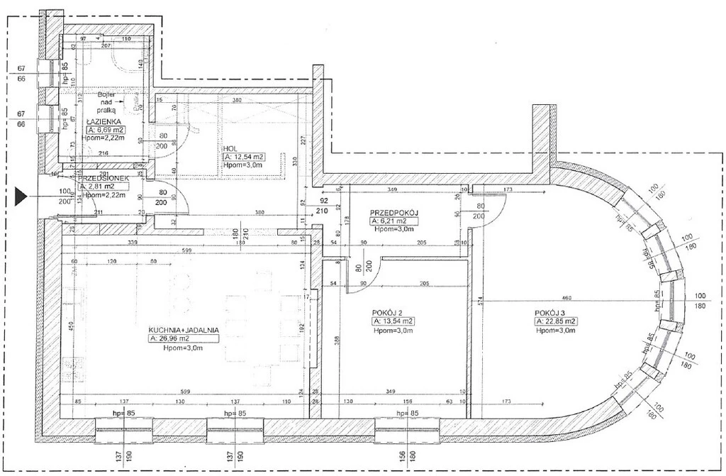
Funktionale Raumaufteilung:
-
Windfang – 2,84 m²
- Flur – 12,58 m²
- Badezimmer – 5,76 m²
- Korridor – 6,25 m²
- Küche mit Essbereich – 26,96 m²
- Schlafzimmer – 13,50 m²
-
Wohnzimmer – 23,09 m²
-
Moderne Küche mit maßgefertigten Einbaumöbeln in Weiß, Granitarbeitsplatten, Kücheninsel, und ausgestattet mit: Backofen, Kühl-Gefrierkombination, Gaskochfeld, Dunstabzugshaube, Geschirrspüler
- Helles Badezimmer mit hochwertigen Materialien, Walk-in-Dusche, Waschmaschine, Grohe Unterputz-WC, moderner Heizkörper, mechanische Belüftung
- Großer Einbauschrank im Flur aus Massivholz
- Massivholz-Innentüren, neue Installationen (Wasser, Gas, Elektrik, Belüftung)
- Zentralheizung, gusseiserne Radiatoren
- Warmwasseraufbereitung über elektrischen Boiler
- Fußböden mit Estrichdämmung, belegt mit Granitfliesen und Holzdielen
- Dreifachverglaste Fenster mit ausgezeichneter Wärme- und Schalldämmung, Granitfensterbänke
- Fensterausrichtung: Südwesten und Nordwesten
- Gebäude mit renovierter Fassade (vor 10 Jahren)
- Überwachungssystem mit Kameras und Bewegungsmeldern
- TV-Anschluss vorhanden
- Gepflegter Gemeinschaftsgartenbereich
Lage – urban, grün und voller Leben
Diese Immobilie befindet sich im historischen Stadtkern von Stettin – einem Viertel, das den Charme der Vergangenheit mit dem Komfort der Moderne vereint. Alles, was Sie für den Alltag brauchen, befindet sich in unmittelbarer Nähe:
- Stadtverwaltung, Jasne Błonia, Kita, Grundschule, Gymnasium, Schwimmbad, Puppentheater, Fitnessstudio – alles fußläufig erreichbar
- Öffentlicher Nahverkehr: Straßenbahnlinien 1, 2, 3, 4, 5 sowie Buslinien 70 und 87
-
Zentrale Highlights der Stadt in der Nähe:
-
Ogrody Śródmieście – ca. 750 m
- Galaxy-Einkaufszentrum – ca. 1,2 km
- Kino Pionier – ca. 1,3 km
- Philharmonie – ca. 1,8 km
Diese einmalige Lage bietet nicht nur urbanes Flair, sondern auch zahlreiche Parkmöglichkeiten direkt vor dem Gebäude (öffentliche Zone).
Weitere Vorteile:
- Hochwertige Baumaterialien
- Kellerraum mit ca. 16 m²
- Monatliche Nebenkosten:
- Hausgeld inkl. Heizung, Wasser, Müll: circa €210 (PLN 900)
- Instandhaltungsrücklage: circa €54 (PLN 230)
- Strom und Gas nach Verbrauch
- Monitoring vorhanden
- Unterstützungsangebote rund um Renovierung und Ausstattung
Freistehende Möbel auf den Fotos sind nicht Bestandteil des Angebots.
Für weitere Informationen oder eine Besichtigung steht unsere Website mit vielen attraktiven Angeboten zur Verfügung. Wir unterstützen Sie auch bei Finanzierung, Kauf, Verkauf und Vermietung Ihrer Immobilie.
Szczegóły
Eigentumswohnung im Herzen der Stadt – Hochwertig, großzügig und mit historischem Charme
Objekttyp: Wohnung
Lage: Stadtzentrum – Stadtteil Śródmieście-Centrum
Wohnfläche: 90,97 m²
Baujahr: 1937
Stockwerk: Erdgeschoss (1 von 1 Etagen)
Raumhöhe: 3,00 m
Bauweise: Massivbau – Ziegel
Zustand: Hochwertiger Standard
Raumaufteilung:
- Zimmergrößen: 27 m², 23 m², 14 m²
- Küche: Halboffen mit Durchreiche – großzügige 27 m²
- Badezimmer: 1
Ausstattung:
- Bodenbeläge: Dielen, Parkett
- Fenster: Kunststofffenster
- Heizung: Fernwärme (Zentralheizung über städtisches Netz)
- Gasanschluss: vorhanden
- Einbaugeräte:
- Kühlschrank
- Backofen
- Geschirrspüler
- Sicherheitsmerkmale:
- Videoüberwachung (Monitoring)
- Gegensprechanlage
- Einfriedung: Komplett umzäuntes Grundstück
Lagevorteile – Alles in der Nähe:
- Öffentliche Verkehrsmittel: fußläufig erreichbar
- Einrichtungen in unmittelbarer Umgebung:
- Supermarkt
- Parkanlagen
- Schwimmbad
- Schule
- Kindergarten
- Universität
- Apotheke
- Bank
- Krankenhaus
- Fitnessstudio
- Gastronomie
- Spielplatz
Diese stilvolle Wohnung besticht durch ihre großzügige Raumhöhe, solide Bausubstanz und moderne Ausstattung. Die Kombination aus altstädtischem Charme und zeitgemäßem Wohnkomfort macht diese Immobilie zu einer idealen Wahl für Familien, Paare oder Investoren.
Dank der sehr zentralen Lage profitieren Sie von kurzen Wegen zu allen Einrichtungen des täglichen Bedarfs sowie zu Bildungs- und Freizeiteinrichtungen.
Ein seltenes Angebot in einem begehrten Stadtteil – vereinbaren Sie noch heute einen Besichtigungstermin!
Uwaga
- Pierwsze zdjęcie w naszej galerii zostało lekko zmodyfikowane, aby pokazać, jak nieruchomość mogłaby wyglądać – na przykład po zmianie koloru ścian. Kolejne zdjęcia przedstawiają rzeczywisty stan nieruchomości.
- Cena podana w euro odpowiada cenie w złotych, jednak ze względu na wahania kursów walut jest zawsze wartością przybliżoną. W naszych ogłoszeniach zawsze podajemy również cenę w złotych, zgodnie z życzeniem sprzedającego.
Informacje o polskich praktykach rynku nieruchomości:
- Ograniczone informacje o lokalizacji: W Polsce przyjęło się, że ogłoszenia nieruchomości nie ujawniają dokładnego adresu nieruchomości.
- Rzuty: Szczegółowe plany pięter nie zawsze są dostępne w ofertach.
Jako biuro nieruchomości zapewniamy kompleksową obsługę. Reprezentujemy Cię jako kupującego.
Współpracujemy ze sprawdzonymi partnerami (wycena nieruchomości, doradztwo prawne i podatkowe, tłumaczenia przysięgłe, remonty).
Przy inwestycjach kapitałowych oferujemy również zarządzanie nieruchomością.
Osobiste wsparcie – transparentne i kompetentne.
Cechy nieruchomości
- Erdgeschoss
- Gas
- Zaun
- Keller
- Garten
Te nieruchomości mogą Cię również zainteresować
O nas
Witamy u Twojego partnera na rynku nieruchomości w Szczecinie i na Pomorzu Zachodnim!
Jesteśmy zaangażowanym biurem nieruchomości z wieloletnim doświadczeniem na lokalnym rynku. W naszej ofercie znajdziesz szeroki wybór nieruchomości w Szczecinie oraz atrakcyjne obiekty nad polskim Bałtykiem – do zamieszkania, jako inwestycję kapitałową lub na cele wypoczynkowe.
Mówimy po polsku i po niemiecku, profesjonalnie przeprowadzimy Cię przez cały proces kupna lub sprzedaży. Mieszkanie, dom, działka czy nieruchomość wakacyjna – na pewno znajdziemy odpowiedni adres dla Ciebie!
Zapraszamy na filiżankę kawy do naszego biura lub po prostu skontaktuj się z nami. Czekamy na Ciebie!
Współpraca z nami
Jesteśmy biurem nieruchomości współpracującym z agencjami nieruchomości w województwie zachodniopomorskim. Reprezentujemy wyłącznie jedną stronę transakcji – klienta z Niemiec lub krajów DACH. W jego imieniu negocjujemy cenę, weryfikujemy ofertę i zajmujemy się wszelkimi formalnościami.
Wspieramy naszych klientów również po zakupie i pozostajemy z nimi w kontakcie. Na życzenie pomagamy przy remoncie lub kompleksowej renowacji nieruchomości. Oferujemy również zarządzanie wynajmowanymi nieruchomościami – w Szczecinie i najbliższych okolicach.
Przywiązujemy dużą wagę do jasnych zasad i uczciwości. Nasze prowizje odpowiadają stawkom obowiązującym w Polsce: 3,69% ceny zakupu dla mieszkań i domów oraz 6,15% dla działek. Prowizja jest wymagalna i płatna u notariusza przy podpisaniu umowy.
Współpracujemy z renomowaną, niemieckojęzyczną kancelarią notarialną w Szczecinie.
Korzyści podatkowe
Przy zakupie nieruchomości z rynku wtórnego podatek od czynności cywilnoprawnych wynosi jedynie 2%, a przy rynku pierwotnym nie ma podatku PCC. Dodatkowo podatek od nieruchomości w Polsce jest naliczany od powierzchni i jest bardzo niski.