Modernes Reihenhaus mit Garten und Garage in familienfreundlicher Lage in Oberende
248,000 €
Opis
Moderne Reihenhaushälfte in begehrter Lage in Bezrzecze
Entdecken Sie dieses großzügige Reihenhaus in einer der gefragtesten Wohngegenden von Bezrzecze. Das moderne Zuhause überzeugt durch hochwertige Ausstattung, durchdachte Raumaufteilung und energieeffiziente Technologien – ideal für Familien oder Paare, die stilvolles Wohnen in naturnaher Umgebung suchen.
Raumaufteilung – durchdacht und funktional
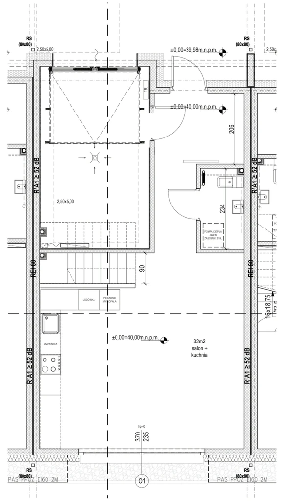
Die Wohnfläche von ca. 121,34 m² verteilt sich auf zwei komfortable Etagen:
Erdgeschoss: - Heller Wohnbereich mit offener Küche – perfekt für gemeinsame Stunden - Gäste-WC - Flur mit praktischem Zugang - Integrierter Garage
Obergeschoss: - Vier vielseitig nutzbare Zimmer – ideal als Schlafzimmer, Büro oder Gästezimmer - Modernes Badezimmer - Verkehrsfläche/Flur
Zudem gehört ein ca. 90 m² großer Gartenanteil zum Haus – ideal zum Genießen sonniger Tage mit Familie oder Freunden.
Ausstattung – modern, nachhaltig und komfortabel
Das Haus wird im gehobenen Rohbauzustand übergeben und überzeugt mit vielen technischen Highlights:
- Fußbodenheizung im gesamten Haus, betrieben über eine umweltfreundliche Wärmepumpe
- Elektrisch bedienbare Außenrollläden an allen Fenstern
- Kontrollierte Wohnraumlüftung mit Wärmerückgewinnung (Rekuperation)
- Vorinstallierte Klimaanlage
- Alarmanlage inklusive Ausstattung
- Videoüberwachung mit Aufzeichnungsgerät
- Energiesparende Bauweise – 40 cm Dämmung mit Mineralwolle
- Großes Hebeschiebetür-Fenster (Typ HS) im Wohnzimmer – für viel Licht und direkten Zugang zum Garten
- Glatt verputzte und weiß gestrichene Wände
Weitere Details
- Immobilientyp: Reihenmittelhaus
- Baujahr: 2025
- Gesamtnutzfläche: ca. 121,34 m²
- Grundstücksgröße: ca. 192 m²
- Heizart: Wärmepumpe
- Warmwasserversorgung: über Wärmepumpe
- Abwasser: kommunale Kanalisation
- Wasserversorgung: Anschluss an das örtliche Netz
- Fenster: Kunststofffenster mit Dreifachverglasung
- Dach: Ziegeldach
- Garage: vorhanden
Ein energieeffizientes und komfortables Zuhause mit zukunftsorientierter Ausstattung wartet auf Sie in einem der attraktivsten Wohnviertel der Region!
Verfügbar: Einheit B auf einem separaten Grundstück.
Nutzen Sie die Gelegenheit! Willkommen in Ihrem neuen Zuhause in Bezrzecze!
Szczegóły
Reihenmittelhaus in moderner Entwicklung, Bezugsfertig 2025
Gesamtfläche: 121,34 m²
Grundstücksfläche: 192,00 m²
Wohnfläche: 121,34 m²
Baujahr: 2025
Baustandard: im erweiterten Rohbau (Entwicklungsstandard)
Bauweise: Silikatstein
Dachdeckung: Dachziegel
Fenster: Kunststofffenster
Etagenanzahl: 1 (inkl. Erdgeschoss)
Ausstattung:
- Küche: offener Küchenbereich
- Heizung: Wärmepumpe
- Wasseranschluss: städtisches Wasser
- Abwasser: städtische Kanalisation
- Sicherheitsausstattung: Alarmanlage und Videoüberwachung
- Garage: vorhanden
Preis: €52.941 (PLN 225.000) brutto
Ein modernes Reihenmittelhaus in attraktiver Lage – ideal für Familien oder Paare, die ein neues Zuhause mit durchdachtem Grundriss und hochwertiger Bauweise suchen. Die Verbindung von moderner Architektur, effizienter Wärmepumpentechnologie und städtischer Infrastruktur bietet hohen Wohnkomfort in einem zukunftssicheren Umfeld.
Uwaga
- Pierwsze zdjęcie w naszej galerii zostało lekko zmodyfikowane, aby pokazać, jak nieruchomość mogłaby wyglądać – na przykład po zmianie koloru ścian. Kolejne zdjęcia przedstawiają rzeczywisty stan nieruchomości.
- Cena podana w euro odpowiada cenie w złotych, jednak ze względu na wahania kursów walut jest zawsze wartością przybliżoną. W naszych ogłoszeniach zawsze podajemy również cenę w złotych, zgodnie z życzeniem sprzedającego.
Informacje o polskich praktykach rynku nieruchomości:
- Ograniczone informacje o lokalizacji: W Polsce przyjęło się, że ogłoszenia nieruchomości nie ujawniają dokładnego adresu nieruchomości.
- Rzuty: Szczegółowe plany pięter nie zawsze są dostępne w ofertach.
Jako biuro nieruchomości zapewniamy kompleksową obsługę. Reprezentujemy Cię jako kupującego.
Współpracujemy ze sprawdzonymi partnerami (wycena nieruchomości, doradztwo prawne i podatkowe, tłumaczenia przysięgłe, remonty).
Przy inwestycjach kapitałowych oferujemy również zarządzanie nieruchomością.
Osobiste wsparcie – transparentne i kompetentne.
Cechy nieruchomości
- Garage
Te nieruchomości mogą Cię również zainteresować
O nas
Witamy u Twojego partnera na rynku nieruchomości w Szczecinie i na Pomorzu Zachodnim!
Jesteśmy zaangażowanym biurem nieruchomości z wieloletnim doświadczeniem na lokalnym rynku. W naszej ofercie znajdziesz szeroki wybór nieruchomości w Szczecinie oraz atrakcyjne obiekty nad polskim Bałtykiem – do zamieszkania, jako inwestycję kapitałową lub na cele wypoczynkowe.
Mówimy po polsku i po niemiecku, profesjonalnie przeprowadzimy Cię przez cały proces kupna lub sprzedaży. Mieszkanie, dom, działka czy nieruchomość wakacyjna – na pewno znajdziemy odpowiedni adres dla Ciebie!
Zapraszamy na filiżankę kawy do naszego biura lub po prostu skontaktuj się z nami. Czekamy na Ciebie!
Współpraca z nami
Jesteśmy biurem nieruchomości współpracującym z agencjami nieruchomości w województwie zachodniopomorskim. Reprezentujemy wyłącznie jedną stronę transakcji – klienta z Niemiec lub krajów DACH. W jego imieniu negocjujemy cenę, weryfikujemy ofertę i zajmujemy się wszelkimi formalnościami.
Wspieramy naszych klientów również po zakupie i pozostajemy z nimi w kontakcie. Na życzenie pomagamy przy remoncie lub kompleksowej renowacji nieruchomości. Oferujemy również zarządzanie wynajmowanymi nieruchomościami – w Szczecinie i najbliższych okolicach.
Przywiązujemy dużą wagę do jasnych zasad i uczciwości. Nasze prowizje odpowiadają stawkom obowiązującym w Polsce: 3,69% ceny zakupu dla mieszkań i domów oraz 6,15% dla działek. Prowizja jest wymagalna i płatna u notariusza przy podpisaniu umowy.
Współpracujemy z renomowaną, niemieckojęzyczną kancelarią notarialną w Szczecinie.
Korzyści podatkowe
Przy zakupie nieruchomości z rynku wtórnego podatek od czynności cywilnoprawnych wynosi jedynie 2%, a przy rynku pierwotnym nie ma podatku PCC. Dodatkowo podatek od nieruchomości w Polsce jest naliczany od powierzchni i jest bardzo niski.