Neubau-Doppelhaushälfte mit Garten in ruhiger Wohnlage von Oberende
283,000 €
Opis
Modernes Doppelhaus mit großzügigem Garten in ruhiger Lage
Willkommen in Ihrem zukünftigen Zuhause! Dieses moderne, komfortable Doppelhaus entsteht im Jahr 2025 in einem charmanten Wohnviertel mit viel Grün und guter Erreichbarkeit. Die Immobilie befindet sich auf einem ebenen, rechteckigen Grundstück mit einer Fläche von 400 m² und besticht durch eine durchdachte Raumaufteilung sowie durch eine hochwertige Ausführung im attraktiven Rohbauzustand („Standard deweloperski“).
Fakten im Überblick:
- Hausart: Doppelhaushälfte
- Wohnfläche: 128 m²
- Grundstück: 400 m²
- Etagenanzahl: 1 (inkl. Erdgeschoss)
- Baujahr: 2025
- Zimmer: Großzügige Räume mit Flächen von ca. 40 m², 17 m², 15,28 m², 10,23 m² und 9,85 m²
- Badezimmer: 1 Bad (7,54 m²) mit Fenster & Handtuchheizkörper, 1 separates WC (1,76 m²)
- Küche: Offene Küche mit Wohnbereich
- Dach: Nutzbares, wärmegedämmtes Dachgeschoss mit 20 cm Dämmung, Dach mit grauer Keramikdachziegel
- Boden: Betonboden zur individuellen Gestaltung
- Außenwände: 25 cm Ziegel + 15 cm Dämmung + Putz
- Verglasung: Moderne Kunststofffenster, dreifach verglast, große Terrassentüren
- Innenwand zwischen Einheiten: 24 cm stark, Schalldämmklasse 20
- Heizung: Hocheffizienter Zwei-Kreislauf-Gasbrennwertkessel (THELIA CONDENS)
- Installation: Strom, Starkstrom (400V), Wasser, Abwasser, Internet, Kabelfernsehen, Alarmanlage, Gegensprechanlage
- Kamin: Anschluss vorbereitet
- Dachrinnen und Fallrohre: Inklusive
- Schornstein-Verkleidungen: Inklusive
- Hauseingangstür: Hochwertige Tür von PANTOR, 72 mm
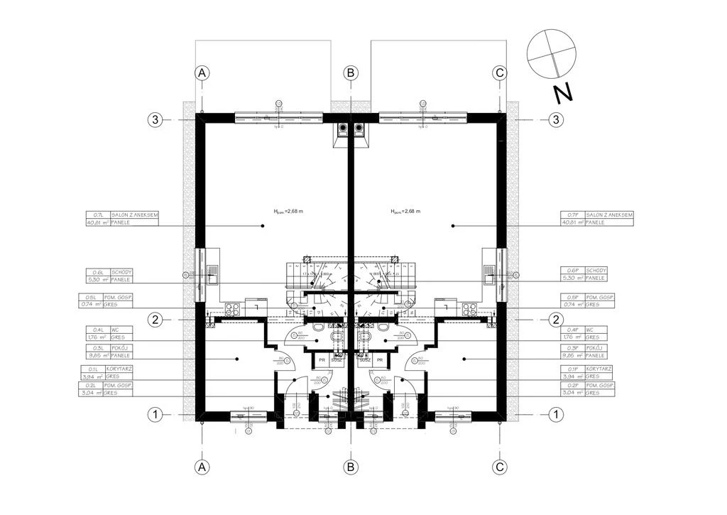
Raumaufteilung:
Erdgeschoss
- Großzügiger Wohnbereich mit Küchenanschluss – ca. 40 m²
- Zimmer – 9,85 m²
- Technik-/Wirtschaftsraum – 4,62 m²
- Abstellraum – 1,61 m²
- Separates WC – 1,76 m²
- Windfang/Diele – 4,27 m²
Obergeschoss (ohne Dachschrägen)
- Schlafzimmer 1 – 17 m²
- Schlafzimmer 2 – 15,28 m²
- Schlafzimmer 3 – 10,23 m²
- Badezimmer – 7,54 m²
- Ankleidezimmer – 4,46 m²
- Flur – 6,57 m²
Grundstück & Umgebung:
- Zwei private Stellplätze direkt am Haus
- Gepflegter Garten mit schönem Abstand zu den Nachbarhäusern
- Systemzaun (außer Front) installiert
- Helle Lage mit viel Tageslicht
- Ruhige Nebenstraße
Lage:
Die Immobilie befindet sich in einer familienfreundlichen Umgebung in der Nähe von
- Wäldern und Erholungsflächen
- Einkaufsmöglichkeiten
- Grundschule und Kindergarten
- Apotheke, Fitnessstudio und Klinik
- Stadtbus-Haltestelle
Preisgestaltung:
- Gesamtpreis auf Anfrage
- Projekt im Rohbauzustand – ideal zur individuellen Gestaltung
- Grundstück inklusive
- Käufer zahlt keine Grundsteuer bei Kauf
Ein perfekter Ort zum Wohlfühlen – modern, geräumig und mit idealer Infrastruktur für Menschen, die ein Zuhause in angenehmer Nachbarschaft suchen.
Vereinbaren Sie gerne einen Besichtigungstermin – wir freuen uns auf Sie!
Szczegóły
Immobilienart: Doppelhaushälfte
Baujahr: 2025
Gesamtfläche: 128,00 m²
Nutzfläche: 128,00 m²
Grundstücksfläche: 400,00 m²
Grundstücksform: Rechteck
Breite des Grundstücks: 11,00 m
Länge des Grundstücks: 31,00 m
Lage des Grundstücks: Flaches Gelände
Ausbaustandard: Rohbau (entwicklerstandard)
Bauweise: Ziegel
Anzahl der Etagen (inkl. Erdgeschoss): 1
Dachform: Satteldach mit Keramikdachziegeln
Bodenart: Beton
Fenstertyp: Kunststofffenster
Dachboden: Ausgebaut
Garage: Ja
Garten: Ja
Garderobe: Ja
Kamin: Ja
Räume:
- Wohnzimmer mit Küchenbereich: 40 m²
- Schlafzimmer: 17 m²
- Zimmer: 15,28 m²
- Zimmer: 10,23 m²
- Büro: 9,85 m²
- Badezimmer: 7,54 m²
- WC: 1,76 m²
Küche: Offene Küche
Badezimmerausstattung: Handtuchheizkörper, Fenster
Anschlüsse & Technik:
- Elektrizität: Ja (inkl. 400 V Anschluss)
- Gas: Ja
- Heizungsart: Gas-Zentralheizung (2-Kreis-Therme)
- Warmwasser: Gas
- Kanalisation: Öffentlich
- Wasserquelle: Öffentlich
- Internetanschluss: Ja
- Kabelfernsehen: Ja
- Alarmanlage: Ja
- Gegensprechanlage: Ja
Zufahrtsstraße: Ruhige Seitenstraße
Einfriedung: Maschendrahtzaun
Lage:
In der Nähe befinden sich:
- Wald
- Geschäft
- Kindergarten
- Grundschule
- Öffentliche Verkehrsmittel
- Apotheke
- Fitnessstudio
- Krankenhaus
- Bank
Preis inklusive Ausstattung:
- Badezimmerausstattung (z. B. Handtuchheizkörper, Fenster)
- Vollständige Medienanschlüsse
Gesamtkosten für den Kauf in Euro (inkl. Steuern):
Keine weiteren Steuerangaben oder Abgaben erforderlich.
Alle Preise brutto, z. B.:
- Beispielkosten: €500 (PLN 2.140) (Hinweis: Nur falls solche Angaben im Text vorhanden wären)
Uwaga
- Pierwsze zdjęcie w naszej galerii zostało lekko zmodyfikowane, aby pokazać, jak nieruchomość mogłaby wyglądać – na przykład po zmianie koloru ścian. Kolejne zdjęcia przedstawiają rzeczywisty stan nieruchomości.
- Cena podana w euro odpowiada cenie w złotych, jednak ze względu na wahania kursów walut jest zawsze wartością przybliżoną. W naszych ogłoszeniach zawsze podajemy również cenę w złotych, zgodnie z życzeniem sprzedającego.
Informacje o polskich praktykach rynku nieruchomości:
- Ograniczone informacje o lokalizacji: W Polsce przyjęło się, że ogłoszenia nieruchomości nie ujawniają dokładnego adresu nieruchomości.
- Rzuty: Szczegółowe plany pięter nie zawsze są dostępne w ofertach.
Jako biuro nieruchomości zapewniamy kompleksową obsługę. Reprezentujemy Cię jako kupującego.
Współpracujemy ze sprawdzonymi partnerami (wycena nieruchomości, doradztwo prawne i podatkowe, tłumaczenia przysięgłe, remonty).
Przy inwestycjach kapitałowych oferujemy również zarządzanie nieruchomością.
Osobiste wsparcie – transparentne i kompetentne.
Cechy nieruchomości
- Gas
- Garage
- Garten
- Garderobe
- Kamin
Te nieruchomości mogą Cię również zainteresować
O nas
Witamy u Twojego partnera na rynku nieruchomości w Szczecinie i na Pomorzu Zachodnim!
Jesteśmy zaangażowanym biurem nieruchomości z wieloletnim doświadczeniem na lokalnym rynku. W naszej ofercie znajdziesz szeroki wybór nieruchomości w Szczecinie oraz atrakcyjne obiekty nad polskim Bałtykiem – do zamieszkania, jako inwestycję kapitałową lub na cele wypoczynkowe.
Mówimy po polsku i po niemiecku, profesjonalnie przeprowadzimy Cię przez cały proces kupna lub sprzedaży. Mieszkanie, dom, działka czy nieruchomość wakacyjna – na pewno znajdziemy odpowiedni adres dla Ciebie!
Zapraszamy na filiżankę kawy do naszego biura lub po prostu skontaktuj się z nami. Czekamy na Ciebie!
Współpraca z nami
Jesteśmy biurem nieruchomości współpracującym z agencjami nieruchomości w województwie zachodniopomorskim. Reprezentujemy wyłącznie jedną stronę transakcji – klienta z Niemiec lub krajów DACH. W jego imieniu negocjujemy cenę, weryfikujemy ofertę i zajmujemy się wszelkimi formalnościami.
Wspieramy naszych klientów również po zakupie i pozostajemy z nimi w kontakcie. Na życzenie pomagamy przy remoncie lub kompleksowej renowacji nieruchomości. Oferujemy również zarządzanie wynajmowanymi nieruchomościami – w Szczecinie i najbliższych okolicach.
Przywiązujemy dużą wagę do jasnych zasad i uczciwości. Nasze prowizje odpowiadają stawkom obowiązującym w Polsce: 3,69% ceny zakupu dla mieszkań i domów oraz 6,15% dla działek. Prowizja jest wymagalna i płatna u notariusza przy podpisaniu umowy.
Współpracujemy z renomowaną, niemieckojęzyczną kancelarią notarialną w Szczecinie.
Korzyści podatkowe
Przy zakupie nieruchomości z rynku wtórnego podatek od czynności cywilnoprawnych wynosi jedynie 2%, a przy rynku pierwotnym nie ma podatku PCC. Dodatkowo podatek od nieruchomości w Polsce jest naliczany od powierzchni i jest bardzo niski.