Modernes Familienhaus in Oberende: Neubau-Reihenhaus mit Garten in ruhiger Lage
251,000 €
Opis
Komfortables Familienhaus in ruhiger Lage von Bezrzecze
Willkommen in Ihrem neuen Zuhause! Dieses moderne Reihenhaus liegt in einer ruhigen Wohngegend von Bezrzecze bei Szczecin und verbindet entspanntes Wohnen im Grünen mit einer hervorragenden Anbindung an die Stadt – das Zentrum Szczecins erreichen Sie in nur ca. 15 Minuten.
Das Haus im Überblick
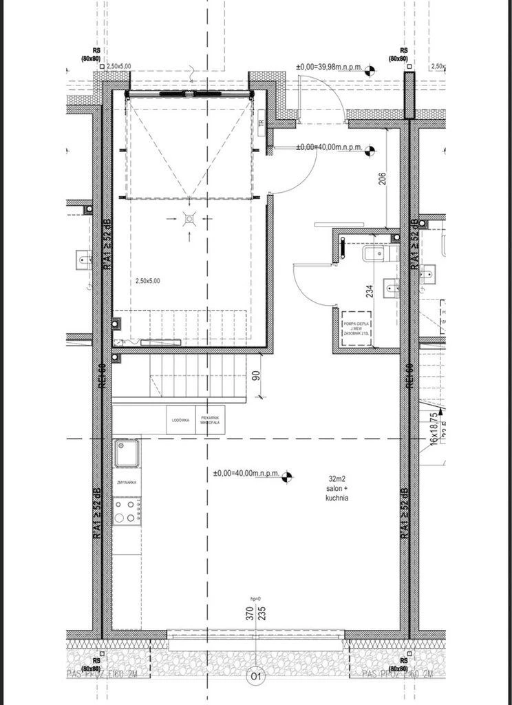
- Wohnfläche: ca. 122 m²
- Grundstücksfläche: 192 m²
- Baujahr: 2024
- Bezugsfertig ab: 01.09.2025
- Hausart: Reihenhaus
- Zustand & Standard: Neubau-Standard (Entwicklerzustand)
- Bauweise: Massive Bauweise mit Porenbeton
- Dach: Hochwertige Keramikdachziegel
- Fenster: Kunststofffenster
Dieses durchdacht geplante Haus wurde mit viel Liebe zum Detail entworfen. Helle Räume und eine familienfreundliche Raumaufteilung schaffen ein einladendes und geborgenes Wohnklima. Die Kombination aus offenen Wohnbereichen und privaten Rückzugsorten bietet sowohl gemeinsames Erleben als auch individuelle Entfaltungsmöglichkeiten.
Raumaufteilung & Ausstattung
- Gemütlicher Wohnbereich mit Zugang zum Garten
- Offene Küche (Küchenanschlüsse vorhanden)
- 1 Badezimmer und zusätzliches separates WC
- Schlafzimmer mit Möglichkeit zur Schaffung individueller Zimmer
- Garderobe und ausreichende Abstellflächen
- Terrasse mit privatem Garten – ideal zum Entspannen oder für morgendlichen Kaffee
- Garage für ein Fahrzeug
Moderne technische Ausstattung sorgt für besten Wohnkomfort:
- Stadtwasser- und Abwasseranschluss
- Fernwärme für effiziente und kostengünstige Beheizung
- Anschluss für Telefon, Internet, Kabel-TV
- Klimaanlage und Alarmanlage bereits vorhanden
Ihre Vorteile auf einen Blick
Mehr Raum für Ihre Familie
Offener Wohnbereich, sonnige Terrasse und privater Garten bieten Platz für gemeinsame Stunden und Erholung.
Höchste Bauqualität
Langlebige Materialien, durchdachte Dämmung und moderne Technik – Ihr Zuhause ist nachhaltig und komfortabel.
Ruhige Lage mit guter Anbindung
In der Nähe der Natur und dennoch urban angebunden – ideal für den Alltag und das Familienleben.
Sofort einziehen und wohlfühlen
Der Neubau befindet sich im Entwicklerstandard – perfekt für individuelle Gestaltung und sofortigen Bezug ohne große Renovierungsarbeiten.
Ein echtes Zuhause
Helle, freundliche Räume mit viel Potenzial für persönliche Einrichtungsideen – hier finden Sie Geborgenheit und Lebensfreude.
Nutzen Sie die Gelegenheit und gestalten Sie Ihr neues Zuhause ganz nach Ihren Vorstellungen!
Nebenkosten belaufen sich auf ca. €500 (PLN 2.000).
Wir freuen uns darauf, Ihnen dieses besondere Objekt persönlich vorzustellen.
Szczegóły
Reihenhaus mit moderner Ausstattung in attraktiver Lage – Bezugsfrei ab 01.09.2025
Zum Verkauf steht ein neues Reihenhaus mit einer Gesamtfläche von 122,00 m² auf einem rechteckigen Grundstück von 192,00 m². Das Haus befindet sich in der Entwicklungsausbaustufe und wurde im Jahr 2024 erbaut. Die Nutzfläche beträgt ebenfalls 122,00 m².
Ausstattung und Raumaufteilung: - Bauweise: Reihenhaus - Standard: Entwicklungszustand - Wandmaterial: Blockstein - Fenster: Kunststoff - Dachdeckung: Keramik-Dachziegel - Küche: Offene Küche (Küchenzeile) - Badezimmer: 1 - WC: 1 - Garderobe vorhanden - Terrasse: Ja (1 Terrasse) - Garten: Ja
Technische Ausstattung: - Warmwasser: aus dem städtischen Versorgungsnetz - Heizung: Fernwärme aus dem städtischen Netz - Klimaanlage: Ja - Telefonanschluss: Ja - Stromversorgung: Ja - Abwasser: öffentliches Kanalsystem - Wasserversorgung: städtisch - Internetanschluss: Ja - Kabelfernsehen: Ja - Alarmsystem: Ja
Garage und Stellplatz: - Garage: Ja - Anzahl der Garagenplätze: 1
Verfügbarkeit:
Das Haus ist verfügbar ab dem 01.09.2025.
Preisübersicht:
Gesamtpreis: auf Anfrage
Alle Preisangaben brutto.
Uwaga
- Pierwsze zdjęcie w naszej galerii zostało lekko zmodyfikowane, aby pokazać, jak nieruchomość mogłaby wyglądać – na przykład po zmianie koloru ścian. Kolejne zdjęcia przedstawiają rzeczywisty stan nieruchomości.
- Cena podana w euro odpowiada cenie w złotych, jednak ze względu na wahania kursów walut jest zawsze wartością przybliżoną. W naszych ogłoszeniach zawsze podajemy również cenę w złotych, zgodnie z życzeniem sprzedającego.
Informacje o polskich praktykach rynku nieruchomości:
- Ograniczone informacje o lokalizacji: W Polsce przyjęło się, że ogłoszenia nieruchomości nie ujawniają dokładnego adresu nieruchomości.
- Rzuty: Szczegółowe plany pięter nie zawsze są dostępne w ofertach.
Jako biuro nieruchomości zapewniamy kompleksową obsługę. Reprezentujemy Cię jako kupującego.
Współpracujemy ze sprawdzonymi partnerami (wycena nieruchomości, doradztwo prawne i podatkowe, tłumaczenia przysięgłe, remonty).
Przy inwestycjach kapitałowych oferujemy również zarządzanie nieruchomością.
Osobiste wsparcie – transparentne i kompetentne.
Cechy nieruchomości
- Klimaanlage
- Garage
- Garten
- Garderobe
- Terrasse
Te nieruchomości mogą Cię również zainteresować
O nas
Witamy u Twojego partnera na rynku nieruchomości w Szczecinie i na Pomorzu Zachodnim!
Jesteśmy zaangażowanym biurem nieruchomości z wieloletnim doświadczeniem na lokalnym rynku. W naszej ofercie znajdziesz szeroki wybór nieruchomości w Szczecinie oraz atrakcyjne obiekty nad polskim Bałtykiem – do zamieszkania, jako inwestycję kapitałową lub na cele wypoczynkowe.
Mówimy po polsku i po niemiecku, profesjonalnie przeprowadzimy Cię przez cały proces kupna lub sprzedaży. Mieszkanie, dom, działka czy nieruchomość wakacyjna – na pewno znajdziemy odpowiedni adres dla Ciebie!
Zapraszamy na filiżankę kawy do naszego biura lub po prostu skontaktuj się z nami. Czekamy na Ciebie!
Współpraca z nami
Jesteśmy biurem nieruchomości współpracującym z agencjami nieruchomości w województwie zachodniopomorskim. Reprezentujemy wyłącznie jedną stronę transakcji – klienta z Niemiec lub krajów DACH. W jego imieniu negocjujemy cenę, weryfikujemy ofertę i zajmujemy się wszelkimi formalnościami.
Wspieramy naszych klientów również po zakupie i pozostajemy z nimi w kontakcie. Na życzenie pomagamy przy remoncie lub kompleksowej renowacji nieruchomości. Oferujemy również zarządzanie wynajmowanymi nieruchomościami – w Szczecinie i najbliższych okolicach.
Przywiązujemy dużą wagę do jasnych zasad i uczciwości. Nasze prowizje odpowiadają stawkom obowiązującym w Polsce: 3,69% ceny zakupu dla mieszkań i domów oraz 6,15% dla działek. Prowizja jest wymagalna i płatna u notariusza przy podpisaniu umowy.
Współpracujemy z renomowaną, niemieckojęzyczną kancelarią notarialną w Szczecinie.
Korzyści podatkowe
Przy zakupie nieruchomości z rynku wtórnego podatek od czynności cywilnoprawnych wynosi jedynie 2%, a przy rynku pierwotnym nie ma podatku PCC. Dodatkowo podatek od nieruchomości w Polsce jest naliczany od powierzchni i jest bardzo niski.