Charmante Altbauwohnung mit Balkon und 112 m² Wohnfläche im Herzen von Stettin
210,000 €
Opis
Großzügiger Altbau-Apartment im Herzen von Stettin – Księcia Bogusława X
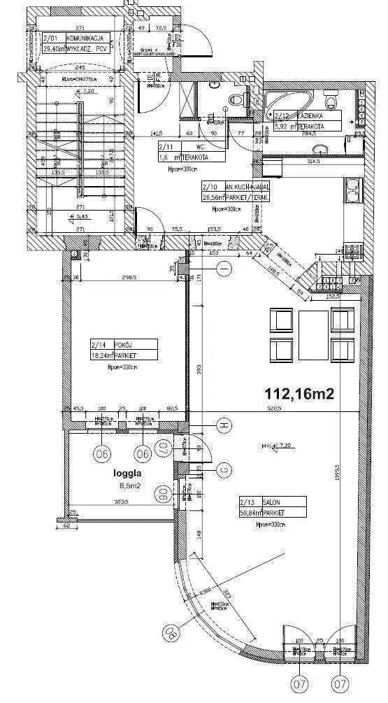
Willkommen in einer besonderen Wohngelegenheit im Zentrum von Stettin! Diese charmante, großzügige Wohnung mit einer Fläche von 112,16 m² befindet sich in einem liebevoll modernisierten Altbau aus dem Jahr 2010. Die Kombination aus klassischem Flair, hohen Decken (ca. 3,3 m) und urbanem Komfort macht diese Immobilie zu einem idealen Zuhause für Paare, Familien oder urbane Individualisten.
Highlights der Immobilie:
- Helle und einladende Räume mit hohen Decken
- Zentrale, aber ruhige Lage mit Blick auf eine gepflegte Innenhofanlage
- Vielseitige Raumgestaltung durch teilbare Raumstruktur
- Zugang zum Innenhof und Abstellmöglichkeiten für Fahrräder
Die Wohnung liegt in einem ruhigen, vierstöckigen Gebäude mit Aufzug und bietet eine durchdachte Raumaufteilung:
- Ein großzügiges, lichtdurchflutetes Wohnzimmer mit Zugang zu einem sonnigen Balkon
- Offene, moderne Küche in das Wohnzimmer integriert
- Komfortables Schlafzimmer mit ruhiger Lage
- Stilvolles Badezimmer mit Badewanne
- Separates WC für zusätzlichen Komfort
- Großzügiger Flur mit viel Stauraum
Die Trennwand zwischen Schlafzimmer und Wohnzimmer ist nicht tragend und erlaubt somit eine flexible Umgestaltung der Wohnräume – für individuelle Anforderungen und kreative Einrichtungsideen.
Das Interieur überzeugt mit gepflegter Ausstattung und bietet gleichzeitig Potenzial zur Auffrischung und Personalisierung. Durch die Ausrichtung zum Innenhof genießen Sie Privatsphäre und Ruhe, mitten im geselligen Stadtleben. Alle Wohnräume sind mit Kunststofffenstern ausgestattet, die für gute Isolierung sorgen.
Die Immobilie ist vollständig eingezäunt und durch einen modernen Schließmechanismus gesichert. Ein Stellplatz hinter einer Schranke sorgt für bequemes Parken. Selbstverständlich stehen Ihnen Internet, Kabelfernsehen, Telefonanschluss sowie eine Alarmanlage und ein Video-Monitoring-System zur Verfügung. Ein geräumiger Aufzug erleichtert den Zugang von der Tiefgarage bis zur Wohnung.
Technische Ausstattung:
- Fernwärmeheizung aus dem städtischen Netz
- Warmwasser ebenfalls über das städtische Versorgungssystem
- Monatliche Betriebskosten: ca. €165 (PLN 700)
- Verfügbarkeit ab: 15.10.2025
Lage:
Die Księcia Bogusława X Straße führt direkt ins historische Zentrum von Stettin und zählt zu den belebtesten und beliebtesten Stadtteilen. Nur wenige Gehminuten entfernt erwartet Sie ein abwechslungsreiches Angebot an Cafés, Restaurants, Boutiquen, Dienstleistern und Einkaufsmöglichkeiten. Schulen, Kindergärten, Parks sowie öffentliche Verkehrsmittel befinden sich ebenfalls in unmittelbarer Nähe.
Weitere Vorteile im Überblick:
- Erstklassige Innenstadtlage in Stettin
- Großzügiger Grundriss und hohe Decken
- Ruhiger innenliegender Balkon
- Tiefgaragenstellplatz hinter Schranke
- Aufzug vorhanden
- Eigenes Grundbuch
Diese Wohnung ist eine ausgezeichnete Wahl für Menschen, die das urbane Leben lieben, aber nicht auf Ruhe, Raum und Stil verzichten möchten. Lassen Sie sich von diesem besonderen Altbaujuwel begeistern und gestalten Sie Ihr neues Zuhause im Herzen von Stettin ganz nach Ihren Vorstellungen!
Szczegóły
Wohnung zur Miete im Herzen von Śródmieście-Centrum
Verfügbar ab: 15.10.2025
Gesamtfläche: 112,16 m²
Baujahr: 2010
Etagenzahl im Gebäude: 4
Etage: Hochparterre
Zustand der Wohnung: Auffrischung erforderlich
Zustand des Gebäudes: Sehr gut
Bauweise: Sonstige
Küche: Kochnische
Ausstattung und Merkmale
- Heizung und Warmwasser: Fernwärme von der städtischen Versorgungsanlage
- Fenster: Kunststofffenster
- Garage: Vorhanden
- Grundstück: Komplett umzäunt
Sicherheitsausstattung
- Gegensprechanlage
- Alarmanlage
- Videoüberwachung
- Hausmeisterservice
- Vollständige Einzäunung
Multimedia und Kommunikation
- Telefonanschluss
- Breitband-Internet
- Kabel-TV
Gebäudemerkmale
- Personenaufzug vorhanden
Diese großzügige Wohnung mit 112,16 m² bietet durchdachte Raumgestaltung und eine komfortable Ausstattung in zentraler Lage. Ideal für Familien oder Geschäftsleute, die modernen Wohnkomfort in bester Lage suchen. Die Immobilie befindet sich in einem sehr guten Zustand und eignet sich perfekt zur individuellen Gestaltung nach eigenen Vorstellungen.
Uwaga
- Pierwsze zdjęcie w naszej galerii zostało lekko zmodyfikowane, aby pokazać, jak nieruchomość mogłaby wyglądać – na przykład po zmianie koloru ścian. Kolejne zdjęcia przedstawiają rzeczywisty stan nieruchomości.
- Cena podana w euro odpowiada cenie w złotych, jednak ze względu na wahania kursów walut jest zawsze wartością przybliżoną. W naszych ogłoszeniach zawsze podajemy również cenę w złotych, zgodnie z życzeniem sprzedającego.
Informacje o polskich praktykach rynku nieruchomości:
- Ograniczone informacje o lokalizacji: W Polsce przyjęło się, że ogłoszenia nieruchomości nie ujawniają dokładnego adresu nieruchomości.
- Rzuty: Szczegółowe plany pięter nie zawsze są dostępne w ofertach.
Jako biuro nieruchomości zapewniamy kompleksową obsługę. Reprezentujemy Cię jako kupującego.
Współpracujemy ze sprawdzonymi partnerami (wycena nieruchomości, doradztwo prawne i podatkowe, tłumaczenia przysięgłe, remonty).
Przy inwestycjach kapitałowych oferujemy również zarządzanie nieruchomością.
Osobiste wsparcie – transparentne i kompetentne.
Cechy nieruchomości
- Aufzug
- Zaun
- Garage
- Balkon
Te nieruchomości mogą Cię również zainteresować
O nas
Witamy u Twojego partnera na rynku nieruchomości w Szczecinie i na Pomorzu Zachodnim!
Jesteśmy zaangażowanym biurem nieruchomości z wieloletnim doświadczeniem na lokalnym rynku. W naszej ofercie znajdziesz szeroki wybór nieruchomości w Szczecinie oraz atrakcyjne obiekty nad polskim Bałtykiem – do zamieszkania, jako inwestycję kapitałową lub na cele wypoczynkowe.
Mówimy po polsku i po niemiecku, profesjonalnie przeprowadzimy Cię przez cały proces kupna lub sprzedaży. Mieszkanie, dom, działka czy nieruchomość wakacyjna – na pewno znajdziemy odpowiedni adres dla Ciebie!
Zapraszamy na filiżankę kawy do naszego biura lub po prostu skontaktuj się z nami. Czekamy na Ciebie!
Współpraca z nami
Jesteśmy biurem nieruchomości współpracującym z agencjami nieruchomości w województwie zachodniopomorskim. Reprezentujemy wyłącznie jedną stronę transakcji – klienta z Niemiec lub krajów DACH. W jego imieniu negocjujemy cenę, weryfikujemy ofertę i zajmujemy się wszelkimi formalnościami.
Wspieramy naszych klientów również po zakupie i pozostajemy z nimi w kontakcie. Na życzenie pomagamy przy remoncie lub kompleksowej renowacji nieruchomości. Oferujemy również zarządzanie wynajmowanymi nieruchomościami – w Szczecinie i najbliższych okolicach.
Przywiązujemy dużą wagę do jasnych zasad i uczciwości. Nasze prowizje odpowiadają stawkom obowiązującym w Polsce: 3,69% ceny zakupu dla mieszkań i domów oraz 6,15% dla działek. Prowizja jest wymagalna i płatna u notariusza przy podpisaniu umowy.
Współpracujemy z renomowaną, niemieckojęzyczną kancelarią notarialną w Szczecinie.
Korzyści podatkowe
Przy zakupie nieruchomości z rynku wtórnego podatek od czynności cywilnoprawnych wynosi jedynie 2%, a przy rynku pierwotnym nie ma podatku PCC. Dodatkowo podatek od nieruchomości w Polsce jest naliczany od powierzchni i jest bardzo niski.