Bezugsfertige 4-Zimmer-Gartenwohnung mit Stellplätzen in ruhiger Lage in Möhringen
182,000 €
Opis
Bezaubernde 4-Zimmer-Wohnung mit Garten und zwei Stellplätzen in Mierzyn
Willkommen in Ihrem neuen Zuhause in einer ruhigen und attraktiven Wohngegend von Mierzyn bei Stettin! Diese moderne, bezugsfertige 4-Zimmer-Wohnung mit eigenem Garten bietet Ihnen Komfort, Privatsphäre und hervorragende Anbindung an die Stadt.
Highlights auf einen Blick
- Wohnfläche: 77,75 m²
- Grundstücksfläche: ca. 102 m²
– davon Garten: ca. 52 m² - Zwei Stellplätze im Preis inbegriffen
- Neubau (Fertigstellung 2025)
- Heizung: Fußbodenheizung mit energieeffizienter Wärmepumpe
- Zustand: Ausbauhaus (bezugsfertig nach Ihren Wünschen)
Raumaufteilung
Erdgeschoss:
- Geräumiges Wohnzimmer mit offener Küche – 39,65 m²
- Gäste-WC – 1,68 m²
Obergeschoss:
- Schlafzimmer – 9,80 m²
- Kinder-/Arbeitszimmer – 9,80 m²
- Weiteres Zimmer – 7,77 m²
- Badezimmer mit Badewanne oder Dusche – 6,35 m²
- Flur – 2,70 m²
Ausstattungsmerkmale
- Großzügiger Wohn- und Essbereich mit Zugang zum eigenen Garten
- Große Fenster für viel Tageslicht und ein angenehmes Raumgefühl
- Modernes und funktionales Raumkonzept
- Zwei private Außenstellplätze inklusive
- Ruhige, familienfreundliche Nachbarschaft
- Kleine Wohnanlage (nur 3 Doppelhäuser + 1 Einzelhaus)
- Helle, lichtdurchflutete Räume
Lage
Mierzyn ist eine der beliebtesten Wohngegenden im Umland von Stettin – ideal für Familien, Paare und Singles, die stadtnah und dennoch ruhig wohnen möchten.
In unmittelbarer Nähe finden Sie:
- Kindergärten und Schulen
- Medizinische Einrichtungen
- Einkaufszentren und Supermärkte (Lidl, Biedronka, Netto)
- Öffentliche Verkehrsmittel mit direkter Verbindung ins Stadtzentrum
- Gute Anbindung an Hauptverkehrsstraßen
Genießen Sie den Komfort einer eigenen Grünfläche, hochwertigen Neubau-Standards und einer hervorragenden Lage – ein idealer Ort zum Leben und Wohlfühlen!
Investition und Finanzierung
Gerne beraten wir Sie persönlich zu Finanzierungsmöglichkeiten und begleiten Sie bei jedem Schritt zum neuen Eigentum.
Nebenkosten zum Beispiel:
- Keine monatlichen Hausgeldkosten
- Notar- und Kaufnebenkosten separat
Kontaktieren Sie uns für weitere Informationen oder zur Vereinbarung eines Besichtigungstermins – wir freuen uns auf Sie!
Szczegóły
Objektart: Wohnung
Gesamtfläche: 77,75 m²
Gebäudetyp: Wohnblock
Baujahr: 2025
Ausstattungsstandard: Ausbaustufe vom Bauträger
Wandmaterial: Sonstige
Küchentyp: Mit Fenster
Erdgeschoss: Ja
Anzahl der Etagen (inkl. Erdgeschoss): 2
Garagenstellplatz: Ja
Anzahl der Parkplätze: 1
Ein modernes Neubauapartment mit großzügigen 77,75 m² Wohnfläche im Erdgeschoss eines zweigeschossigen Wohngebäudes. Die Wohnung wird im hochwertigen Bauträgerstandard übergeben und bietet Ihnen die Möglichkeit zur freien Gestaltung des Innenausbaus.
Besonderer Komfort entsteht durch die Fenster in der Küche, die für angenehmes Tageslicht sorgen, sowie durch das durchdachte Raumkonzept, das Ihnen maximale Nutzungsmöglichkeiten bietet. Das Gebäude wird aus soliden, modernen Materialien errichtet und entspricht neuesten Bauanforderungen.
Zur Wohnung gehört ein Garagenstellplatz, der Ihnen bequemes Parken ermöglicht.
Preis für den Stellplatz: €8.200 (PLN 35.000)
Ein ideales Zuhause für Familien, Paare oder alle, die modernes Wohnen in einem neu entstehenden Gebäude bevorzugen. Fertigstellung des Objekts ist für 2025 geplant.
Uwaga
- Pierwsze zdjęcie w naszej galerii zostało lekko zmodyfikowane, aby pokazać, jak nieruchomość mogłaby wyglądać – na przykład po zmianie koloru ścian. Kolejne zdjęcia przedstawiają rzeczywisty stan nieruchomości.
- Cena podana w euro odpowiada cenie w złotych, jednak ze względu na wahania kursów walut jest zawsze wartością przybliżoną. W naszych ogłoszeniach zawsze podajemy również cenę w złotych, zgodnie z życzeniem sprzedającego.
Informacje o polskich praktykach rynku nieruchomości:
- Ograniczone informacje o lokalizacji: W Polsce przyjęło się, że ogłoszenia nieruchomości nie ujawniają dokładnego adresu nieruchomości.
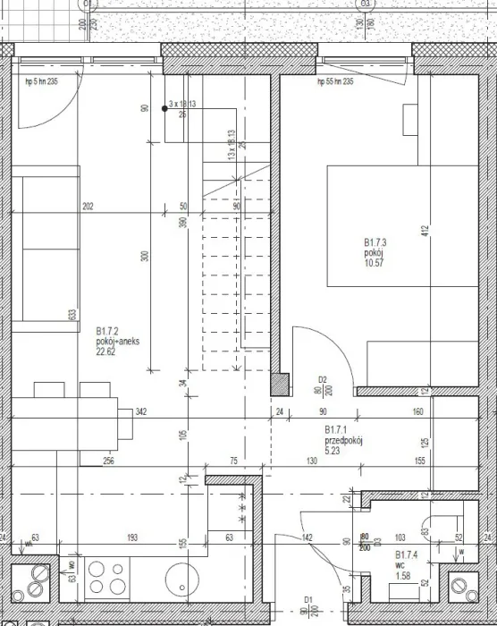
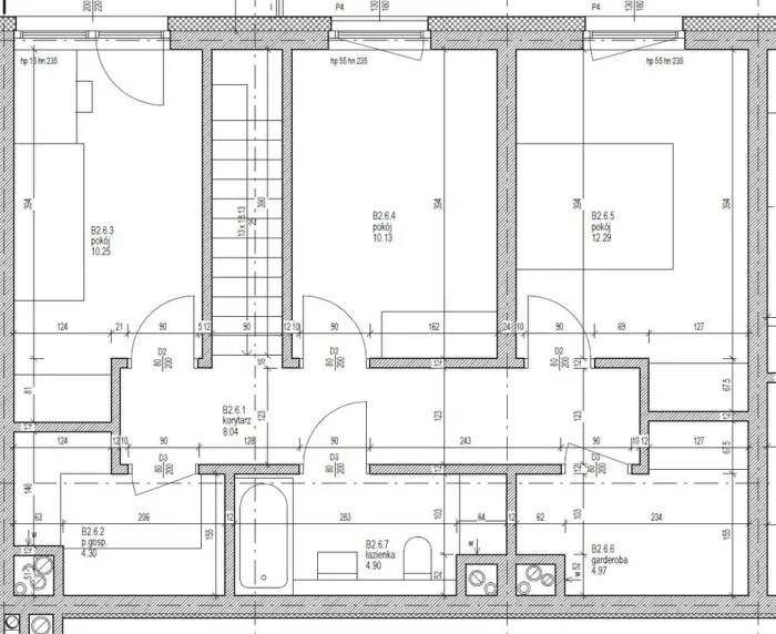
- Rzuty: Szczegółowe plany pięter nie zawsze są dostępne w ofertach.
Jako biuro nieruchomości zapewniamy kompleksową obsługę. Reprezentujemy Cię jako kupującego.
Współpracujemy ze sprawdzonymi partnerami (wycena nieruchomości, doradztwo prawne i podatkowe, tłumaczenia przysięgłe, remonty).
Przy inwestycjach kapitałowych oferujemy również zarządzanie nieruchomością.
Osobiste wsparcie – transparentne i kompetentne.
Cechy nieruchomości
- Erdgeschoss
- Garage
- Garten
Te nieruchomości mogą Cię również zainteresować
O nas
Witamy u Twojego partnera na rynku nieruchomości w Szczecinie i na Pomorzu Zachodnim!
Jesteśmy zaangażowanym biurem nieruchomości z wieloletnim doświadczeniem na lokalnym rynku. W naszej ofercie znajdziesz szeroki wybór nieruchomości w Szczecinie oraz atrakcyjne obiekty nad polskim Bałtykiem – do zamieszkania, jako inwestycję kapitałową lub na cele wypoczynkowe.
Mówimy po polsku i po niemiecku, profesjonalnie przeprowadzimy Cię przez cały proces kupna lub sprzedaży. Mieszkanie, dom, działka czy nieruchomość wakacyjna – na pewno znajdziemy odpowiedni adres dla Ciebie!
Zapraszamy na filiżankę kawy do naszego biura lub po prostu skontaktuj się z nami. Czekamy na Ciebie!
Współpraca z nami
Jesteśmy biurem nieruchomości współpracującym z agencjami nieruchomości w województwie zachodniopomorskim. Reprezentujemy wyłącznie jedną stronę transakcji – klienta z Niemiec lub krajów DACH. W jego imieniu negocjujemy cenę, weryfikujemy ofertę i zajmujemy się wszelkimi formalnościami.
Wspieramy naszych klientów również po zakupie i pozostajemy z nimi w kontakcie. Na życzenie pomagamy przy remoncie lub kompleksowej renowacji nieruchomości. Oferujemy również zarządzanie wynajmowanymi nieruchomościami – w Szczecinie i najbliższych okolicach.
Przywiązujemy dużą wagę do jasnych zasad i uczciwości. Nasze prowizje odpowiadają stawkom obowiązującym w Polsce: 3,69% ceny zakupu dla mieszkań i domów oraz 6,15% dla działek. Prowizja jest wymagalna i płatna u notariusza przy podpisaniu umowy.
Współpracujemy z renomowaną, niemieckojęzyczną kancelarią notarialną w Szczecinie.
Korzyści podatkowe
Przy zakupie nieruchomości z rynku wtórnego podatek od czynności cywilnoprawnych wynosi jedynie 2%, a przy rynku pierwotnym nie ma podatku PCC. Dodatkowo podatek od nieruchomości w Polsce jest naliczany od powierzchni i jest bardzo niski.