Neubauwohnung in Mierzyn – Erstbezug mit Aufzug in ruhiger, grüner Umgebung
217,000 €
Opis
Attraktive Neubauwohnung in Mierzyn – Erstbezug mit Aufzug in idyllischer Lage
Wir präsentieren Ihnen eine moderne und lichtdurchflutete Neubauwohnung in einem eleganten, niedrigen Gebäude mit Aufzug – gelegen in dem charmanten Ort Mierzyn. Diese Immobilie ist ideal für alle, die Wert auf Komfort, stilvolle Architektur und zeitgemäße Lösungen legen.
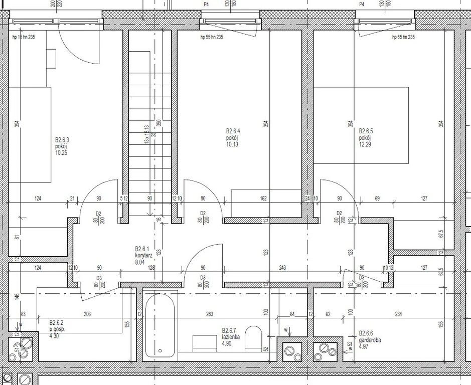
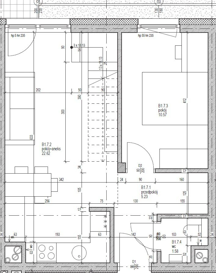
Wohnungsaufteilung:
1. Etage:
Raumaufteilung und genaue Flächenangaben auf Anfrage verfügbar.
2. Etage:
Raumaufteilung und genaue Flächenangaben auf Anfrage verfügbar.
Die Wohnung wird im entwicklerfertigen Standard (Rohbau) verkauft – somit haben Sie die Möglichkeit, Ihre individuellen Wohnträume zu verwirklichen und das Interieur ganz nach Ihrem Geschmack zu gestalten.
Highlights der Immobilie:
- Neubau – Erstbezug
- Helle Räume mit modernem Zuschnitt
- Gebäude mit Aufzug – barrierearmer Zugang
- Ruhige und naturnahe Umgebung
- Zeitgemäße Heiztechnik – Fernwärme und Warmwasserzufuhr durch das städtische System SEC sorgen für ganzjährigen Komfort
- Bauprojekt abgeschlossen – Schlüsselübergabe sofort möglich!
Parkmöglichkeit:
Ein Stellplatz in der Tiefgarage kann optional erworben werden. Der Aufzug fährt bis zur Etage -1, was den Zugang zum Stellplatz besonders bequem macht.
Preis ab €9.400 (PLN 40.000).
Wir laden Sie herzlich ein, sich näher mit dieser außergewöhnlichen Gelegenheit vertraut zu machen und die Vorzüge dieser Immobilie persönlich zu erleben!
Jetzt Ihre perfekte Wohnung in Mierzyn sichern – kombinieren Sie modernes Wohnen mit naturnaher Lage!
Szczegóły
Immobilienart: Wohnung
Gesamtfläche: 94,88 m²
Gebäudetyp: Wohnblock
Baujahr: 2025
Standard: Entwicklerzustand
Bauweise (Wandmaterial): Silikat
Küchentyp: Küchenzeile
Erdgeschosswohnung: Ja
Anzahl der Etagen (inkl. Erdgeschoss): 3
Warmwasserquelle: Städtisches Netz
Heizung: Fernwärme aus dem städtischen Netz
Aufzug im Gebäude: Ja
Uwaga
- Pierwsze zdjęcie w naszej galerii zostało lekko zmodyfikowane, aby pokazać, jak nieruchomość mogłaby wyglądać – na przykład po zmianie koloru ścian. Kolejne zdjęcia przedstawiają rzeczywisty stan nieruchomości.
- Cena podana w euro odpowiada cenie w złotych, jednak ze względu na wahania kursów walut jest zawsze wartością przybliżoną. W naszych ogłoszeniach zawsze podajemy również cenę w złotych, zgodnie z życzeniem sprzedającego.
Informacje o polskich praktykach rynku nieruchomości:
- Ograniczone informacje o lokalizacji: W Polsce przyjęło się, że ogłoszenia nieruchomości nie ujawniają dokładnego adresu nieruchomości.
- Rzuty: Szczegółowe plany pięter nie zawsze są dostępne w ofertach.
Jako biuro nieruchomości zapewniamy kompleksową obsługę. Reprezentujemy Cię jako kupującego.
Współpracujemy ze sprawdzonymi partnerami (wycena nieruchomości, doradztwo prawne i podatkowe, tłumaczenia przysięgłe, remonty).
Przy inwestycjach kapitałowych oferujemy również zarządzanie nieruchomością.
Osobiste wsparcie – transparentne i kompetentne.
Cechy nieruchomości
- Erdgeschoss
- Aufzug
Te nieruchomości mogą Cię również zainteresować
O nas
Witamy u Twojego partnera na rynku nieruchomości w Szczecinie i na Pomorzu Zachodnim!
Jesteśmy zaangażowanym biurem nieruchomości z wieloletnim doświadczeniem na lokalnym rynku. W naszej ofercie znajdziesz szeroki wybór nieruchomości w Szczecinie oraz atrakcyjne obiekty nad polskim Bałtykiem – do zamieszkania, jako inwestycję kapitałową lub na cele wypoczynkowe.
Mówimy po polsku i po niemiecku, profesjonalnie przeprowadzimy Cię przez cały proces kupna lub sprzedaży. Mieszkanie, dom, działka czy nieruchomość wakacyjna – na pewno znajdziemy odpowiedni adres dla Ciebie!
Zapraszamy na filiżankę kawy do naszego biura lub po prostu skontaktuj się z nami. Czekamy na Ciebie!
Współpraca z nami
Jesteśmy biurem nieruchomości współpracującym z agencjami nieruchomości w województwie zachodniopomorskim. Reprezentujemy wyłącznie jedną stronę transakcji – klienta z Niemiec lub krajów DACH. W jego imieniu negocjujemy cenę, weryfikujemy ofertę i zajmujemy się wszelkimi formalnościami.
Wspieramy naszych klientów również po zakupie i pozostajemy z nimi w kontakcie. Na życzenie pomagamy przy remoncie lub kompleksowej renowacji nieruchomości. Oferujemy również zarządzanie wynajmowanymi nieruchomościami – w Szczecinie i najbliższych okolicach.
Przywiązujemy dużą wagę do jasnych zasad i uczciwości. Nasze prowizje odpowiadają stawkom obowiązującym w Polsce: 3,69% ceny zakupu dla mieszkań i domów oraz 6,15% dla działek. Prowizja jest wymagalna i płatna u notariusza przy podpisaniu umowy.
Współpracujemy z renomowaną, niemieckojęzyczną kancelarią notarialną w Szczecinie.
Korzyści podatkowe
Przy zakupie nieruchomości z rynku wtórnego podatek od czynności cywilnoprawnych wynosi jedynie 2%, a przy rynku pierwotnym nie ma podatku PCC. Dodatkowo podatek od nieruchomości w Polsce jest naliczany od powierzchni i jest bardzo niski.