Charmantes Einfamilienhaus mit Seeblick und großem Garten in Neuwarp
467,000 €
Opis
Charmantes Einfamilienhaus mit Garten und Seeblick in Nowe Warpno
Willkommen in Ihrem neuen Zuhause – einem modernen und stilvoll renovierten Einfamilienhaus mit herrlichem Blick auf den Nowowarpieńskie-See. Eingebettet in eine grüne, ruhige Umgebung nahe der deutschen Grenze und nur ca. 35 km von Szczecin entfernt, bietet dieses Anwesen perfekte Bedingungen zum Wohnen oder als Investmentobjekt.
Wohnen in besonderem Ambiente
Das Haus mit einer großzügigen Wohnfläche von 250 m² wurde vollständig saniert: Die sichtbaren Holzbalken und hochwertige Holzelemente harmonieren mit einem modernen, eleganten Stil in hellen Farbtönen – ein Ort mit Seele und Charakter.
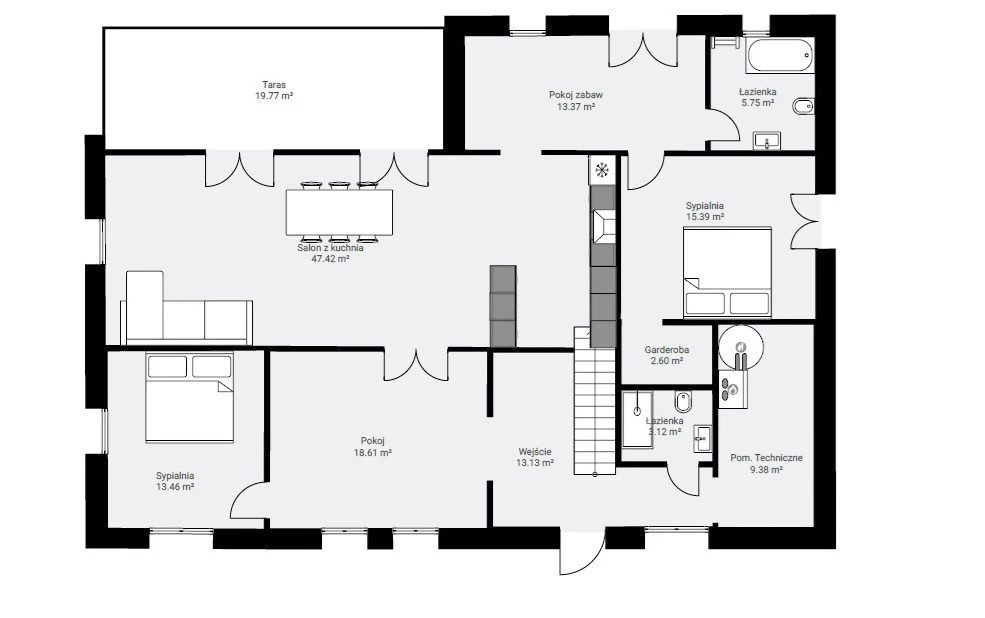
Raumaufteilung:
Erdgeschoss:
- Einladender Flur – 13,13 m²
- Offener Wohn- und Essbereich mit Zugang zur Terrasse – 47,42 m²
- 2 Schlafzimmer, eines davon mit Ankleide – 15,39 m² und 13,46 m²
- 2 Badezimmer – 5,75 m² und 3,12 m² (eines zur freien Gestaltung)
- 2 weitere Zimmer – 18,61 m² und 13,37 m²
- Hauswirtschaftsraum – 9,38 m²
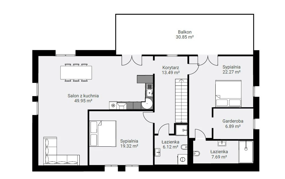
Obergeschoss:
- Großzügiger Wohnbereich mit Möglichkeit zur Einrichtung einer Küche – 49,95 m²
- Schlafzimmer – 22,27 m² mit Ankleideraum – 6,89 m² und Bad – 7,96 m² (zur freien Gestaltung)
- Weiteres Schlafzimmer – 19,32 m²
- Badezimmer – 6,12 m²
- Flur – 13,49 m²
Ausstattung und Merkmale:
- Grundstücksfläche: 4.900 m² mit zahlreichen Obstbäumen
- Möglichkeit zur Aufteilung in zwei separate Wohneinheiten
- Heizung über moderne Wärmepumpe
- Fußbodenheizung im Erdgeschoss
- Neue dreifach verglaste Fenster
- Neue Fassadengestaltung
- Holzfußböden auf beiden Etagen
- Offene Küche mit hochwertigen BLUM-Systemen und modernen Einbaugeräten (Kühlschrank, Backofen, Geschirrspüler)
- 4 stilvolle Badezimmer, ausgestattet mit Dusche, Badewanne, WC und Waschtisch
- Terrasse (insgesamt ca. 20 m²) mit Zugang vom Wohnbereich und vom Schlafzimmer
- Gemischte Grundstückseinfriedung
- Carport
- Stadtwasser und -kanalisation
- Stromanschluss mit 400V
- Gasanschluss vorhanden
- Internet und Kabelfernsehen
Umgebung:
Das Anwesen liegt in einer ruhigen Wohnstraße in Nowe Warpno. In der Nähe finden sich Einkaufsmöglichkeiten, ein Tennisplatz, eine Marina und ein Badestrand am See – perfekte Voraussetzungen für Freizeit, Entspannung und Bewegung an der frischen Luft.
Dieses liebevoll restaurierte Haus ist die ideale Wahl für Familien oder als Anlageobjekt zur Vermietung – dank der durchdachten Raumaufteilung besteht die Möglichkeit, zwei unabhängige Wohneinheiten zu schaffen.
Ein Ort zum Verweilen – wir laden Sie herzlich ein, dieses besondere Zuhause zu entdecken.
Szczegóły
Immobilienart: Einfamilienhaus
Grundstückslage: Ebenes Grundstück
Gesamtfläche: 250,00 m²
Grundstücksfläche: 4.900,00 m²
Grundstücksform: Rechteckig
Wohnfläche: 250,00 m²
Eigentumsform des Grundstücks: Eigentum
Baujahr: 1922
Bauweise: Ziegel
Bauzustand: Sehr gut
Standard: Sehr gut
Anzahl der Etagen (inkl. Erdgeschoss): 1
Dach: Ziegeldach
Dachgeschoss: Ausgebaut
Fenster: Kunststofffenster
Fußbodenart: Holzdielen
Küchentyp: Kochnische
Badezimmeranzahl: 4
Ausstattung der Badezimmer: Dusche, Badewanne, WC, Waschbecken
Heizung: Wärmepumpe
Warmwasser:
Gasanschluss: Ja
Wasseranschluss: Öffentlicher Wasseranschluss
Kanalisation: Öffentlich
Elektrizität: Ja
Spannung 400V (Starkstrom): Ja
Telefonanschluss: Ja
Internet: Ja
Kabelfernsehen: Ja
Ausstattung:
- Kühlschrank
- Backofen
- Geschirrspüler
Garage: Ja
Garten: Ja
Kleiderschrank / begehbarer Kleiderschrank: Ja
Hauswirtschaftsraum: Ja
Terrasse: Ja
Anzahl der Terrassen: 2
Terrassenfläche: 20 m²
Zaunart: Gemischt
Zufahrt: Ruhige Straße
Umgebung:
- Nächstgelegenes See: in der Nähe
- Öffentliche Verkehrsmittel: in der Nähe
Uwaga
- Pierwsze zdjęcie w naszej galerii zostało lekko zmodyfikowane, aby pokazać, jak nieruchomość mogłaby wyglądać – na przykład po zmianie koloru ścian. Kolejne zdjęcia przedstawiają rzeczywisty stan nieruchomości.
- Cena podana w euro odpowiada cenie w złotych, jednak ze względu na wahania kursów walut jest zawsze wartością przybliżoną. W naszych ogłoszeniach zawsze podajemy również cenę w złotych, zgodnie z życzeniem sprzedającego.
Informacje o polskich praktykach rynku nieruchomości:
- Ograniczone informacje o lokalizacji: W Polsce przyjęło się, że ogłoszenia nieruchomości nie ujawniają dokładnego adresu nieruchomości.
- Rzuty: Szczegółowe plany pięter nie zawsze są dostępne w ofertach.
Jako biuro nieruchomości zapewniamy kompleksową obsługę. Reprezentujemy Cię jako kupującego.
Współpracujemy ze sprawdzonymi partnerami (wycena nieruchomości, doradztwo prawne i podatkowe, tłumaczenia przysięgłe, remonty).
Przy inwestycjach kapitałowych oferujemy również zarządzanie nieruchomością.
Osobiste wsparcie – transparentne i kompetentne.
Cechy nieruchomości
- Gas
- Garage
- Garten
- Garderobe
- Terrasse
Te nieruchomości mogą Cię również zainteresować
O nas
Witamy u Twojego partnera na rynku nieruchomości w Szczecinie i na Pomorzu Zachodnim!
Jesteśmy zaangażowanym biurem nieruchomości z wieloletnim doświadczeniem na lokalnym rynku. W naszej ofercie znajdziesz szeroki wybór nieruchomości w Szczecinie oraz atrakcyjne obiekty nad polskim Bałtykiem – do zamieszkania, jako inwestycję kapitałową lub na cele wypoczynkowe.
Mówimy po polsku i po niemiecku, profesjonalnie przeprowadzimy Cię przez cały proces kupna lub sprzedaży. Mieszkanie, dom, działka czy nieruchomość wakacyjna – na pewno znajdziemy odpowiedni adres dla Ciebie!
Zapraszamy na filiżankę kawy do naszego biura lub po prostu skontaktuj się z nami. Czekamy na Ciebie!
Współpraca z nami
Jesteśmy biurem nieruchomości współpracującym z agencjami nieruchomości w województwie zachodniopomorskim. Reprezentujemy wyłącznie jedną stronę transakcji – klienta z Niemiec lub krajów DACH. W jego imieniu negocjujemy cenę, weryfikujemy ofertę i zajmujemy się wszelkimi formalnościami.
Wspieramy naszych klientów również po zakupie i pozostajemy z nimi w kontakcie. Na życzenie pomagamy przy remoncie lub kompleksowej renowacji nieruchomości. Oferujemy również zarządzanie wynajmowanymi nieruchomościami – w Szczecinie i najbliższych okolicach.
Przywiązujemy dużą wagę do jasnych zasad i uczciwości. Nasze prowizje odpowiadają stawkom obowiązującym w Polsce: 3,69% ceny zakupu dla mieszkań i domów oraz 6,15% dla działek. Prowizja jest wymagalna i płatna u notariusza przy podpisaniu umowy.
Współpracujemy z renomowaną, niemieckojęzyczną kancelarią notarialną w Szczecinie.
Korzyści podatkowe
Przy zakupie nieruchomości z rynku wtórnego podatek od czynności cywilnoprawnych wynosi jedynie 2%, a przy rynku pierwotnym nie ma podatku PCC. Dodatkowo podatek od nieruchomości w Polsce jest naliczany od powierzchni i jest bardzo niski.