Modernes 3-Zimmer-Apartment mit Westbalkon in beliebter Lage in Stettin-Gumieńce
182,000 €
Opis
Modernes und großzügiges 3-Zimmer-Apartment mit Westbalkon in Gumieńce
Willkommen in Ihrem neuen Zuhause! Diese stilvolle und sehr gepflegte Wohnung befindet sich im 3. Stock eines modernen Gebäudes aus dem Jahr 2017 in Szczecins beliebtem Stadtteil Gumieńce. Die Wohnfläche beträgt ca. 66,61 m² und bietet einen durchdachten Grundriss mit viel Tageslicht sowie einen großzügigen Balkon in westlicher Ausrichtung – ideal für entspannte Nachmittage in der Sonne.
Highlights der Wohnung
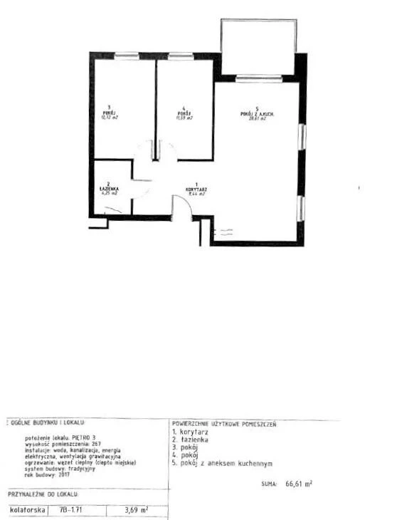
- Wohnfläche: 66,61 m²
- Etage: 3. Obergeschoss
- Baujahr: 2017
- Zustand: sehr gut gepflegt
- Raumhöhe: 2,70 m
- Großes Wohnzimmer mit offener Küche und einem breiten Fenster mit Zugang zum Balkon – lichtdurchflutet und offen geschnitten
- Moderne Einbauküche mit Elektrokochfeld (induktiv), Backofen, Kühlschrank und Geschirrspüler
- Großzügiger Balkon mit Ausrichtung nach Westen – perfekt für Sonnenuntergänge und Kaffeepausen im Freien
- Zwei Schlafzimmer, eines davon aktuell als Homeoffice genutzt, beide mit Einbauschränken
- Heller, großer Flur mit zusätzlichem Stauraum
- Badezimmer mit Wanne, Waschbecken und WC
- Kunststofffenster in hervorragendem Zustand
- Sichere, einbruchhemmende Eingangstür
- Warmwasser und Heizung über das städtische Netz (SEC)
- Zusätzlicher Kellerraum für noch mehr Stauraum
Das Gebäude
- Moderne Architektur mit großzügigem Treppenhaus
- Gepflegte Wohnanlage mit viel Grünflächen und Spielplätzen
- Garage verfügbar (separat erwerbbar, kein Pflichtkauf)
Lage: Gumieńce – ruhig und stadtverbunden
Die ruhige und zugleich bestens angebundene Lage macht dieses Zuhause besonders attraktiv: In nur ca. 15 Minuten erreicht man mit dem Auto das Szczeciner Stadtzentrum. Die Infrastruktur ist hervorragend: Ob Nahversorgung, Gastronomie, Bildungseinrichtungen oder Freizeitangebote – alles befindet sich in bequemer Nähe.
In Ihrer Umgebung:
- Supermarkt (Żabka): 400 m
- Fitnessstudio, Friseur, Bistro und Paketstation: 400 m
- Bahnhof Szczecin Gumieńce: 600 m
- Bushaltestellen der Linien 60, 61, 62, 241, 243 ganz in der Nähe
- Restaurants wie McDonald’s, Netto, Makro in der Nähe
- Universität Szczecin – Fakultäten für Geisteswissenschaft und Wirtschaft: fußläufig erreichbar
Das Wohnviertel „Nowa Cukrownia“ wurde für ein modernes, städtisches Leben mit hoher Lebensqualität geplant. Breite Gehwege, Grünflächen und eine durchdachte Quartiersplanung sorgen dafür, dass sich hier Familien, Paare und Singles gleichermaßen wohlfühlen – auch international!
Freuen Sie sich auf ein neues Kapitel in einer durchdachten und stilvollen Umgebung in bester Lage!
Szczegóły
Eigentumswohnung in Gumieńce – moderner Komfort in ruhiger Lage
Zum Verkauf steht eine attraktive 3-Zimmer-Wohnung mit einer Gesamtfläche von 66,61 m² in einem modernen Mehrfamilienhaus aus dem Jahr 2017 im beliebten Stadtteil Gumieńce.
Die Wohnung befindet sich in einem Gebäude mit insgesamt 3 Etagen (inklusive Erdgeschoss) und zeichnet sich durch einen sehr guten Standard aus. Die Raumhöhe beträgt angenehme 2,70 m.
Aufteilung und Ausstattung: - Offene Küche mit Durchreiche - 1 Badezimmer - Kunststofffenster - Elektrische Küche mit Backofen - Kühlschrank, Geschirrspüler inklusive - Gegensprechanlage vorhanden
Heizung und Warmwasser: - Fernwärme aus dem städtischen Netz
Gebäude: - Bauweise: Block - Baumaterial: Porenbeton (Pustak)
Zusätzliche Annehmlichkeiten: - Garage im Gebäude vorhanden
Umgebung: - Sehr gute Anbindung an den öffentlichen Nahverkehr - Geschäfte des täglichen Bedarfs in unmittelbarer Nähe - In der Nähe befinden sich eine Hochschule, ein Bahnhof, Gastronomiebetriebe, ein Fitnessstudio sowie ein Spielplatz
Nebenkosten: - Monatliches Hausgeld: €186 (PLN 790)
Diese Wohnung bietet eine ausgezeichnete Gelegenheit für alle, die modernen Wohnkomfort in guter Lage suchen. Ideal für Paare, kleine Familien oder als Kapitalanlage.
Uwaga
- Pierwsze zdjęcie w naszej galerii zostało lekko zmodyfikowane, aby pokazać, jak nieruchomość mogłaby wyglądać – na przykład po zmianie koloru ścian. Kolejne zdjęcia przedstawiają rzeczywisty stan nieruchomości.
- Cena podana w euro odpowiada cenie w złotych, jednak ze względu na wahania kursów walut jest zawsze wartością przybliżoną. W naszych ogłoszeniach zawsze podajemy również cenę w złotych, zgodnie z życzeniem sprzedającego.
Informacje o polskich praktykach rynku nieruchomości:
- Ograniczone informacje o lokalizacji: W Polsce przyjęło się, że ogłoszenia nieruchomości nie ujawniają dokładnego adresu nieruchomości.
- Rzuty: Szczegółowe plany pięter nie zawsze są dostępne w ofertach.
Jako biuro nieruchomości zapewniamy kompleksową obsługę. Reprezentujemy Cię jako kupującego.
Współpracujemy ze sprawdzonymi partnerami (wycena nieruchomości, doradztwo prawne i podatkowe, tłumaczenia przysięgłe, remonty).
Przy inwestycjach kapitałowych oferujemy również zarządzanie nieruchomością.
Osobiste wsparcie – transparentne i kompetentne.
Cechy nieruchomości
- Garage
- Garten
- Balkon
Te nieruchomości mogą Cię również zainteresować
O nas
Witamy u Twojego partnera na rynku nieruchomości w Szczecinie i na Pomorzu Zachodnim!
Jesteśmy zaangażowanym biurem nieruchomości z wieloletnim doświadczeniem na lokalnym rynku. W naszej ofercie znajdziesz szeroki wybór nieruchomości w Szczecinie oraz atrakcyjne obiekty nad polskim Bałtykiem – do zamieszkania, jako inwestycję kapitałową lub na cele wypoczynkowe.
Mówimy po polsku i po niemiecku, profesjonalnie przeprowadzimy Cię przez cały proces kupna lub sprzedaży. Mieszkanie, dom, działka czy nieruchomość wakacyjna – na pewno znajdziemy odpowiedni adres dla Ciebie!
Zapraszamy na filiżankę kawy do naszego biura lub po prostu skontaktuj się z nami. Czekamy na Ciebie!
Współpraca z nami
Jesteśmy biurem nieruchomości współpracującym z agencjami nieruchomości w województwie zachodniopomorskim. Reprezentujemy wyłącznie jedną stronę transakcji – klienta z Niemiec lub krajów DACH. W jego imieniu negocjujemy cenę, weryfikujemy ofertę i zajmujemy się wszelkimi formalnościami.
Wspieramy naszych klientów również po zakupie i pozostajemy z nimi w kontakcie. Na życzenie pomagamy przy remoncie lub kompleksowej renowacji nieruchomości. Oferujemy również zarządzanie wynajmowanymi nieruchomościami – w Szczecinie i najbliższych okolicach.
Przywiązujemy dużą wagę do jasnych zasad i uczciwości. Nasze prowizje odpowiadają stawkom obowiązującym w Polsce: 3,69% ceny zakupu dla mieszkań i domów oraz 6,15% dla działek. Prowizja jest wymagalna i płatna u notariusza przy podpisaniu umowy.
Współpracujemy z renomowaną, niemieckojęzyczną kancelarią notarialną w Szczecinie.
Korzyści podatkowe
Przy zakupie nieruchomości z rynku wtórnego podatek od czynności cywilnoprawnych wynosi jedynie 2%, a przy rynku pierwotnym nie ma podatku PCC. Dodatkowo podatek od nieruchomości w Polsce jest naliczany od powierzchni i jest bardzo niski.