Neubau-Doppelhaushälfte mit Garten in ruhiger Wohnlage von Daber
248,000 €
Opis
Moderner Doppelhaushälfte in grüner Lage in Dobra – Neubau mit hochwertiger Ausstattung
Willkommen in Ihrem neuen Zuhause! Diese moderne Doppelhaushälfte befindet sich in einem gepflegten Wohnviertel in Dobra – umgeben von Einfamilienhäusern und mit vollständigem Anschluss an städtische Medien.
Das Haus bietet eine Gesamtfläche von 133,49 m² auf einem 340 m² großen Grundstück. Die Zufahrt zum Grundstück erfolgt über eine Asphaltstraße mit Einfahrt aus Pflasterstein. Zwei private Stellplätze vor dem Haus bieten zusätzlichen Komfort.
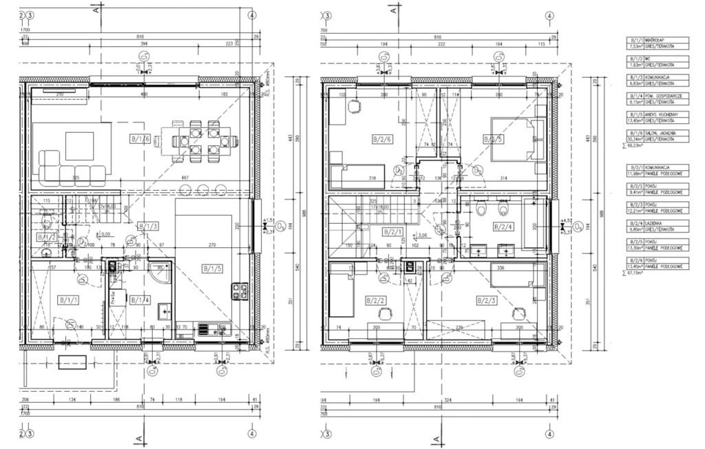
Raumaufteilung
Die durchdachte Raumgestaltung erstreckt sich über zwei Ebenen:
Erdgeschoss: - Geräumiger Wohn-Essbereich – 30,34 m² - Offene Küche mit viel Platz – 13,45 m² - Badezimmer – 6,19 m² - Windfang – 7,53 m² - Flur – 6,83 m² - Hauswirtschaftsraum – 1,93 m²
Obergeschoss: - Vier vielseitig nutzbare Zimmer – 13,45 m², 13,30 m², 12,21 m², 9,41 m² - Flur – 11,98 m² - Zweites Badezimmer – 6,80 m²
Zusätzlichen Stauraum oder kreative Entfaltungsmöglichkeiten bietet der Dachboden mit ca. 12 m² nutzbarer Fläche.
Ausstattungsmerkmale – bezugsfertig im modernen Baustandard
- Effiziente Wärmepumpe von York
- Fußbodenheizung im gesamten Haus
- Vorinstallation für Photovoltaik
- Wärmedämmung mit 20 cm starkem Graphit-Styropor
- Dreifachverglaste Fenster von REHAU mit warmem Einbau und HST-Fenster im Wohnzimmer – für optimalen Lichteinfall und thermische Effizienz
- Dach- und Deckenisolierung mittels PUR-Schaum
- Elektrische Außenrollläden im Erdgeschoss
- Einbruchhemmende Eingangstür mit Edelstahlgriff
- Elektrosystem mit weißem Schalterprogramm
- Elegant gegossene Betontreppe zum Obergeschoss
- Technische Treppe zum Dachboden
- Trennwand zwischen beiden Haushälften als doppelte Wand mit Dehnfuge – für optimalen Schallschutz
- Silikon-Außenputz in Weiß – moderne Gebäudeoptik
- Außenanlagen mit gepflastertem Hauseingang, Zufahrt und Terrassen
- Gartenbereich mit Zugang über Nebentor
- Eingezäuntes Grundstück mit modernen Stabgitterpanelen
- Voll erschlossene Infrastruktur: Wege und Zufahrten rund ums Haus aus Pflasterstein
Dieses Haus ist perfekt für alle, die stilvoll und effizient wohnen möchten – ruhig gelegen und doch gut angebunden. Bezugsfertig ab 2025, in einer zukunftsorientierten Bauweise, die keine Wünsche offenlässt.
Nutzen Sie diese Gelegenheit, um Ihr Traumhaus in einer der gefragtesten Wohngegenden von Dobra zu sichern!
Nebenkosten bei Kauf: - Keine weiteren Steuern angegeben - Schätzkosten wie Verwaltungsgebühren sind nicht enthalten
Wir freuen uns auf Ihre Anfrage für eine Besichtigung!
Szczegóły
Haustyp: Doppelhaushälfte
Gesamtfläche: 133,49 m²
Grundstücksfläche: 340,00 m²
Nutzfläche: 133,49 m²
Baujahr: 2025
Standard: Ausbauzustand – Entwicklerstandard
Bauzustand: Ausbauzustand – Entwicklerstandard
Bauweise: Silikatstein
Küchentyp: Offene Küche
Anzahl der Badezimmer: 2
Etagenanzahl (inkl. Erdgeschoss): 1
Heizsystem: Wärmepumpe
Stromversorgung: Ja
400V Stromanschluss (Drehstrom): Ja
Abwasser: Öffentliches Abwassersystem
Wasserversorgung: Städtisches Wasser
Fenster: Kunststofffenster
Dacheindeckung: Dachziegel
Grundstückseinfriedung: Drahtzaun
Garage: Ja
Garten: Ja
Zusätzliche Informationen:
Das Haus wird in modernem Entwicklerstandard erstellt. Es zeichnet sich durch energieeffiziente Ausstattung aus, darunter eine Wärmepumpe für Heizung und Warmwasser sowie Kunststofffenster. Der 400V Drehstromanschluss ist vorhanden. Dank offener Küche und zwei Badezimmern eignet sich das Objekt perfekt für Familien. Die Immobilie verfügt über eine Garage und einen eigenen Garten auf einem 340 m² großen Grundstück.
Preisbeispiel:
Beispielkosten für Notarleistungen: €1.650 (PLN 7.000)
Uwaga
- Pierwsze zdjęcie w naszej galerii zostało lekko zmodyfikowane, aby pokazać, jak nieruchomość mogłaby wyglądać – na przykład po zmianie koloru ścian. Kolejne zdjęcia przedstawiają rzeczywisty stan nieruchomości.
- Cena podana w euro odpowiada cenie w złotych, jednak ze względu na wahania kursów walut jest zawsze wartością przybliżoną. W naszych ogłoszeniach zawsze podajemy również cenę w złotych, zgodnie z życzeniem sprzedającego.
Informacje o polskich praktykach rynku nieruchomości:
- Ograniczone informacje o lokalizacji: W Polsce przyjęło się, że ogłoszenia nieruchomości nie ujawniają dokładnego adresu nieruchomości.
- Rzuty: Szczegółowe plany pięter nie zawsze są dostępne w ofertach.
Jako biuro nieruchomości zapewniamy kompleksową obsługę. Reprezentujemy Cię jako kupującego.
Współpracujemy ze sprawdzonymi partnerami (wycena nieruchomości, doradztwo prawne i podatkowe, tłumaczenia przysięgłe, remonty).
Przy inwestycjach kapitałowych oferujemy również zarządzanie nieruchomością.
Osobiste wsparcie – transparentne i kompetentne.
Cechy nieruchomości
- Garage
- Garten
Te nieruchomości mogą Cię również zainteresować
O nas
Witamy u Twojego partnera na rynku nieruchomości w Szczecinie i na Pomorzu Zachodnim!
Jesteśmy zaangażowanym biurem nieruchomości z wieloletnim doświadczeniem na lokalnym rynku. W naszej ofercie znajdziesz szeroki wybór nieruchomości w Szczecinie oraz atrakcyjne obiekty nad polskim Bałtykiem – do zamieszkania, jako inwestycję kapitałową lub na cele wypoczynkowe.
Mówimy po polsku i po niemiecku, profesjonalnie przeprowadzimy Cię przez cały proces kupna lub sprzedaży. Mieszkanie, dom, działka czy nieruchomość wakacyjna – na pewno znajdziemy odpowiedni adres dla Ciebie!
Zapraszamy na filiżankę kawy do naszego biura lub po prostu skontaktuj się z nami. Czekamy na Ciebie!
Współpraca z nami
Jesteśmy biurem nieruchomości współpracującym z agencjami nieruchomości w województwie zachodniopomorskim. Reprezentujemy wyłącznie jedną stronę transakcji – klienta z Niemiec lub krajów DACH. W jego imieniu negocjujemy cenę, weryfikujemy ofertę i zajmujemy się wszelkimi formalnościami.
Wspieramy naszych klientów również po zakupie i pozostajemy z nimi w kontakcie. Na życzenie pomagamy przy remoncie lub kompleksowej renowacji nieruchomości. Oferujemy również zarządzanie wynajmowanymi nieruchomościami – w Szczecinie i najbliższych okolicach.
Przywiązujemy dużą wagę do jasnych zasad i uczciwości. Nasze prowizje odpowiadają stawkom obowiązującym w Polsce: 3,69% ceny zakupu dla mieszkań i domów oraz 6,15% dla działek. Prowizja jest wymagalna i płatna u notariusza przy podpisaniu umowy.
Współpracujemy z renomowaną, niemieckojęzyczną kancelarią notarialną w Szczecinie.
Korzyści podatkowe
Przy zakupie nieruchomości z rynku wtórnego podatek od czynności cywilnoprawnych wynosi jedynie 2%, a przy rynku pierwotnym nie ma podatku PCC. Dodatkowo podatek od nieruchomości w Polsce jest naliczany od powierzchni i jest bardzo niski.