Neubau-Doppelhaushälfte mit Weitblick ins Grüne in Siadło Dolne bei Stettin
248,000 €
Opis
Stilvoller Neubau-Doppelhaushälfte mit Blick ins Grüne – traumhafte Lage nahe Szczecin
Willkommen in Ihrem neuen Zuhause in Siadło Dolne – einer charmanten Ortschaft nur 10 Autominuten vom Zentrum Stettins entfernt. Dieses moderne Haus in Doppelhausbauweise bietet nicht nur höchsten Wohnkomfort, sondern auch eine malerische Lage mit Blick auf einen idyllischen Teich und neue Wohnhäuser in der Nachbarschaft.
Highlights der Immobilie
- Gesamtfläche: 118,20 m²
- Wohnfläche: 107,10 m²
- Grundstücksfläche: 390 m² (rechteckig, eben)
- Baujahr: 2023
- Zustand: Neubau, bezugsfertig im Rohbau – ideal zur individuellen Endgestaltung
- Etagen: Erdgeschoss + Obergeschoss
- Heizung: Moderne Wärmepumpe (8 kW von Atlantic, Frankreich) mit Fußbodenheizung im ganzen Haus
- Ausblick: Auf den Teich und angrenzende Natur
Außenbereich & Lage
Das Haus liegt am Ende einer ruhigen Sackgasse, was für absolute Ruhe und Privatsphäre sorgt. Die Zufahrt erfolgt über eine gepflegte Pflasterstraße. Nur wenige Schritte entfernt befinden sich eine schöne Marina sowie ein Spazierweg mit Grillplätzen – ideal für entspannte Stunden mit Familie und Freunden.
Ein Supermarkt und ein Restaurant sind im Bau und ergänzen demnächst die Infrastruktur der wachsenden Wohnsiedlung.
Der private Garten ist bereits eingezäunt und wartet auf Ihre individuelle Gestaltung. Optional kann eine Carport-Lösung zusätzlich erworben werden (Details auf Anfrage).
Energieeffiziente Bauweise
Der moderne Neubau wurde mit hochwertigen Materialien errichtet:
- Außenwände: Kalksandsteinblöcke (Silka)
- Fundament: Bodenplatte mit Pfahlgründung
- Dämmung: 20 cm Styropor an Fassade, Dachdämmung mit PUR-Schaum
- Dach: mit langlebigen Betondachziegeln
- Fenster und Türen: Dreifachverglaste PVC-Fenster, einbruchhemmende Haustür vom Typ "Gerda"
- Elektrik: Komplett mit Schaltern, Steckdosen, zentralem Steuerungssystem für Fußbodenheizung
- Sicherheit: Alarmanlage vorbereitet (Verkabelung in allen fensterhaltigen Räumen)
Vorinstallation für eine Photovoltaikanlage ist bereits vorhanden – ein weiterer Schritt Richtung nachhaltiges Wohnen.
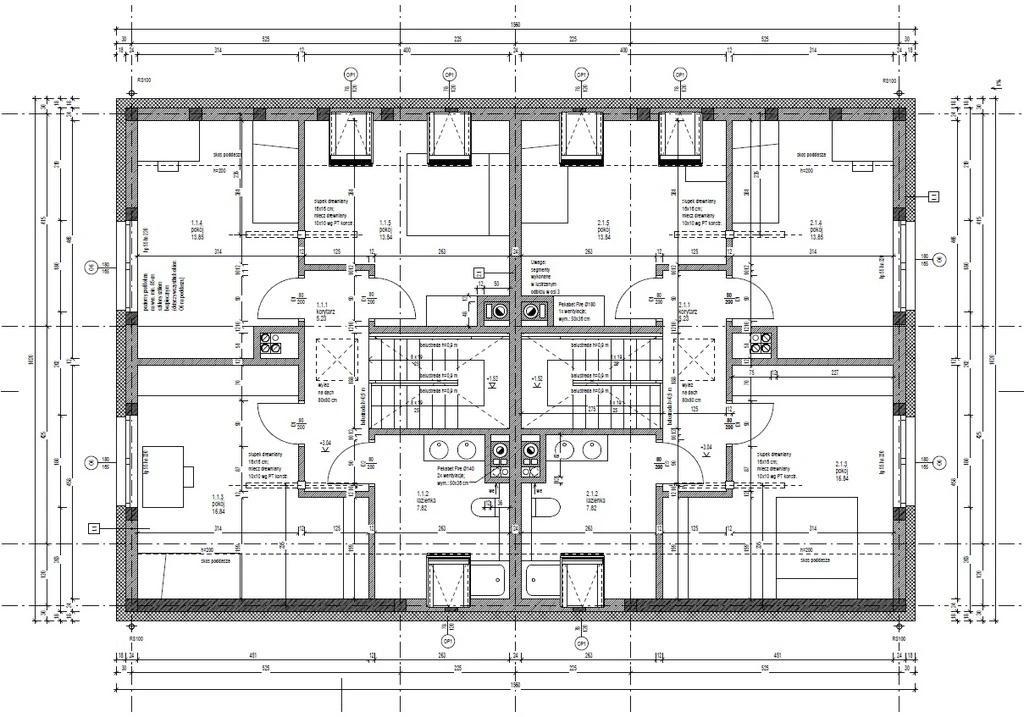
Aufteilung der Räume
Erdgeschoss (ca. 58,14 m²): - Offener Wohn-/Ess- und Kochbereich (29,76 m²) - Arbeitszimmer/Gästezimmer (9,55 m²) - Badezimmer mit Dusche und WC (5,74 m²) - Flur (7,59 m²) - Treppenhaus (5,5 m²)
Obergeschoss (ca. 57,58 m²): - Hauptschlafzimmer (16,84 m²) - Zwei weitere Schlafzimmer (je 13,85 m²) - Großes Badezimmer mit Fenster (7,82 m²) - Flur (5,23 m²)
Ein geräumiger Vorratsbehälter für Warmwasser (190 L) ist bereits installiert.
Anschlüsse & Ausstattung
- Stromanschluss (400V Kraftstrom)
- Städtische Wasser- und Abwasseranschlüsse
- Internetanschluss vorhanden
- Boden: Rohbeton – ideal für individuelle Gestaltung
- Terrasse vorhanden
Das Haus eignet sich ideal für Familien, Naturliebhaber oder alle, die urbanes Leben mit ländlicher Idylle vereinen möchten. Nutzen Sie die Gelegenheit, einen modernen und zukunftssicheren Wohntraum in außergewöhnlicher Lage zu verwirklichen.
Wir freuen uns über Ihr Interesse!
Szczegóły
Immobilienart: Doppelhaushälfte
Grundstückslage: Flaches Gelände
Gesamtfläche: 118,20 m²
Grundstücksfläche: 390,00 m²
Grundstücksform: Rechteckig
Nutzfläche: 118,20 m²
Eigentumsform des Grundstücks: Eigentum
Baujahr: 2023
Standard: Zum Ausbau vorbereitet
Zustand des Gebäudes: Zum Ausbau vorbereitet
Wandmaterial: Ziegel
Küchentyp: Mit Fenster
Anzahl der Badezimmer: 2
Zufahrtsstraße: Ruhige Straße
Anzahl der Etagen (inkl. Erdgeschoss): 1
Warmwasserquelle: –
Heizung: Wärmepumpe
Stromanschluss: Ja
Starkstrom 400V: Ja
Abwasser: Öffentliches Kanalsystem
Wasserquelle: Stadtwasser
Internet: Ja
Fenstertyp: Kunststoff
Dachbedeckung: Dachziegel
Fußbodenart: Beton
Zaunart: Maschendrahtzaun
Garten: Ja
Terrasse: Ja
Anzahl der Terrassen: 1
Nächster Wald: In der Nähe
Nächster Fluss: In der Nähe
Nächster Jachthafen: In der Nähe
Öffentliche Verkehrsmittel: In der Nähe
Uwaga
- Pierwsze zdjęcie w naszej galerii zostało lekko zmodyfikowane, aby pokazać, jak nieruchomość mogłaby wyglądać – na przykład po zmianie koloru ścian. Kolejne zdjęcia przedstawiają rzeczywisty stan nieruchomości.
- Cena podana w euro odpowiada cenie w złotych, jednak ze względu na wahania kursów walut jest zawsze wartością przybliżoną. W naszych ogłoszeniach zawsze podajemy również cenę w złotych, zgodnie z życzeniem sprzedającego.
Informacje o polskich praktykach rynku nieruchomości:
- Ograniczone informacje o lokalizacji: W Polsce przyjęło się, że ogłoszenia nieruchomości nie ujawniają dokładnego adresu nieruchomości.
- Rzuty: Szczegółowe plany pięter nie zawsze są dostępne w ofertach.
Jako biuro nieruchomości zapewniamy kompleksową obsługę. Reprezentujemy Cię jako kupującego.
Współpracujemy ze sprawdzonymi partnerami (wycena nieruchomości, doradztwo prawne i podatkowe, tłumaczenia przysięgłe, remonty).
Przy inwestycjach kapitałowych oferujemy również zarządzanie nieruchomością.
Osobiste wsparcie – transparentne i kompetentne.
Cechy nieruchomości
- Garten
- Terrasse
- Gas
Te nieruchomości mogą Cię również zainteresować
O nas
Witamy u Twojego partnera na rynku nieruchomości w Szczecinie i na Pomorzu Zachodnim!
Jesteśmy zaangażowanym biurem nieruchomości z wieloletnim doświadczeniem na lokalnym rynku. W naszej ofercie znajdziesz szeroki wybór nieruchomości w Szczecinie oraz atrakcyjne obiekty nad polskim Bałtykiem – do zamieszkania, jako inwestycję kapitałową lub na cele wypoczynkowe.
Mówimy po polsku i po niemiecku, profesjonalnie przeprowadzimy Cię przez cały proces kupna lub sprzedaży. Mieszkanie, dom, działka czy nieruchomość wakacyjna – na pewno znajdziemy odpowiedni adres dla Ciebie!
Zapraszamy na filiżankę kawy do naszego biura lub po prostu skontaktuj się z nami. Czekamy na Ciebie!
Współpraca z nami
Jesteśmy biurem nieruchomości współpracującym z agencjami nieruchomości w województwie zachodniopomorskim. Reprezentujemy wyłącznie jedną stronę transakcji – klienta z Niemiec lub krajów DACH. W jego imieniu negocjujemy cenę, weryfikujemy ofertę i zajmujemy się wszelkimi formalnościami.
Wspieramy naszych klientów również po zakupie i pozostajemy z nimi w kontakcie. Na życzenie pomagamy przy remoncie lub kompleksowej renowacji nieruchomości. Oferujemy również zarządzanie wynajmowanymi nieruchomościami – w Szczecinie i najbliższych okolicach.
Przywiązujemy dużą wagę do jasnych zasad i uczciwości. Nasze prowizje odpowiadają stawkom obowiązującym w Polsce: 3,69% ceny zakupu dla mieszkań i domów oraz 6,15% dla działek. Prowizja jest wymagalna i płatna u notariusza przy podpisaniu umowy.
Współpracujemy z renomowaną, niemieckojęzyczną kancelarią notarialną w Szczecinie.
Korzyści podatkowe
Przy zakupie nieruchomości z rynku wtórnego podatek od czynności cywilnoprawnych wynosi jedynie 2%, a przy rynku pierwotnym nie ma podatku PCC. Dodatkowo podatek od nieruchomości w Polsce jest naliczany od powierzchni i jest bardzo niski.