Moderne 3-Zimmer-Wohnung in Stettin – ruhig gelegen und sofort bezugsfrei
150,000 €
Opis
Moderne 3-Zimmer-Wohnung in grüner Lage – sofort bezugsfertig
Lage:
Stettin (Szczecin), Stadtteil Osiedle Arkońskie, ul. Wiosny Ludów – Woiwodschaft Westpommern
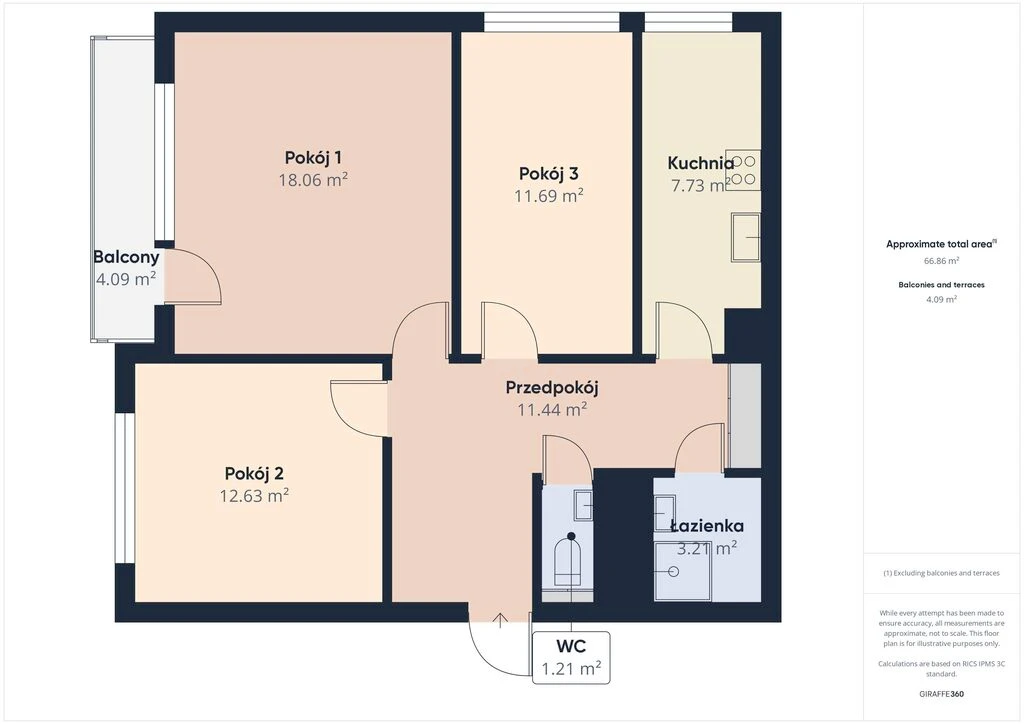
In einem gepflegten Mehrfamilienhaus mit Aufzug erwartet Sie diese moderne Erdgeschosswohnung mit durchdachtem Grundriss und einer Wohnfläche von ca. 66,86 m². Die Immobilie befindet sich in sehr gutem Zustand und bietet Ihnen Komfort, Ruhe sowie eine hervorragende Infrastruktur in unmittelbarer Nähe. Ideal für Familien, Paare oder Senioren. Auch als Zweitwohnsitz oder Investitionsobjekt bestens geeignet.
Raumaufteilung:
- Wohnzimmer: Geräumig und lichtdurchflutet – ein perfekter Ort zum Entspannen oder für gesellige Treffen mit Familie und Freunden.
- 2 Schlafzimmer: Bieten ausreichend Platz und Rückzugsmöglichkeiten, ideal für Familienmitglieder oder Gäste.
- Küche: Funktional geplant, mit Kücheninsel oder kompletter Einbauküche – ausreichend Stauraum und Platz fürs Kochen in angenehmer Atmosphäre.
- Badezimmer: Gepflegt und in sehr gutem Zustand.
- Kellerraum: Praktisch für die Aufbewahrung saisonaler Gegenstände und zusätzlicher Haushaltsgegenstände.
Zusätzliche Vorteile:
- Barrierefreier Zugang: Die Wohnung ist stufenlos erreichbar – ideal für ältere Menschen oder Familien mit Kleinkindern.
- Aufzug im Gebäude: Erleichtert den Zugang zu anderen Etagen.
- Parkmöglichkeiten: In der Umgebung stehen Stellplätze zur Verfügung – komfortabel und alltagstauglich.
Umgebung:
Die Wohnung liegt in einem ruhigen und grünen Wohngebiet – ein Ort zum Wohlfühlen und Abschalten. Gleichzeitig genießen Sie eine hervorragende Anbindung an die städtische Infrastruktur. In der Nähe befinden sich:
- Einkaufsmöglichkeiten
- Schulen und Kindergärten
- Freizeit- und Sporteinrichtungen wie Schwimmbäder und Restaurants
Diese attraktive Wohngegend verbindet Ruhe mit urbanem Leben – ideal für alle, die sowohl Entspannung als auch Nähe zum Stadtzentrum suchen.
Technische Daten:
- Wohnfläche: ca. 66,86 m²
- Zimmer: 3
- Etage: Erdgeschoss
- Baujahr: 1970
- Zustand: Sehr gut
- Hausgeld: ca. €117 (PLN 500) monatlich
Hinweis:
Dieses Angebot richtet sich auch an internationale Käuferinnen und Käufer – einschließlich außerhalb der Europäischen Union.
Wir freuen uns auf Ihre Anfrage und stehen Ihnen gerne für weitere Informationen und Besichtigungen zur Verfügung.
Szczegóły
Immobilienart: Wohnung
Verfügbar ab: 25.01.2025
Stadtteil – Wohngebiet: Siedlung Arkońskie
Gesamtfläche: 66,86 m²
Gebäudeart: Wohnblock
Baujahr: 1970
Standard: Sehr gut
Zustand des Gebäudes: Sehr gut
Wandmaterial: Großplatte
Küchentyp: Mit Fenster
Anzahl der Stockwerke (inkl. Erdgeschoss): 10
Warmwasser: Fernwärme
Heizung: Fernwärme
Unterkellerung / Keller: Keller vorhanden
Telefonanschluss: Ja
Aufzug im Gebäude: Ja
Gasanschluss: Ja
Internetanschluss: Ja
Kabelfernsehen: Ja
Gegensprechanlage: Ja
Fenstertyp: Kunststofffenster
Garage: Ja
Behindertengerecht: Ja
Anzahl der Balkone: 1
Uwaga
- Pierwsze zdjęcie w naszej galerii zostało lekko zmodyfikowane, aby pokazać, jak nieruchomość mogłaby wyglądać – na przykład po zmianie koloru ścian. Kolejne zdjęcia przedstawiają rzeczywisty stan nieruchomości.
- Cena podana w euro odpowiada cenie w złotych, jednak ze względu na wahania kursów walut jest zawsze wartością przybliżoną. W naszych ogłoszeniach zawsze podajemy również cenę w złotych, zgodnie z życzeniem sprzedającego.
Informacje o polskich praktykach rynku nieruchomości:
- Ograniczone informacje o lokalizacji: W Polsce przyjęło się, że ogłoszenia nieruchomości nie ujawniają dokładnego adresu nieruchomości.
- Rzuty: Szczegółowe plany pięter nie zawsze są dostępne w ofertach.
Jako biuro nieruchomości zapewniamy kompleksową obsługę. Reprezentujemy Cię jako kupującego.
Współpracujemy ze sprawdzonymi partnerami (wycena nieruchomości, doradztwo prawne i podatkowe, tłumaczenia przysięgłe, remonty).
Przy inwestycjach kapitałowych oferujemy również zarządzanie nieruchomością.
Osobiste wsparcie – transparentne i kompetentne.
Cechy nieruchomości
- Keller
- Aufzug
- Gas
- Garage
- Barrierefrei
- Erdgeschoss
Te nieruchomości mogą Cię również zainteresować
O nas
Witamy u Twojego partnera na rynku nieruchomości w Szczecinie i na Pomorzu Zachodnim!
Jesteśmy zaangażowanym biurem nieruchomości z wieloletnim doświadczeniem na lokalnym rynku. W naszej ofercie znajdziesz szeroki wybór nieruchomości w Szczecinie oraz atrakcyjne obiekty nad polskim Bałtykiem – do zamieszkania, jako inwestycję kapitałową lub na cele wypoczynkowe.
Mówimy po polsku i po niemiecku, profesjonalnie przeprowadzimy Cię przez cały proces kupna lub sprzedaży. Mieszkanie, dom, działka czy nieruchomość wakacyjna – na pewno znajdziemy odpowiedni adres dla Ciebie!
Zapraszamy na filiżankę kawy do naszego biura lub po prostu skontaktuj się z nami. Czekamy na Ciebie!
Współpraca z nami
Jesteśmy biurem nieruchomości współpracującym z agencjami nieruchomości w województwie zachodniopomorskim. Reprezentujemy wyłącznie jedną stronę transakcji – klienta z Niemiec lub krajów DACH. W jego imieniu negocjujemy cenę, weryfikujemy ofertę i zajmujemy się wszelkimi formalnościami.
Wspieramy naszych klientów również po zakupie i pozostajemy z nimi w kontakcie. Na życzenie pomagamy przy remoncie lub kompleksowej renowacji nieruchomości. Oferujemy również zarządzanie wynajmowanymi nieruchomościami – w Szczecinie i najbliższych okolicach.
Przywiązujemy dużą wagę do jasnych zasad i uczciwości. Nasze prowizje odpowiadają stawkom obowiązującym w Polsce: 3,69% ceny zakupu dla mieszkań i domów oraz 6,15% dla działek. Prowizja jest wymagalna i płatna u notariusza przy podpisaniu umowy.
Współpracujemy z renomowaną, niemieckojęzyczną kancelarią notarialną w Szczecinie.
Korzyści podatkowe
Przy zakupie nieruchomości z rynku wtórnego podatek od czynności cywilnoprawnych wynosi jedynie 2%, a przy rynku pierwotnym nie ma podatku PCC. Dodatkowo podatek od nieruchomości w Polsce jest naliczany od powierzchni i jest bardzo niski.