Exklusives Apartment in Dievenow – stilvoll, modern & nur 600 m von der Ostsee
175,000 €
Opis
Exklusives Apartment in Dziwnów – Stil, Komfort & Nähe zum Meer
Willkommen in Ihrem neuen Zuhause am Meer! Diese stilvolle Immobilie befindet sich im Herzen von Dziwnów, nur ca. 600 Meter von der Ostsee entfernt – direkt am Ufer der Dziwna-Mündung und der malerischen Bucht Wrzosowska.
Das Apartment gehört zu einer modernen Anlage an der ul. Spadochroniarzy Polskich, einem hochwertigen Neubauprojekt, das 2023 fertiggestellt wurde. Die Wohnanlage besteht aus zwei vierstöckigen Gebäuden mit insgesamt 220 ganzjährig nutzbaren Apartments – ideal sowohl zur Eigennutzung als auch zur touristischen Vermietung.
Highlights der Anlage:
- Privater Wellnessbereich mit beheiztem Pool und Sauna
- Spielzimmer für Kinder sowie Tischtennisraum
- Videoüberwachung und Sicherheitsdienst für Ihre Sicherheit
- Personenaufzug in jedem Gebäude
Ein komfortabler Tiefgaragenstellplatz ist zusätzlich erhältlich (€11.711 / PLN 50.000) – nur im Gesamtpaket veräußerbar.
Die Wohnung im Überblick:
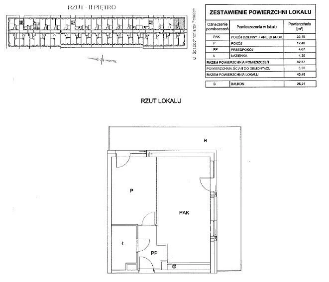
- Wohnfläche: 42,87 m²
- Terrasse: Großzügige, L-förmige Eckterrasse mit 25,21 m² – ein echtes Highlight!
Die Innenräume überzeugen mit stilvollem Design, hochwertigen Materialien und viel Liebe zum Detail. Eine Wohnung, die in puncto Qualität, Funktionalität und Ästhetik neue Maßstäbe setzt.
Raumaufteilung:
- Elegantes Wohnzimmer mit offener Küche, Essbereich und Zugang zur Terrasse
- Separates Schlafzimmer mit maßgefertigtem Einbauschrank und eigenem Terrassenzugang
- Modernes Badezimmer mit bodengleicher Dusche, geschmackvoll gestaltet
- Geräumiger Flur mit großem Einbauschrank für zusätzlichen Stauraum
Nebenkosten und Verwaltung:
- Monatliche Betriebskosten ca. €164 (PLN 700)
Enthalten sind: Heizkostenabschläge, Wasser, Abfallentsorgung und Hausverwaltung - Stromkosten werden separat abgerechnet
Eine Investition, die sich lohnt:
Dieses Apartment ist eine hervorragende Wahl für alle, die ein elegantes Feriendomizil oder eine Kapitalanlage an der polnischen Ostseeküste suchen. Die Kombination aus attraktiver Lage, hochwertiger Ausstattung und durchdachtem Konzept macht diese Immobilie zur sicheren Entscheidung für anspruchsvolle Käufer.
Darüber hinaus steht ein weiteres, ähnliches Apartment im Erdgeschoss desselben Gebäudes zum Verkauf – ideal für Familie, Freunde oder als Erweiterung Ihres Immobilienportfolios.
Entdecken Sie diese besondere Immobilie bei einem virtuellen Rundgang und überzeugen Sie sich selbst von der Qualität und dem Charme dieses Ortes!
Wir freuen uns auf Ihre Anfrage und einen persönlichen Besichtigungstermin.
Szczegóły
Eigentumswohnung in einem modernen Apartmenthaus – Baujahr 2023
Grunddaten:
- Objekttyp: Wohnung
- Gesamtfläche: 42,87 m²
- Grundstückseigentum: Eigentum
- Gebäudeart: Apartmenthaus
- Baujahr: 2023
- Bauweise: Ziegelbau
- Etagenanzahl (inkl. Erdgeschoss): 2
- Etage: (bitte angeben)
Ausstattung und Zustand:
- Standard: Neuwertig / In idealem Zustand
- Gebäudestatus: Neuwertig
- Küche: Offene Küche (Kochnische)
- Badezimmer: 1
- Aufzug: Ja
- Überwachung und Sicherheit:
- Videoüberwachung (Monitoring)
- Sicherheitsdienst vorhanden
Zusätzliche Merkmale: - Garage / Stellplatz: Ja
Diese moderne und elegante Wohnung befindet sich in einem stilvollen Apartmenthaus, das 2023 erbaut wurde. Sie bietet höchsten Wohnkomfort auf 42,87 m² Wohnfläche und ist ideal für Singles, Paare oder als Kapitalanlage geeignet.
Hervorzuheben ist der neuwertige Zustand der Immobilie sowie die hochwertige Bauweise mit Ziegelmauerwerk, die für Langlebigkeit und eine gute Wärmeisolierung sorgt. Die Wohnung verfügt über einen offenen Küchenbereich, der sich perfekt in den Wohnraum integriert und eine moderne Wohnatmosphäre schafft.
Das Badezimmer ist funktional und modern ausgestattet, während der Zugang zum Gebäude durch einen Aufzug erleichtert wird – ideal auch für ältere Personen oder Familien mit Kindern.
Sicherheit wird hier großgeschrieben: Das Gebäude ist videoüberwacht und durch einen Sicherheitsdienst geschützt. Für zusätzlichen Komfort sorgt eine eigene Garage bzw. ein Stellplatz, der im Preis inklusive sein kann (bitte Details erfragen).
Überzeugen Sie sich selbst von diesem attraktiven Angebot und vereinbaren Sie einen Besichtigungstermin!
Uwaga
- Pierwsze zdjęcie w naszej galerii zostało lekko zmodyfikowane, aby pokazać, jak nieruchomość mogłaby wyglądać – na przykład po zmianie koloru ścian. Kolejne zdjęcia przedstawiają rzeczywisty stan nieruchomości.
- Cena podana w euro odpowiada cenie w złotych, jednak ze względu na wahania kursów walut jest zawsze wartością przybliżoną. W naszych ogłoszeniach zawsze podajemy również cenę w złotych, zgodnie z życzeniem sprzedającego.
Informacje o polskich praktykach rynku nieruchomości:
- Ograniczone informacje o lokalizacji: W Polsce przyjęło się, że ogłoszenia nieruchomości nie ujawniają dokładnego adresu nieruchomości.
- Rzuty: Szczegółowe plany pięter nie zawsze są dostępne w ofertach.
Jako biuro nieruchomości zapewniamy kompleksową obsługę. Reprezentujemy Cię jako kupującego.
Współpracujemy ze sprawdzonymi partnerami (wycena nieruchomości, doradztwo prawne i podatkowe, tłumaczenia przysięgłe, remonty).
Przy inwestycjach kapitałowych oferujemy również zarządzanie nieruchomością.
Osobiste wsparcie – transparentne i kompetentne.
Cechy nieruchomości
- Aufzug
- Sicherheit
- Garage
- an der Ostsee
Te nieruchomości mogą Cię również zainteresować
O nas
Witamy u Twojego partnera na rynku nieruchomości w Szczecinie i na Pomorzu Zachodnim!
Jesteśmy zaangażowanym biurem nieruchomości z wieloletnim doświadczeniem na lokalnym rynku. W naszej ofercie znajdziesz szeroki wybór nieruchomości w Szczecinie oraz atrakcyjne obiekty nad polskim Bałtykiem – do zamieszkania, jako inwestycję kapitałową lub na cele wypoczynkowe.
Mówimy po polsku i po niemiecku, profesjonalnie przeprowadzimy Cię przez cały proces kupna lub sprzedaży. Mieszkanie, dom, działka czy nieruchomość wakacyjna – na pewno znajdziemy odpowiedni adres dla Ciebie!
Zapraszamy na filiżankę kawy do naszego biura lub po prostu skontaktuj się z nami. Czekamy na Ciebie!
Współpraca z nami
Jesteśmy biurem nieruchomości współpracującym z agencjami nieruchomości w województwie zachodniopomorskim. Reprezentujemy wyłącznie jedną stronę transakcji – klienta z Niemiec lub krajów DACH. W jego imieniu negocjujemy cenę, weryfikujemy ofertę i zajmujemy się wszelkimi formalnościami.
Wspieramy naszych klientów również po zakupie i pozostajemy z nimi w kontakcie. Na życzenie pomagamy przy remoncie lub kompleksowej renowacji nieruchomości. Oferujemy również zarządzanie wynajmowanymi nieruchomościami – w Szczecinie i najbliższych okolicach.
Przywiązujemy dużą wagę do jasnych zasad i uczciwości. Nasze prowizje odpowiadają stawkom obowiązującym w Polsce: 3,69% ceny zakupu dla mieszkań i domów oraz 6,15% dla działek. Prowizja jest wymagalna i płatna u notariusza przy podpisaniu umowy.
Współpracujemy z renomowaną, niemieckojęzyczną kancelarią notarialną w Szczecinie.
Korzyści podatkowe
Przy zakupie nieruchomości z rynku wtórnego podatek od czynności cywilnoprawnych wynosi jedynie 2%, a przy rynku pierwotnym nie ma podatku PCC. Dodatkowo podatek od nieruchomości w Polsce jest naliczany od powierzchni i jest bardzo niski.