Moderne Maisonette mit Garten in Mierzyn – Erstbezug in familienfreundlicher Lage
235,000 €
Opis
Maisonette-Wohnung mit Gartenanteil in beliebter Wohngegend in Stettin – im Erstbezug
Zum Verkauf steht eine moderne, zweistöckige 5-Zimmer-Wohnung im Erstbezugszustand, gelegen in einem attraktiven und familienfreundlichen Wohnviertel von Stettin. Die Wohnung bietet ein durchdachtes Raumkonzept, eine großzügige Gartenfläche von ca. 120 m² sowie einen hohen Ausbaustandard.
Wohnfläche: 103,58 m²
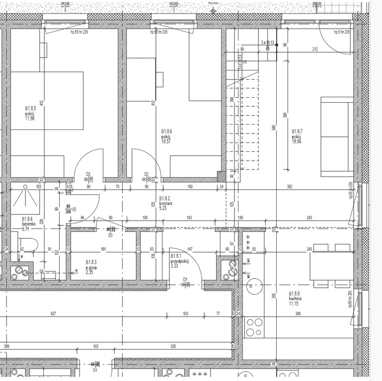
Ebene I:
- Helles Wohnzimmer mit offener Küche – ca. 30 m²
- Zimmer – ca. 10,57 m²
- Zimmer – ca. 12,57 m²
- Hauswirtschaftsraum – ca. 2,35 m²
- Badezimmer – ca. 3,74 m²
- Flur mit Eingangsbereich
Ebene II:
- Schlafzimmer – ca. 10,57 m²
- Schlafzimmer mit Zugang zum Balkon – ca. 10,1 m²
- Badezimmer – ca. 6,21 m²
- Hauswirtschaftsraum – ca. 5,79 m²
- Flur
Ausstattung im Erstbezugsstandard:
- Dreifach verglaste Fenster mit Lüftungselementen
- Maschinenverputzte Gipswände
- Installationen (Elektro, Wasser-/Abwasser, Heizung) fertig vorbereitet
- Vorinstallierte TV- und Internetanschlüsse
- Flachheizkörper in den Schlafzimmern, Handtuchheizkörper im Bad
Fußbodenheizung im Badezimmer optional möglich
Highlight: Eigener Gartenanteil von ca. 120 m²
Ein direkter Zugang zur privaten Gartenfläche bietet zusätzlichen Wohnkomfort – ideal zum Entspannen, für Familien mit Kindern oder für Hobbygärtner.
Tiefgaragenstellplatz obligatorisch
Zu jeder Wohnung gehört mindestens ein Stellplatz in der Tiefgarage des Gebäudes (mit Aufzug bis zum Untergeschoss).
- Preis pro Stellplatz: €9.400 (PLN 40.000)
- Breite: ca. 3 m | Länge: ca. 5,5 m
- Bequeme Ein- und Ausfahrt durch großzügige Maße
Weitere Merkmale:
- Heizung und Warmwasser zentral über städtische Versorgungswerke (SEC)
- Eigentumsübertragung: geplanter Termin im 1. bis 2. Quartal 2025
- Schlüsselübergabe zur Innenausstattung bereits möglich – Bauarbeiten abgeschlossen
Die Wohnanlage:
- Zeitgemäße Architektur mit klaren Linien
- Vollständig erschlossenes Grundstück
- Fußwege, Grünflächen und Spielplatz vorhanden
- Ruhige Umgebung mit niedriger Bebauung
Lage:
Das Objekt befindet sich in einer gefragten und gut angebundenen Lage von Stettin. Einkaufsmöglichkeiten, Schule, Kindergarten, Krippe sowie eine medizinische Einrichtung befinden sich in unmittelbarer Nähe.
Diese Immobilie vereint modernes Wohnen mit Familienfreundlichkeit und großzügigem Außenbereich. Ein perfekter Ort zum Leben – ruhig gelegen und dennoch zentrumsnah.
Vereinbaren Sie gerne einen Besichtigungstermin – wir freuen uns auf Ihren Besuch!
Szczegóły
Immobilienart: Wohnung
Gesamtfläche: 103,58 m²
Grundstückseigentum: Eigentum
Gebäudetyp: Wohnblock
Baujahr: 2024
Standard: Bauträgerzustand
Gebäudestatus: Neuwertig
Wandmaterial: Ziegel
Küchentyp: Offene Küche (Kochnische)
Küchenfläche: 5 m²
Anzahl der Badezimmer: 1
Badezimmerfläche: 6,61 m²
Zufahrt: Ruhige Straße
Zimmerflächen: 30 m² + 12 m² + 11 m² + 10 m² + 10 m²
Erdgeschosswohnung: Ja
Anzahl der Stockwerke (inkl. EG): 3
Raumhöhe: 2,65 m
Warmwasserquelle: Städtisches Netz
Heizung: Fernwärme (städtisches Netz)
Telefonanschluss: Ja
Aufzug im Gebäude: Ja
Starkstrom (400V): Ja
Internetzugang: Ja
Kabelfernsehen: Ja
Gegensprechanlage: Ja
Fenstertyp: Kunststofffenster
Bodenbelag: Betonrohboden
Umzäunung: Komplett eingezäunt
Garage: Ja
Anzahl der Stellplätze: 40.000
Garten: Ja
Barrierefrei: Ja
Anzahl der Balkone: 1
Balkonfläche: 5 m²
Terrasse: Ja
Anzahl der Terrassen: 1
Terrassenfläche: 12 m²
Ausrichtung: Westblick
In der Nähe befinden sich:
- Geschäft
- Kindertagesstätte
- Kindergarten
- Grundschule
- Bushaltestelle (Fernverkehr)
- Öffentliche Verkehrsmittel
- Apotheke
- Gastronomiebetrieb
- Fitnessstudio
- Spielplatz
Badezimmerausstattung: Handtuchheizkörper
Uwaga
- Pierwsze zdjęcie w naszej galerii zostało lekko zmodyfikowane, aby pokazać, jak nieruchomość mogłaby wyglądać – na przykład po zmianie koloru ścian. Kolejne zdjęcia przedstawiają rzeczywisty stan nieruchomości.
- Cena podana w euro odpowiada cenie w złotych, jednak ze względu na wahania kursów walut jest zawsze wartością przybliżoną. W naszych ogłoszeniach zawsze podajemy również cenę w złotych, zgodnie z życzeniem sprzedającego.
Informacje o polskich praktykach rynku nieruchomości:
- Ograniczone informacje o lokalizacji: W Polsce przyjęło się, że ogłoszenia nieruchomości nie ujawniają dokładnego adresu nieruchomości.
- Rzuty: Szczegółowe plany pięter nie zawsze są dostępne w ofertach.
Jako biuro nieruchomości zapewniamy kompleksową obsługę. Reprezentujemy Cię jako kupującego.
Współpracujemy ze sprawdzonymi partnerami (wycena nieruchomości, doradztwo prawne i podatkowe, tłumaczenia przysięgłe, remonty).
Przy inwestycjach kapitałowych oferujemy również zarządzanie nieruchomością.
Osobiste wsparcie – transparentne i kompetentne.
Cechy nieruchomości
- Erdgeschoss
- Aufzug
- Zaun
- Garage
- Garten
- Barrierefrei
- Terrasse
- Balkon
Te nieruchomości mogą Cię również zainteresować
O nas
Witamy u Twojego partnera na rynku nieruchomości w Szczecinie i na Pomorzu Zachodnim!
Jesteśmy zaangażowanym biurem nieruchomości z wieloletnim doświadczeniem na lokalnym rynku. W naszej ofercie znajdziesz szeroki wybór nieruchomości w Szczecinie oraz atrakcyjne obiekty nad polskim Bałtykiem – do zamieszkania, jako inwestycję kapitałową lub na cele wypoczynkowe.
Mówimy po polsku i po niemiecku, profesjonalnie przeprowadzimy Cię przez cały proces kupna lub sprzedaży. Mieszkanie, dom, działka czy nieruchomość wakacyjna – na pewno znajdziemy odpowiedni adres dla Ciebie!
Zapraszamy na filiżankę kawy do naszego biura lub po prostu skontaktuj się z nami. Czekamy na Ciebie!
Współpraca z nami
Jesteśmy biurem nieruchomości współpracującym z agencjami nieruchomości w województwie zachodniopomorskim. Reprezentujemy wyłącznie jedną stronę transakcji – klienta z Niemiec lub krajów DACH. W jego imieniu negocjujemy cenę, weryfikujemy ofertę i zajmujemy się wszelkimi formalnościami.
Wspieramy naszych klientów również po zakupie i pozostajemy z nimi w kontakcie. Na życzenie pomagamy przy remoncie lub kompleksowej renowacji nieruchomości. Oferujemy również zarządzanie wynajmowanymi nieruchomościami – w Szczecinie i najbliższych okolicach.
Przywiązujemy dużą wagę do jasnych zasad i uczciwości. Nasze prowizje odpowiadają stawkom obowiązującym w Polsce: 3,69% ceny zakupu dla mieszkań i domów oraz 6,15% dla działek. Prowizja jest wymagalna i płatna u notariusza przy podpisaniu umowy.
Współpracujemy z renomowaną, niemieckojęzyczną kancelarią notarialną w Szczecinie.
Korzyści podatkowe
Przy zakupie nieruchomości z rynku wtórnego podatek od czynności cywilnoprawnych wynosi jedynie 2%, a przy rynku pierwotnym nie ma podatku PCC. Dodatkowo podatek od nieruchomości w Polsce jest naliczany od powierzchni i jest bardzo niski.