Moderne Doppelhaushälfte in Möhringen mit Garten und hochwertiger Ausstattung
272,000 €
Opis
Moderner Doppelhaushälfte in Mierzyn – Wohnkomfort auf hohem Niveau
Willkommen in Ihrem neuen Zuhause – einer modernen Doppelhaushälfte im begehrten Mierzyn, nur wenige Schritte von einer Grundschule und allen wichtigen Einrichtungen des täglichen Bedarfs entfernt. Das Haus wird im gehobenen "Entwicklerstandard Plus" angeboten, mit durchdachter Ausstattung und nachhaltiger Haustechnik – ideal für Familien mit hohen Ansprüchen.
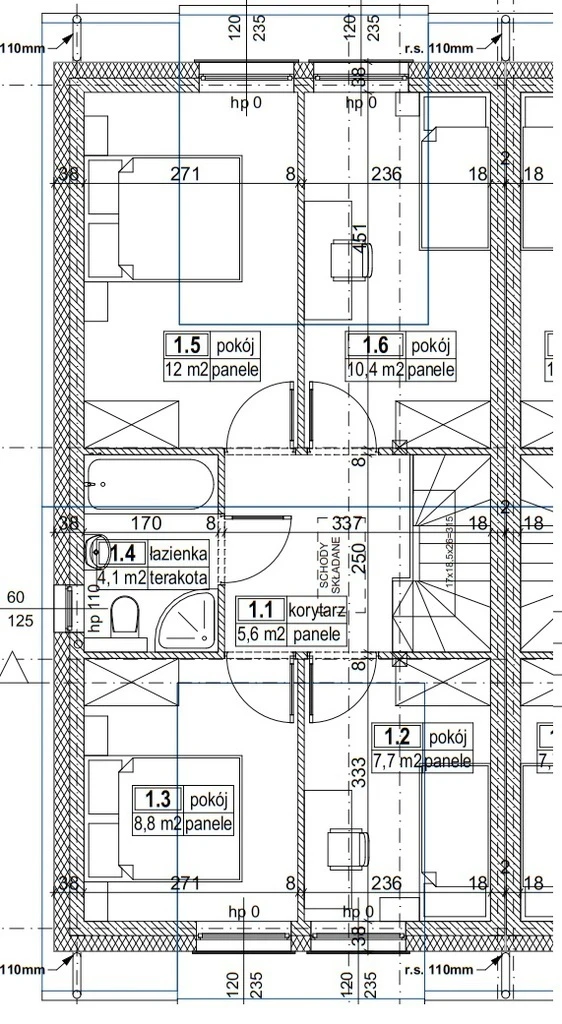
Raumaufteilung und Wohnfläche
Die Immobilie verfügt über eine großzügige Wohnfläche von 100,70 m² auf einem rechteckigen Grundstück von 344 m². Die Räume verteilen sich wie folgt:
Erdgeschoss: - Heller Wohn- und Essbereich: 40 m² - Küche mit Fenster: 5 m² - Gäste-WC mit Dusche: 2,1 m² - Windfang/Diele: 4,5 m²
Obergeschoss: - Schlafzimmer: 12 m² - Kinderzimmer 1: 10,4 m² - Kinderzimmer 2: 8,8 m² - Arbeits-/Gästezimmer: 7,7 m² - Bad mit Dusche und WC: 4,1 m² - Flur: 5,6 m²
Das Dachgeschoss ist über eine klappbare Holztreppe zugänglich und nutzbar.
Ausstattung – Hoher Standard inklusive
Diese stilvolle Doppelhaushälfte wurde mit zweischaliger Trennwand zum Nachbarhaus (mit Schallschutzdämmschicht aus Styropor) gebaut. Die einzelnen Elemente der hochwertigen Ausstattung:
- Effiziente Luft-Wasser-Wärmepumpe für Heizung und Warmwasser
- Fußbodenheizung im gesamten Haus
- Rekuperationssystem mit Belüftungseinheit
- Dreifachverglaste Kunststofffenster (Profil Salamander) mit warmer Montage
- Hebeschiebetür zur Terrasse
- Elektrische Außenrollläden (Erdgeschoss)
- Eingangstür in Anthrazit
- Ausbau einer Internet-, TV- und Alarmanlageverteilanlage
- Vorverkabelung für Überwachungskameras
- Ziegelbauweise mit 20 cm Außendämmung
- Wand- und Deckenausbau mit Gipskartonplatten
- Innengipsputz für alle Innenwände
- Farbiger mineralischer Außenputz kombiniert mit PVC-Holzoptikpaneelen
- Dachdeckung mit flacher, anthrazitfarbener Tondachziegel
- Regenrinnen und Fallrohre in Anthrazit
- Außenwasseranschluss für Gartenpflege vorhanden
- Grundstück ist begradigt, Gartenbereich im hinteren Teil umzäunt
- Zwei Stellplätze mit Pflaster- bzw. Rasengittersteinbelag
Weitere Vorteile
- Ruhige Lage an einer Nebenstraße mit guter Anbindung
- Modernes Heiz- und Belüftungssystem macht das Haus energieeffizient
- Keine weiteren Ausbauarbeiten notwendig, da alle technischen Installationen bereits vorbereitet sind
- Im attraktivem Neubaugebiet mit Grünflächen, Spielplätzen und Nähe zu Kindergarten, Schule, Uni, Apotheke und Wald
Ein ideales Zuhause für Familien, die stilvolles Wohnen mit technischem Komfort und ruhiger Lage verbinden möchten.
Erleben Sie modernes Wohnen im Herzen von Mierzyn – wir freuen uns auf Ihre Besichtigung!
Szczegóły
Immobilienart: Doppelhaushälfte
Grundstückslage: Ebenes Gelände
Gesamtfläche: 100,70 m²
Grundstücksfläche: 344,00 m²
Grundstücksform: Rechteck
Nutzfläche: 100,70 m²
Baujahr: 2025
Ausbaustandard: Entwicklerstandard
Gebäudestatus: Entwicklerstandard
Wandmaterial: Ziegel
Küchentyp: Mit Fenster
Küchenfläche: 5 m²
Anzahl der Badezimmer: 2
Badezimmerflächen: 2,1 m² + 4,1 m²
Zufahrtsstraße: Ruhige Straße
Zimmerflächen: 40,5 m² + 12 m² + 10,4 m² + 8,8 m² + 7,7 m²
Etagenanzahl (inkl. EG): 1
Heizungsart: Wärmepumpe
Stromanschluss: Ja
Starkstrom (400 V): Ja
Abwasser: Öffentliches Kanalsystem
Wasseranschluss: Stadtwasser
Belüftung: Ja
Internet: Ja
Kabelfernsehen: Ja
Alarmanlage: Ja
Fensterart: Kunststofffenster
Dachdeckung: Keramikdachziegel
Dachgeschoss: Ausgebaut
Größe des Gartens: Ja
Garten: Ja
Garderobe / Ankleideraum: Ja
Garage: Ja
Stellplätze in der Garage: 2
Lage & Umgebung:
- Wald: In der Nähe
- Kindergarten: In der Nähe
- Grundschule: In der Nähe
- Hochschule: In der Nähe
- Apotheke: In der Nähe
- Spielplatz: In der Nähe
Uwaga
- Pierwsze zdjęcie w naszej galerii zostało lekko zmodyfikowane, aby pokazać, jak nieruchomość mogłaby wyglądać – na przykład po zmianie koloru ścian. Kolejne zdjęcia przedstawiają rzeczywisty stan nieruchomości.
- Cena podana w euro odpowiada cenie w złotych, jednak ze względu na wahania kursów walut jest zawsze wartością przybliżoną. W naszych ogłoszeniach zawsze podajemy również cenę w złotych, zgodnie z życzeniem sprzedającego.
Informacje o polskich praktykach rynku nieruchomości:
- Ograniczone informacje o lokalizacji: W Polsce przyjęło się, że ogłoszenia nieruchomości nie ujawniają dokładnego adresu nieruchomości.
- Rzuty: Szczegółowe plany pięter nie zawsze są dostępne w ofertach.
Jako biuro nieruchomości zapewniamy kompleksową obsługę. Reprezentujemy Cię jako kupującego.
Współpracujemy ze sprawdzonymi partnerami (wycena nieruchomości, doradztwo prawne i podatkowe, tłumaczenia przysięgłe, remonty).
Przy inwestycjach kapitałowych oferujemy również zarządzanie nieruchomością.
Osobiste wsparcie – transparentne i kompetentne.
Cechy nieruchomości
- Garage
- Garten
- Garderobe
- Gas
Te nieruchomości mogą Cię również zainteresować
O nas
Witamy u Twojego partnera na rynku nieruchomości w Szczecinie i na Pomorzu Zachodnim!
Jesteśmy zaangażowanym biurem nieruchomości z wieloletnim doświadczeniem na lokalnym rynku. W naszej ofercie znajdziesz szeroki wybór nieruchomości w Szczecinie oraz atrakcyjne obiekty nad polskim Bałtykiem – do zamieszkania, jako inwestycję kapitałową lub na cele wypoczynkowe.
Mówimy po polsku i po niemiecku, profesjonalnie przeprowadzimy Cię przez cały proces kupna lub sprzedaży. Mieszkanie, dom, działka czy nieruchomość wakacyjna – na pewno znajdziemy odpowiedni adres dla Ciebie!
Zapraszamy na filiżankę kawy do naszego biura lub po prostu skontaktuj się z nami. Czekamy na Ciebie!
Współpraca z nami
Jesteśmy biurem nieruchomości współpracującym z agencjami nieruchomości w województwie zachodniopomorskim. Reprezentujemy wyłącznie jedną stronę transakcji – klienta z Niemiec lub krajów DACH. W jego imieniu negocjujemy cenę, weryfikujemy ofertę i zajmujemy się wszelkimi formalnościami.
Wspieramy naszych klientów również po zakupie i pozostajemy z nimi w kontakcie. Na życzenie pomagamy przy remoncie lub kompleksowej renowacji nieruchomości. Oferujemy również zarządzanie wynajmowanymi nieruchomościami – w Szczecinie i najbliższych okolicach.
Przywiązujemy dużą wagę do jasnych zasad i uczciwości. Nasze prowizje odpowiadają stawkom obowiązującym w Polsce: 3,69% ceny zakupu dla mieszkań i domów oraz 6,15% dla działek. Prowizja jest wymagalna i płatna u notariusza przy podpisaniu umowy.
Współpracujemy z renomowaną, niemieckojęzyczną kancelarią notarialną w Szczecinie.
Korzyści podatkowe
Przy zakupie nieruchomości z rynku wtórnego podatek od czynności cywilnoprawnych wynosi jedynie 2%, a przy rynku pierwotnym nie ma podatku PCC. Dodatkowo podatek od nieruchomości w Polsce jest naliczany od powierzchni i jest bardzo niski.