Neubauwohnung im Grünen bei Stettin – 3 Zimmer, 73 m², sofort bezugsfrei
153,000 €
Opis
Wohnen im Grünen – nur 15 Minuten vom Stadtzentrum Szczecin entfernt!
Sie träumen von einem ruhigen Zuhause im Grünen, möchten jedoch die Nähe zur Stadt nicht missen? Dieses charmante Neubauapartment vereint das Beste aus beiden Welten!
Lage und Umgebung
Die Immobilie befindet sich in der grünen Umgebung von Szczecin, nur ca. 15 Fahrminuten mit dem Auto oder 25 Minuten mit dem Bus vom Stadtzentrum entfernt. In unmittelbarer Nähe finden Sie Schulen, Apotheken, eine Arztpraxis, Discounter sowie eine Bushaltestelle – alles, was Sie für den Alltag benötigen.
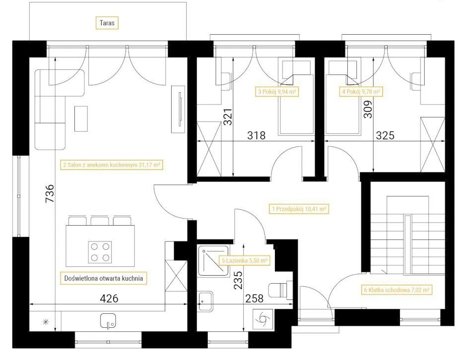
Die Wohnung
Diese helle 3-Zimmer-Wohnung mit ca. 73,4 m² Wohnfläche befindet sich im 1. Obergeschoss eines neu erbauten Gebäudes mit nur vier Wohneinheiten.
Die Wohnung wurde vom Eigentümer ursprünglich für den Eigenbedarf geplant und hochwertig im Rohbauzustand vorbereitet – nun wartet sie auf Ihre persönliche Note.
Raumaufteilung:
- Wohnbereich mit offener Küche (ca. 30 m²)
Großzügiger, lichtdurchfluteter Raum mit modernen Installationen. Starkstromanschluss für eine Induktionskochplatte ist bereits vorhanden.
-
Zwei Schlafzimmer (je ca. 11 m²)
Große Fensterflächen sorgen für eine helle und freundliche Atmosphäre. Wände bereit zum Streichen, Fußböden vorbereitet für Ihre Wunschbeläge. -
Badezimmer (ca. 6 m²)
Ausgestattet mit einem modernen, zweikreisigen Heizsystem, das für Warmwasser und Fußbodenheizung in der gesamten Wohnung sorgt. -
Eigener Treppenaufgang & Flur
Ein echtes Highlight der Wohnung ist der separate Eingang mit privatem Treppenhaus vom Erdgeschoss ins Obergeschoss – für zusätzlichen Komfort und Privatsphäre.
Gebäude
- Neubau in energiesparender Bauweise
- 3-fach verglaste Fenster mit Holzoptik
- 20 cm Fassadendämmung mit hochwertigem Graphit-Styropor
Besondere Vorteile:
- Kein Hausgeld – Sie zahlen nur die von Ihnen verbrauchten Medien
- Moderne, energieeffiziente Ausstattung
- Ideale Kombination aus ruhiger Lage und städtischer Anbindung
- Sofort verfügbar – einziehen und individuell gestalten!
Hinweis:
Der Kauf erfolgt auf Basis von Miteigentumsanteilen und ist hauptsächlich für Barzahler geeignet.
Lassen Sie sich inspirieren
Diese seltene Gelegenheit lädt dazu ein, Ihrer Kreativität beim Innenausbau freien Lauf zu lassen. Ob als gemütliches Eigenheim im Grünen oder als renditestarke Kapitalanlage – hier sind viele Optionen offen!
Wir laden Sie herzlich zu einer Besichtigung ein – überzeugen Sie sich selbst vom Potenzial dieser einzigartigen Immobilie!
Szczegóły
Immobilienart: Wohnung
Stadtteil / Wohnviertel: Podjuchy
Gesamtfläche: 73,80 m²
Grundstückseigentum: Eigentum
Anteil am Grundstück: 1
Baujahr: 2023
Ausstattungsstandard: Bauträgerstandard
Zustand des Gebäudes: Neuwertig
Wandmaterial: Ytong
Küchentyp: Offene Küche
Anzahl der Badezimmer: 1
Anzahl der Etagen (inkl. Erdgeschoss): 1
Warmwasser: Zentrale städtische Versorgung
Heizung: Fußbodenheizung
Gasanschluss: Ja
Fenster: Kunststofffenster
Garage: Ja
Anzahl der Balkone: 1
Uwaga
- Pierwsze zdjęcie w naszej galerii zostało lekko zmodyfikowane, aby pokazać, jak nieruchomość mogłaby wyglądać – na przykład po zmianie koloru ścian. Kolejne zdjęcia przedstawiają rzeczywisty stan nieruchomości.
- Cena podana w euro odpowiada cenie w złotych, jednak ze względu na wahania kursów walut jest zawsze wartością przybliżoną. W naszych ogłoszeniach zawsze podajemy również cenę w złotych, zgodnie z życzeniem sprzedającego.
Informacje o polskich praktykach rynku nieruchomości:
- Ograniczone informacje o lokalizacji: W Polsce przyjęło się, że ogłoszenia nieruchomości nie ujawniają dokładnego adresu nieruchomości.
- Rzuty: Szczegółowe plany pięter nie zawsze są dostępne w ofertach.
Jako biuro nieruchomości zapewniamy kompleksową obsługę. Reprezentujemy Cię jako kupującego.
Współpracujemy ze sprawdzonymi partnerami (wycena nieruchomości, doradztwo prawne i podatkowe, tłumaczenia przysięgłe, remonty).
Przy inwestycjach kapitałowych oferujemy również zarządzanie nieruchomością.
Osobiste wsparcie – transparentne i kompetentne.
Cechy nieruchomości
- Gas
- Garage
Te nieruchomości mogą Cię również zainteresować
O nas
Witamy u Twojego partnera na rynku nieruchomości w Szczecinie i na Pomorzu Zachodnim!
Jesteśmy zaangażowanym biurem nieruchomości z wieloletnim doświadczeniem na lokalnym rynku. W naszej ofercie znajdziesz szeroki wybór nieruchomości w Szczecinie oraz atrakcyjne obiekty nad polskim Bałtykiem – do zamieszkania, jako inwestycję kapitałową lub na cele wypoczynkowe.
Mówimy po polsku i po niemiecku, profesjonalnie przeprowadzimy Cię przez cały proces kupna lub sprzedaży. Mieszkanie, dom, działka czy nieruchomość wakacyjna – na pewno znajdziemy odpowiedni adres dla Ciebie!
Zapraszamy na filiżankę kawy do naszego biura lub po prostu skontaktuj się z nami. Czekamy na Ciebie!
Współpraca z nami
Jesteśmy biurem nieruchomości współpracującym z agencjami nieruchomości w województwie zachodniopomorskim. Reprezentujemy wyłącznie jedną stronę transakcji – klienta z Niemiec lub krajów DACH. W jego imieniu negocjujemy cenę, weryfikujemy ofertę i zajmujemy się wszelkimi formalnościami.
Wspieramy naszych klientów również po zakupie i pozostajemy z nimi w kontakcie. Na życzenie pomagamy przy remoncie lub kompleksowej renowacji nieruchomości. Oferujemy również zarządzanie wynajmowanymi nieruchomościami – w Szczecinie i najbliższych okolicach.
Przywiązujemy dużą wagę do jasnych zasad i uczciwości. Nasze prowizje odpowiadają stawkom obowiązującym w Polsce: 3,69% ceny zakupu dla mieszkań i domów oraz 6,15% dla działek. Prowizja jest wymagalna i płatna u notariusza przy podpisaniu umowy.
Współpracujemy z renomowaną, niemieckojęzyczną kancelarią notarialną w Szczecinie.
Korzyści podatkowe
Przy zakupie nieruchomości z rynku wtórnego podatek od czynności cywilnoprawnych wynosi jedynie 2%, a przy rynku pierwotnym nie ma podatku PCC. Dodatkowo podatek od nieruchomości w Polsce jest naliczany od powierzchni i jest bardzo niski.