Kościno: Großzügiges Einfamilienhaus mit Garten in naturnaher, ruhiger Wohnlage
582,000 €
Opis
Komfortables Einfamilienhaus in ruhiger Lage mit gepflegtem Garten
Willkommen in Ihrem zukünftigen Zuhause – einem freistehenden Einfamilienhaus in exzellenter Lage inmitten einer ruhigen Wohnsiedlung, nur einen Steinwurf vom Wald und Naturschutzgebiet entfernt. Dieses Haus bietet nicht nur durchdachte Raumaufteilung, sondern auch modernen Komfort und ein behagliches Wohnambiente – ideal für alle, die die Nähe zur Natur und gleichzeitig eine gute Anbindung zur Stadt schätzen.
Grundstück
Das ca. 1.205 m² große Grundstück ist vollständig umzäunt und liebevoll angelegt. Ein wunderschön gepflegter Garten, eine idyllische Gartenlaube und üppige Begrünung schaffen eine entspannte Atmosphäre. Die Zufahrt erfolgt über eine befestigte Straße. Im Garten – ca. 800 m² – wurden vorhandene Bäume elegant in die Gartenplanung integriert und regelmäßig gepflegt.
Haus
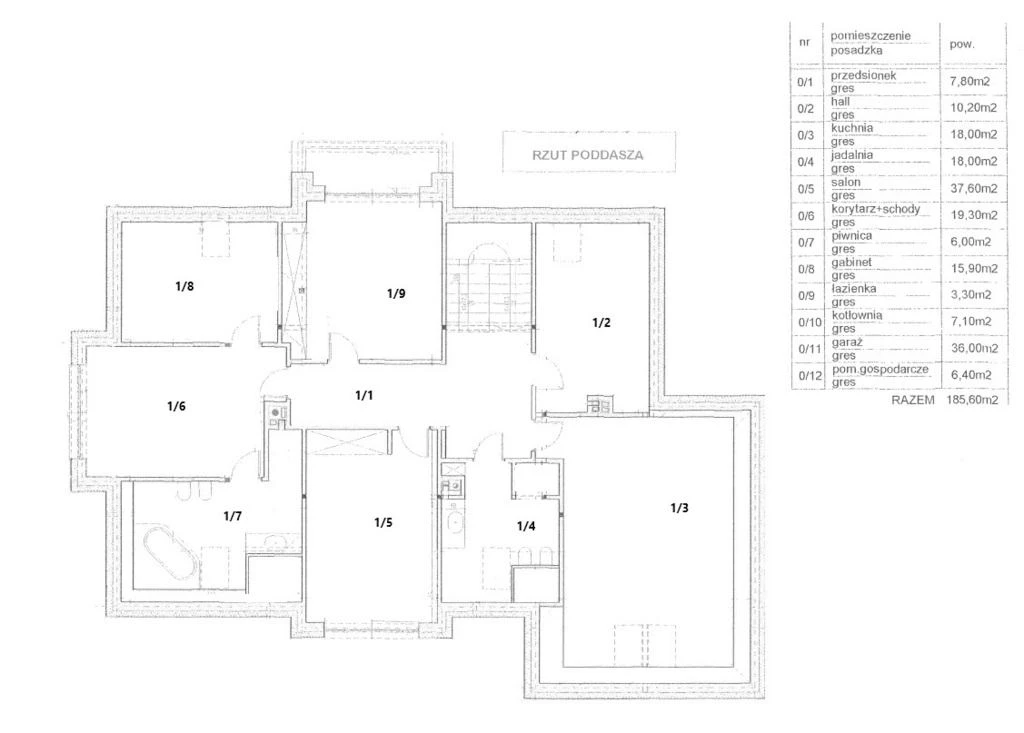
Das 2013 erbaute Haus besticht durch seine moderne Architektur und qualitativ hochwertige Bauweise in traditioneller Massivbauweise. Die Gesamtfläche beträgt 391,90 m², die Nutzfläche ca. 255,70 m². Das Erdgeschoss und das ausgebaute Dachgeschoss bieten großzügigen Raum und viel Tageslicht durch große Fenster.
Im Erdgeschoss erwarten Sie:
- ein komfortabler, gefliester Eingangsbereich mit Einbauschränken,
- eine geräumige Küche (18 m²) mit hochwertigen Einbaumöbeln und Marken-Elektrogeräten (Geschirrspüler, Backofen, Kochfeld, Dunstabzug, Kühl-Gefrierkombination),
- ein gemütliches Esszimmer (18 m²),
- ein einladendes Wohnzimmer mit Kamin (37,60 m²) und direktem Zugang zur Gartenterrasse,
- ein zusätzliches Zimmer (ca. 16 m²) als Arbeitszimmer oder Gästezimmer nutzbar,
- Badezimmer, Technikraum, ein geräumiger Doppelgarage (36 m²) sowie ein praktischer Abstellraum unter der Treppe.
Das Obergeschoss mit einer Nutzfläche von 185,60 m² bietet:
- vier helle Schlafzimmer (13,50 m²; 20,80 m²; 20,10 m²; 18,70 m²),
– eines davon mit eigenem Bad und Ankleidezimmer (6 m²),
– ein weiteres mit Balkonzugang und Blick auf den sonnigen Garten (Westseite), - ein zweites Badezimmer mit Dusche, WC und Bidet,
- eine praktische Waschküche (7 m²) sowie einen geräumigen Flur.
Technische Ausstattung und Komfort
- Dach mit hochwertiger Keramik-Dachdeckung und 30 cm Mineralwolle-Isolierung,
- gedämmte Außenwände,
- moderne PVC-Fenster mit Außenrollläden, Insektenschutz und Natursteinfensterbänken,
- Velux-Dachfenster aus Holz im Obergeschoss,
- Fußbodenheizung im ganzen Haus über modernen Gas-Zweikreisbrenner,
- elektrische und gasbetriebene Hausanschlüsse,
- zentrale Staubsaugeranlage,
- Alarmanlage mit Videoüberwachung und Bewegungsmeldern,
- zahlreiche Lichtanschlüsse, TV- und Internetanschlüsse vorhanden.
Das elektrische Garagentor sowie das Einfahrtstor sind ferngesteuert. Zusätzliche Stellplätze befinden sich auf dem Grundstück vor der Garage.
Lage
Die Immobilie befindet sich in einem modernen Wohnviertel mit hochwertigen Einfamilienhäusern in Hanglage – ruhig, grün und familienfreundlich. Die Nähe zum Wald und Naturschutzgebiet lädt zu Aktivitäten im Freien ein, während die Anbindung an das Stadtzentrum Ihnen unkomplizierten Zugang zu urbanen Annehmlichkeiten ermöglicht.
Ein Ort zum Wohlfühlen
Dieses Haus ist perfekt für alle, die komfortables, stilvolles Wohnen in Verbindung mit naturnaher Lebensweise suchen. Hier finden Sie nicht nur Raum zum Leben, sondern auch Ruhe, Freiheit und ein Zuhause, das zum Bleiben einlädt.
Überzeugen Sie sich selbst – ein seltenes Angebot mit viel Wohnwert!
Szczegóły
Art der Immobilie: Einfamilienhaus
Lage des Grundstücks: Hanglage
Gesamtfläche: 391,90 m²
Grundstücksfläche: 1.205,00 m²
Grundstücksform: Rechteckig
Nutzfläche: 255,70 m²
Haustyp: Freistehend
Baujahr: 2013
Standard: Sehr gut
Zustand des Gebäudes: Sehr gut
Baumaterial: Hohlblockstein
Küchentyp: Separat
Anzahl der Badezimmer: 2
Anzahl der WCs: 1
Anzahl der Etagen (inkl. Erdgeschoss): 1
Warmwasserquelle: Gas-Zweikreislauf
Heizung: Lokales Fernwärmenetz
Stromanschluss: Ja
Gasanschluss: Ja
Abwasser: Öffentliches Kanalsystem
Wasserversorgung: Öffentlich
Alarmanlage: Ja
Videoüberwachung: Ja
Türsprechanlage: Ja
Fensterart: Kunststofffenster
Dacheindeckung: Keramikdachziegel
Umzäunung: Sonstige
Garage: Ja
Anzahl der Garagenstellplätze: 2
Uwaga
- Pierwsze zdjęcie w naszej galerii zostało lekko zmodyfikowane, aby pokazać, jak nieruchomość mogłaby wyglądać – na przykład po zmianie koloru ścian. Kolejne zdjęcia przedstawiają rzeczywisty stan nieruchomości.
- Cena podana w euro odpowiada cenie w złotych, jednak ze względu na wahania kursów walut jest zawsze wartością przybliżoną. W naszych ogłoszeniach zawsze podajemy również cenę w złotych, zgodnie z życzeniem sprzedającego.
Informacje o polskich praktykach rynku nieruchomości:
- Ograniczone informacje o lokalizacji: W Polsce przyjęło się, że ogłoszenia nieruchomości nie ujawniają dokładnego adresu nieruchomości.
- Rzuty: Szczegółowe plany pięter nie zawsze są dostępne w ofertach.
Jako biuro nieruchomości zapewniamy kompleksową obsługę. Reprezentujemy Cię jako kupującego.
Współpracujemy ze sprawdzonymi partnerami (wycena nieruchomości, doradztwo prawne i podatkowe, tłumaczenia przysięgłe, remonty).
Przy inwestycjach kapitałowych oferujemy również zarządzanie nieruchomością.
Osobiste wsparcie – transparentne i kompetentne.
Cechy nieruchomości
- nahe der Grenze
- Gas
- Garage
- Keller
- Garten
- Balkon
Te nieruchomości mogą Cię również zainteresować
O nas
Witamy u Twojego partnera na rynku nieruchomości w Szczecinie i na Pomorzu Zachodnim!
Jesteśmy zaangażowanym biurem nieruchomości z wieloletnim doświadczeniem na lokalnym rynku. W naszej ofercie znajdziesz szeroki wybór nieruchomości w Szczecinie oraz atrakcyjne obiekty nad polskim Bałtykiem – do zamieszkania, jako inwestycję kapitałową lub na cele wypoczynkowe.
Mówimy po polsku i po niemiecku, profesjonalnie przeprowadzimy Cię przez cały proces kupna lub sprzedaży. Mieszkanie, dom, działka czy nieruchomość wakacyjna – na pewno znajdziemy odpowiedni adres dla Ciebie!
Zapraszamy na filiżankę kawy do naszego biura lub po prostu skontaktuj się z nami. Czekamy na Ciebie!
Współpraca z nami
Jesteśmy biurem nieruchomości współpracującym z agencjami nieruchomości w województwie zachodniopomorskim. Reprezentujemy wyłącznie jedną stronę transakcji – klienta z Niemiec lub krajów DACH. W jego imieniu negocjujemy cenę, weryfikujemy ofertę i zajmujemy się wszelkimi formalnościami.
Wspieramy naszych klientów również po zakupie i pozostajemy z nimi w kontakcie. Na życzenie pomagamy przy remoncie lub kompleksowej renowacji nieruchomości. Oferujemy również zarządzanie wynajmowanymi nieruchomościami – w Szczecinie i najbliższych okolicach.
Przywiązujemy dużą wagę do jasnych zasad i uczciwości. Nasze prowizje odpowiadają stawkom obowiązującym w Polsce: 3,69% ceny zakupu dla mieszkań i domów oraz 6,15% dla działek. Prowizja jest wymagalna i płatna u notariusza przy podpisaniu umowy.
Współpracujemy z renomowaną, niemieckojęzyczną kancelarią notarialną w Szczecinie.
Korzyści podatkowe
Przy zakupie nieruchomości z rynku wtórnego podatek od czynności cywilnoprawnych wynosi jedynie 2%, a przy rynku pierwotnym nie ma podatku PCC. Dodatkowo podatek od nieruchomości w Polsce jest naliczany od powierzchni i jest bardzo niski.