Modernes Einfamilienhaus im Rohbau auf großem Naturgrundstück in Daber entdecken
472,000 €
Opis
Modernes Einfamilienhaus in naturnaher Lage – Individuelle Gestaltung möglich!
Willkommen in Dobra! Hier erwartet Sie ein außergewöhnliches Einfamilienhaus, das mit hoher Bauqualität und beeindruckenden Ausstattungsmerkmalen überzeugt. Ideal für alle, die ihr zukünftiges Zuhause nach eigenen Vorstellungen vollenden möchten.
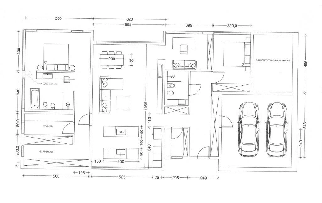
Objektdaten im Überblick
- Wohnfläche: ca. 238 m²
- Grundstück: ca. 1.626 m²
- Baujahr: 2022
- Zustand: Rohbau (geschlossen)
- Bauweise: Silikatsteine
- Fenster: Aluminiumfenster der Marke Reynaers Aluminium MasterLine 8Hl+
- Garage: Doppelgarage ca. 33,3 m²
- Energieversorgung: eigener Stromanschluss, Brunnenwasser, kein Gasanschluss
Raumaufteilung – Großzügig und durchdacht
Das Haus erstreckt sich über ca. 238 m² und bietet Ihnen viel Platz für ein komfortables Wohnen:
- Eingangsbereich (Windfang): 5,98 m²
- Speisekammer: 4,92 m²
- Flur: 14,47 m²
- Helles Wohnzimmer: 41,96 m²
- Geräumige Küche: 20,89 m²
- Zimmer/Büro: 12,37 m²
- Schlafzimmer: 18,90 m²
- Badezimmer I: 13,08 m²
- Hauswirtschaftsraum: 6,82 m²
- Ankleidezimmer: 13,13 m²
- Weiterer Flur: 10,00 m²
- Badezimmer II: 6,05 m²
- Weiteres Zimmer: 15,87 m²
- Abstellraum: 8,74 m²
- Technikraum: 7,28 m²
- Garage für zwei PKW: 33,30 m²
Moderne Bauweise & Energieeffizienz
Das Dach wurde mit skandinavischem Holz konstruiert und mit einem hochwertigen, integrierten Solardachsystem aus dem Hause SunRoof inklusive Doerken-Membran ausgestattet. Ein moderner Energiespeicher sowie zwei Inverter mit entsprechenden Schutzsystemen sind bereits installiert.
Die 2,80 m hohen Aluminiumfenster und -türen sorgen für lichtdurchflutete Räume und vermitteln ein Gefühl von Großzügigkeit. Ein komfortables Detail: Das Haus ist mit elektrischen Außenjalousien ausgestattet, die bereits integriert sind.
Außenbereich
Das rechteckige Grundstück bietet viel Freiraum für Gartenliebhaber und ist bereits mit einem Zaun umzäunt. Die Lage verspricht Ruhe und Nähe zur Natur – ideal für Familien oder alle, die dem Stadttrubel entkommen möchten.
Fazit
Ein energieeffizienter Rohbau der Extraklasse mit hochwertiger Grundausstattung wartet auf seine Vollendung. Verwirklichen Sie hier Ihr individuelles Wohnkonzept auf einem großzügigen Grundstück – ruhig gelegen und zukunftssicher gebaut.
Seriöse Bauweise, moderne Technologien und ein interessanter Grundriss machen dieses Objekt zu einer idealen Investition in Ihr zukünftiges Zuhause.
Vereinbaren Sie noch heute einen Besichtigungstermin – wir freuen uns auf Ihren Besuch!
Szczegóły
Immobilienart: Haus
Gesamtfläche: 237,76 m²
Grundstücksfläche: 1.626,00 m²
Wohnfläche: 237,76 m²
Haustyp: Freistehend
Baujahr: 2022
Standard: Geschlossener Rohbau
Gebäudestatus: Geschlossener Rohbau
Wandmaterial: Kalksandstein
Anzahl der Badezimmer: 2
Stromanschluss: Ja
Fenstertyp: Aluminium
Garage: Ja
Anzahl der Garagenstellplätze: 2
Uwaga
- Pierwsze zdjęcie w naszej galerii zostało lekko zmodyfikowane, aby pokazać, jak nieruchomość mogłaby wyglądać – na przykład po zmianie koloru ścian. Kolejne zdjęcia przedstawiają rzeczywisty stan nieruchomości.
- Cena podana w euro odpowiada cenie w złotych, jednak ze względu na wahania kursów walut jest zawsze wartością przybliżoną. W naszych ogłoszeniach zawsze podajemy również cenę w złotych, zgodnie z życzeniem sprzedającego.
Informacje o polskich praktykach rynku nieruchomości:
- Ograniczone informacje o lokalizacji: W Polsce przyjęło się, że ogłoszenia nieruchomości nie ujawniają dokładnego adresu nieruchomości.
- Rzuty: Szczegółowe plany pięter nie zawsze są dostępne w ofertach.
Jako biuro nieruchomości zapewniamy kompleksową obsługę. Reprezentujemy Cię jako kupującego.
Współpracujemy ze sprawdzonymi partnerami (wycena nieruchomości, doradztwo prawne i podatkowe, tłumaczenia przysięgłe, remonty).
Przy inwestycjach kapitałowych oferujemy również zarządzanie nieruchomością.
Osobiste wsparcie – transparentne i kompetentne.
Cechy nieruchomości
- Garage
- Garten
- nahe der Grenze
Te nieruchomości mogą Cię również zainteresować
O nas
Witamy u Twojego partnera na rynku nieruchomości w Szczecinie i na Pomorzu Zachodnim!
Jesteśmy zaangażowanym biurem nieruchomości z wieloletnim doświadczeniem na lokalnym rynku. W naszej ofercie znajdziesz szeroki wybór nieruchomości w Szczecinie oraz atrakcyjne obiekty nad polskim Bałtykiem – do zamieszkania, jako inwestycję kapitałową lub na cele wypoczynkowe.
Mówimy po polsku i po niemiecku, profesjonalnie przeprowadzimy Cię przez cały proces kupna lub sprzedaży. Mieszkanie, dom, działka czy nieruchomość wakacyjna – na pewno znajdziemy odpowiedni adres dla Ciebie!
Zapraszamy na filiżankę kawy do naszego biura lub po prostu skontaktuj się z nami. Czekamy na Ciebie!
Współpraca z nami
Jesteśmy biurem nieruchomości współpracującym z agencjami nieruchomości w województwie zachodniopomorskim. Reprezentujemy wyłącznie jedną stronę transakcji – klienta z Niemiec lub krajów DACH. W jego imieniu negocjujemy cenę, weryfikujemy ofertę i zajmujemy się wszelkimi formalnościami.
Wspieramy naszych klientów również po zakupie i pozostajemy z nimi w kontakcie. Na życzenie pomagamy przy remoncie lub kompleksowej renowacji nieruchomości. Oferujemy również zarządzanie wynajmowanymi nieruchomościami – w Szczecinie i najbliższych okolicach.
Przywiązujemy dużą wagę do jasnych zasad i uczciwości. Nasze prowizje odpowiadają stawkom obowiązującym w Polsce: 3,69% ceny zakupu dla mieszkań i domów oraz 6,15% dla działek. Prowizja jest wymagalna i płatna u notariusza przy podpisaniu umowy.
Współpracujemy z renomowaną, niemieckojęzyczną kancelarią notarialną w Szczecinie.
Korzyści podatkowe
Przy zakupie nieruchomości z rynku wtórnego podatek od czynności cywilnoprawnych wynosi jedynie 2%, a przy rynku pierwotnym nie ma podatku PCC. Dodatkowo podatek od nieruchomości w Polsce jest naliczany od powierzchni i jest bardzo niski.