Stettin Gumieńce: Modernes Endreihenhaus mit Garten und Garage in ruhiger Lage
401,000 €
Opis
Neubau in Gumieńce – Endreihenhaus in attraktiver Lage
Entdecken Sie eine moderne Wohnanlage in einem ruhigen und begehrten Teil von Gumieńce, umgeben von Einfamilienhäusern niedriger Bebauung. Zum Verkauf steht ein großzügiges Endreihenhaus mit viel Platz für die ganze Familie.
Eckdaten der Immobilie:
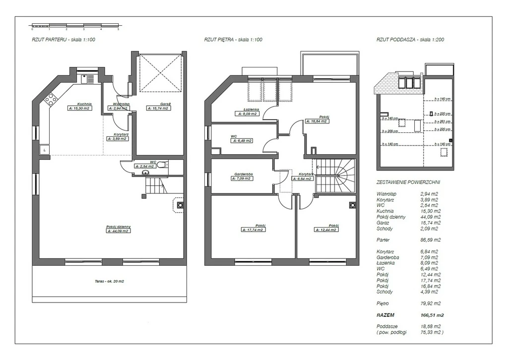
- Wohnfläche: 166,51 m²
- Zusätzlich ausgebautes Dachgeschoss: 18,58 m² Nutzfläche (75,33 m² Bodenfläche)
- Grundstücksfläche: 402 m²
Das Haus wurde in massiver Ziegelbauweise (Porotherm) errichtet, mit 15 cm Wärmedämmung isoliert und verfügt über doppelte Trennwände zu den Nachbarhäusern. Das Satteldach ist mit Betondachziegeln gedeckt. Große Aluminiumfenster sorgen für viel Licht, besonders im Wohnzimmer, das mit elektrischen Außenjalousien und einer Schiebetür zum Garten ausgestattet ist.
Raumaufteilung:
Erdgeschoss – 86,59 m²:
Raumhöhe: 2,90 m
- Windfang
- Flur
- Gäste-WC
- Küche
- Geräumiges Wohnzimmer mit Zugang zum Garten
- Integrierte Garage (15,74 m²)
Obergeschoss – 79,92 m²:
Raumhöhe: 2,70 m
- Flur
- Ankleidezimmer
- Badezimmer
- Zusätzliches WC
- Drei Schlafzimmer
Dachgeschoss:
- Nutzfläche: 18,58 m²
- Bodenfläche: 75,33 m²
Ideal als Hobbyraum, Spielbereich oder zusätzlicher Stauraum.
Ausstattung & Technik:
- Fußbodenheizung in allen Geschossen
- Zweifunktionaler Heizkessel mit Warmwasserspeicher
- Alarmsystem mit Zentraleinheit und Sensoren
- Videoüberwachung
- TV- und Internetanschlüsse
- Vorbereitung für zentrales Staubsaugersystem
Außenbereich:
- Vollständig eingefriedetes Grundstück
- Angelegter Garten
- Private Auffahrt mit Stellplatz vor der Garage
Detaillierte Grundrisse mit Raummaßen stehen zur Verfügung und ermöglichen eine präzise Planung Ihrer neuen Wohnwelt.
Dieses Haus bietet modernen Komfort, hochwertige Ausstattung und eine ruhige Lage mit guter Anbindung – perfekt geeignet für Familien, die städtische Nähe und ein grünes Umfeld schätzen.
Kontaktieren Sie uns für weitere Informationen oder um einen Besichtigungstermin zu vereinbaren – wir freuen uns, Ihnen dieses besondere Zuhause persönlich zeigen zu dürfen.
Szczegóły
Immobilienart: Einfamilienhaus (Reihenendhaus)
Ortsteil: Gumieńce
Baujahr: 2023
Wohnfläche: 166,51 m²
Grundstücksfläche: 402,00 m²
Nutzfläche: 166,51 m²
Zustand: Neubau (im Entwicklerstandard)
Bauweise: Ziegel (Keramikziegel)
Dachdeckung: Betondachziegel
Etagenanzahl (inkl. EG): 1
Kaufpreis: ~1.600.000 PLN~
Ausstattung & Besonderheiten
- Reihenendhaus in ruhiger Wohnlage von Gumieńce
- Moderne Architektur und großzügige Raumaufteilung
- Helle, offene Küche mit einer Fläche von 15,3 m²
- 1 Badezimmer + 2 separate WCs
- Geräumige Garderobe
- Balkon und sonniger Terrassenbereich
- Privater Garten – ideal für Familien und Hobbygärtner
- Garage im Haus integriert
Technische Merkmale
- Anschlüsse für Strom und Gas vorhanden
- Bau im Entwicklungsstandard – Möglichkeit zur individuellen Gestaltung
- Hochwertige Bauweise mit Ziegelmauerwerk
- Betondachziegel – langlebig und witterungsbeständig
Lagebeschreibung
Gumieńce ist ein beliebter Stadtteil mit guter Infrastruktur und angenehmer Nachbarschaft. Die Immobilie liegt in einer ruhigen Wohnstraße mit schneller Anbindung an das Stadtzentrum von Stettin. In unmittelbarer Nähe befinden sich Schulen, Einkaufsmöglichkeiten, Grünanlagen und Verkehrsanbindungen (ÖPNV).
Diese Immobilie bietet eine ideale Kombination aus moderner Ausstattung, großzügigem Raumangebot und ruhiger Lage - perfekt für Familien, Paare oder als Investition.
Zögern Sie nicht, uns für weitere Informationen oder zur Vereinbarung eines Besichtigungstermins zu kontaktieren!
Uwaga
- Pierwsze zdjęcie w naszej galerii zostało lekko zmodyfikowane, aby pokazać, jak nieruchomość mogłaby wyglądać – na przykład po zmianie koloru ścian. Kolejne zdjęcia przedstawiają rzeczywisty stan nieruchomości.
- Cena podana w euro odpowiada cenie w złotych, jednak ze względu na wahania kursów walut jest zawsze wartością przybliżoną. W naszych ogłoszeniach zawsze podajemy również cenę w złotych, zgodnie z życzeniem sprzedającego.
Informacje o polskich praktykach rynku nieruchomości:
- Ograniczone informacje o lokalizacji: W Polsce przyjęło się, że ogłoszenia nieruchomości nie ujawniają dokładnego adresu nieruchomości.
- Rzuty: Szczegółowe plany pięter nie zawsze są dostępne w ofertach.
Jako biuro nieruchomości zapewniamy kompleksową obsługę. Reprezentujemy Cię jako kupującego.
Współpracujemy ze sprawdzonymi partnerami (wycena nieruchomości, doradztwo prawne i podatkowe, tłumaczenia przysięgłe, remonty).
Przy inwestycjach kapitałowych oferujemy również zarządzanie nieruchomością.
Osobiste wsparcie – transparentne i kompetentne.
Cechy nieruchomości
- Gas
- Garage
- Garten
- Garderobe
- Terrasse
Te nieruchomości mogą Cię również zainteresować
O nas
Witamy u Twojego partnera na rynku nieruchomości w Szczecinie i na Pomorzu Zachodnim!
Jesteśmy zaangażowanym biurem nieruchomości z wieloletnim doświadczeniem na lokalnym rynku. W naszej ofercie znajdziesz szeroki wybór nieruchomości w Szczecinie oraz atrakcyjne obiekty nad polskim Bałtykiem – do zamieszkania, jako inwestycję kapitałową lub na cele wypoczynkowe.
Mówimy po polsku i po niemiecku, profesjonalnie przeprowadzimy Cię przez cały proces kupna lub sprzedaży. Mieszkanie, dom, działka czy nieruchomość wakacyjna – na pewno znajdziemy odpowiedni adres dla Ciebie!
Zapraszamy na filiżankę kawy do naszego biura lub po prostu skontaktuj się z nami. Czekamy na Ciebie!
Współpraca z nami
Jesteśmy biurem nieruchomości współpracującym z agencjami nieruchomości w województwie zachodniopomorskim. Reprezentujemy wyłącznie jedną stronę transakcji – klienta z Niemiec lub krajów DACH. W jego imieniu negocjujemy cenę, weryfikujemy ofertę i zajmujemy się wszelkimi formalnościami.
Wspieramy naszych klientów również po zakupie i pozostajemy z nimi w kontakcie. Na życzenie pomagamy przy remoncie lub kompleksowej renowacji nieruchomości. Oferujemy również zarządzanie wynajmowanymi nieruchomościami – w Szczecinie i najbliższych okolicach.
Przywiązujemy dużą wagę do jasnych zasad i uczciwości. Nasze prowizje odpowiadają stawkom obowiązującym w Polsce: 3,69% ceny zakupu dla mieszkań i domów oraz 6,15% dla działek. Prowizja jest wymagalna i płatna u notariusza przy podpisaniu umowy.
Współpracujemy z renomowaną, niemieckojęzyczną kancelarią notarialną w Szczecinie.
Korzyści podatkowe
Przy zakupie nieruchomości z rynku wtórnego podatek od czynności cywilnoprawnych wynosi jedynie 2%, a przy rynku pierwotnym nie ma podatku PCC. Dodatkowo podatek od nieruchomości w Polsce jest naliczany od powierzchni i jest bardzo niski.