Neuendorf: Modernes Apartmenthaus mit 4 Einheiten nahe Ostsee & See als Kapitalanlage
472,000 €
Opis
Investieren und ganzjährig verdienen – Attraktives Apartmenthaus an der Ostsee
In der charmanten Ortschaft Wisełka, nur wenige Gehminuten vom feinsandigen Ostseestrand entfernt, erwartet Sie diese einzigartige Immobilie – ein moderner Neubau aus dem Jahr 2020 mit vier komplett ausgestatteten Apartments. Ideal als Kapitalanlage, um sofort mit der Vermietung zu starten!
Objektbeschreibung
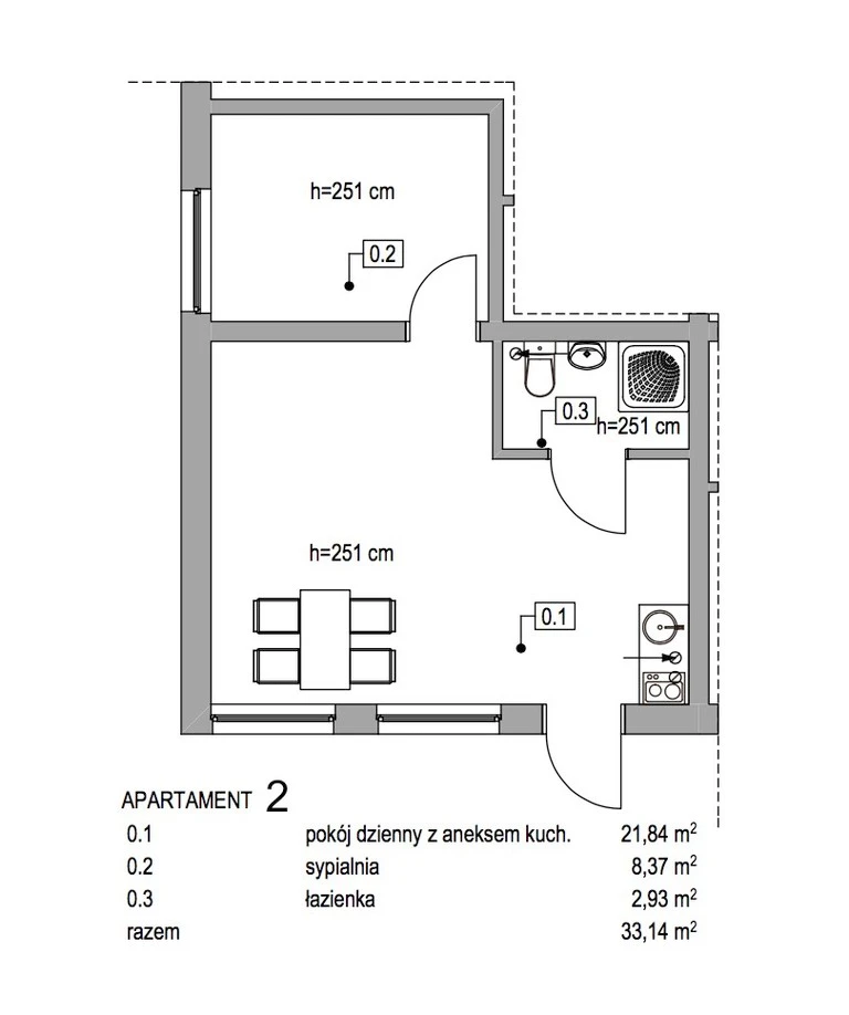
Das gepflegte Haus mit einer Gesamtwohnfläche von ca. 122 m² befindet sich auf einem ca. 568 m² großen Grundstück in ruhiger Lage nahe Natur und Meer. Die vier komfortablen Apartments sind aufgeteilt auf folgende Flächen:
- 2 x ca. 33,14 m²
- 1 x ca. 28,93 m²
- 1 x ca. 26,92 m²
Jedes Apartment bietet:
- Zwei vollständig eingerichtete Zimmer
- Elektrische Fußbodenheizung für angenehmen Wohnkomfort
- Modernen Wohnbereich mit Sofa, Couchtisch, Esstisch mit vier Stühlen, Smart-TV
- Separates Schlafzimmer mit Doppelbett und geräumigem Spiegelschrank
- Offene, ausgestattete Küche mit Einbauschränken, 2-Platten-Kochfeld und 60 cm Kühlschrank
- Bad mit elektrischer Warmwasserbereitung, steuerbar per WLAN (Ariston-System)
- Terrasse oder Gartenzugang
Vier PKW-Stellplätze befinden sich direkt auf dem Grundstück – ein zusätzlicher Pluspunkt für Feriengäste oder Familien.
Highlights für Investoren
- Sofort bezugs- und vermietbar – keine Renovierung erforderlich
- Beste Lage für Urlaubsgäste – nur ca. 500 m zum Wisełka-See, ca. 15 Gehminuten durch den Nationalpark Woliński bis zum Ostseestrand
- Gepflegte Außenanlage mit Gartenmöbeln
- Gute Anbindung: Golfplatz in Kołczewo und Gastronomie-Angebote in der Nähe
Ausstattung
- Baujahr: 2020
- Zustand: sehr gut / neuwertig
- Bauweise: Betonblocksteine
- Dach: Dachziegel
- Heizung: elektrische Fußbodenheizung
- Warmwasser: Elektroboiler mit Fernsteuerung (Wi-Fi)
- Küche: Einbauküche mit offenem Konzept
- Garage/Stellplätze: 4 Außenstellplätze auf dem Grundstück
Dieses Objekt verbindet Komfort, Top-Lage und ein attraktives Investitionsmodell – sowohl für die Ferienvermietung als auch eventuell für den eigenen Rückzugsort am Meer. Nutzen Sie die begehrte touristische Lage an der polnischen Ostseeküste!
Jetzt ist der richtige Zeitpunkt, in eine Immobilie zu investieren, die das ganze Jahr über Erträge generieren kann. Starten Sie Ihre Investition in einer der schönsten Regionen Polens!
Szczegóły
Immobilienart: Haus
Gesamtnutzfläche: 122,13 m²
Grundstücksfläche: 568,00 m²
Wohnfläche: 122,13 m²
Haustyp: Sonstiges
Baujahr: 2020
Standard: Sehr gut
Zustand des Gebäudes: Sehr gut
Wandmaterial: Betonblöcke
Küchentyp: Küchenzeile
Dacheindeckung: Dachziegel
Garage: Ja
Uwaga
- Pierwsze zdjęcie w naszej galerii zostało lekko zmodyfikowane, aby pokazać, jak nieruchomość mogłaby wyglądać – na przykład po zmianie koloru ścian. Kolejne zdjęcia przedstawiają rzeczywisty stan nieruchomości.
- Cena podana w euro odpowiada cenie w złotych, jednak ze względu na wahania kursów walut jest zawsze wartością przybliżoną. W naszych ogłoszeniach zawsze podajemy również cenę w złotych, zgodnie z życzeniem sprzedającego.
Informacje o polskich praktykach rynku nieruchomości:
- Ograniczone informacje o lokalizacji: W Polsce przyjęło się, że ogłoszenia nieruchomości nie ujawniają dokładnego adresu nieruchomości.
- Rzuty: Szczegółowe plany pięter nie zawsze są dostępne w ofertach.
Jako biuro nieruchomości zapewniamy kompleksową obsługę. Reprezentujemy Cię jako kupującego.
Współpracujemy ze sprawdzonymi partnerami (wycena nieruchomości, doradztwo prawne i podatkowe, tłumaczenia przysięgłe, remonty).
Przy inwestycjach kapitałowych oferujemy również zarządzanie nieruchomością.
Osobiste wsparcie – transparentne i kompetentne.
Cechy nieruchomości
- an der Ostsee
- Garage
- Garten
Te nieruchomości mogą Cię również zainteresować
O nas
Witamy u Twojego partnera na rynku nieruchomości w Szczecinie i na Pomorzu Zachodnim!
Jesteśmy zaangażowanym biurem nieruchomości z wieloletnim doświadczeniem na lokalnym rynku. W naszej ofercie znajdziesz szeroki wybór nieruchomości w Szczecinie oraz atrakcyjne obiekty nad polskim Bałtykiem – do zamieszkania, jako inwestycję kapitałową lub na cele wypoczynkowe.
Mówimy po polsku i po niemiecku, profesjonalnie przeprowadzimy Cię przez cały proces kupna lub sprzedaży. Mieszkanie, dom, działka czy nieruchomość wakacyjna – na pewno znajdziemy odpowiedni adres dla Ciebie!
Zapraszamy na filiżankę kawy do naszego biura lub po prostu skontaktuj się z nami. Czekamy na Ciebie!
Współpraca z nami
Jesteśmy biurem nieruchomości współpracującym z agencjami nieruchomości w województwie zachodniopomorskim. Reprezentujemy wyłącznie jedną stronę transakcji – klienta z Niemiec lub krajów DACH. W jego imieniu negocjujemy cenę, weryfikujemy ofertę i zajmujemy się wszelkimi formalnościami.
Wspieramy naszych klientów również po zakupie i pozostajemy z nimi w kontakcie. Na życzenie pomagamy przy remoncie lub kompleksowej renowacji nieruchomości. Oferujemy również zarządzanie wynajmowanymi nieruchomościami – w Szczecinie i najbliższych okolicach.
Przywiązujemy dużą wagę do jasnych zasad i uczciwości. Nasze prowizje odpowiadają stawkom obowiązującym w Polsce: 3,69% ceny zakupu dla mieszkań i domów oraz 6,15% dla działek. Prowizja jest wymagalna i płatna u notariusza przy podpisaniu umowy.
Współpracujemy z renomowaną, niemieckojęzyczną kancelarią notarialną w Szczecinie.
Korzyści podatkowe
Przy zakupie nieruchomości z rynku wtórnego podatek od czynności cywilnoprawnych wynosi jedynie 2%, a przy rynku pierwotnym nie ma podatku PCC. Dodatkowo podatek od nieruchomości w Polsce jest naliczany od powierzchni i jest bardzo niski.