Moderne Doppelhaushälften mit Garten in ruhiger Neubausiedlung in Möhringen
232,000 €
Opis
Moderne Doppelhaushälften in attraktiver Neubausiedlung
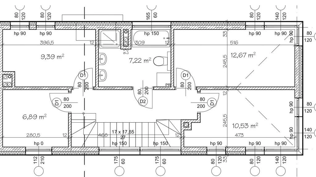
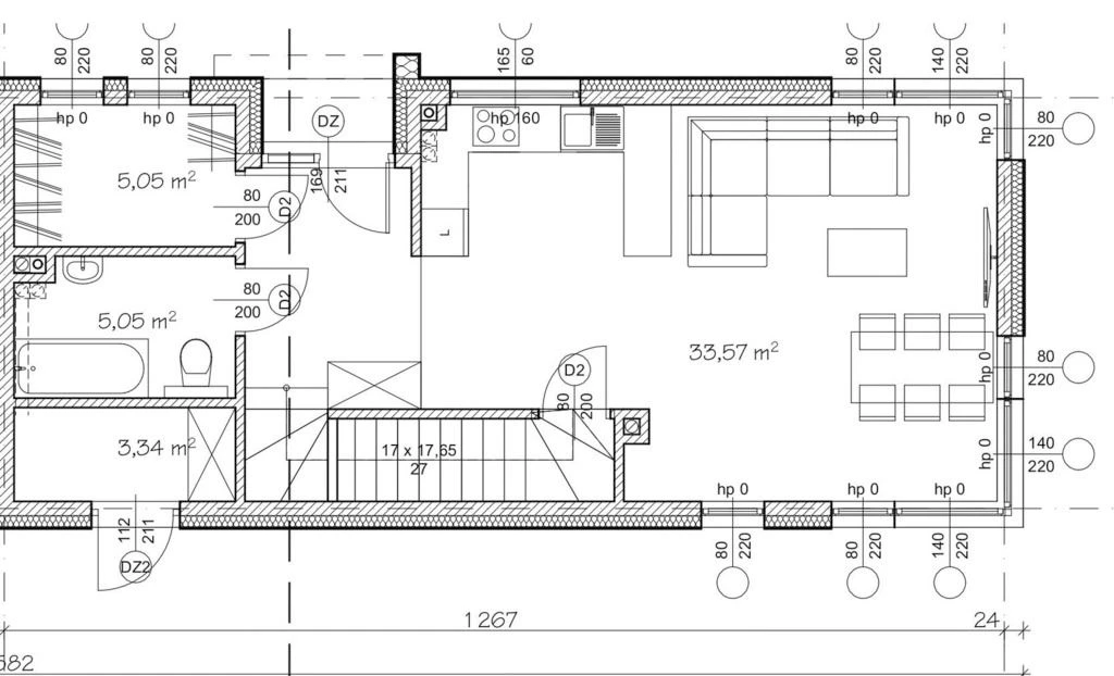
In einer neu entstehenden Wohnsiedlung bieten wir Ihnen moderne Einfamilienhäuser in Doppelhausbauweise mit einer Wohnfläche von jeweils ca. 110 m² an. Insgesamt umfasst das Projekt 12 Wohneinheiten, die auf Grundstücken von ca. 350 m² errichtet werden.
Highlights der Immobilie:
- Wohnfläche: ca. 110 m²
- Grundstücksfläche: ca. 350 m²
- Fertigstellung: im dritten Quartal 2023 im entwicklungsbereiten Zustand (zur Übergabe bereit im vierten Quartal 2023)
- Preis ab: €220.000 (PLN 939.000)
Ausstattung & Bauweise:
- Hochwertige Silikatblock-Bauweise
- 15 cm Styropor-Wärmedämmung für energieeffizientes Wohnen
- Dreifachverglaste Kunststofffenster für optimalen Schallschutz und Wärmedämmung
- Robuste keramische Dacheindeckung
- Gas-Brennwerttherme für zentrale Heizungs- und Warmwasserversorgung
- Fußbodenheizung im gesamten Gebäude für ein angenehmes Raumklima
- 2 private Außenstellplätze pro Einheit
- Zufahrt über eine interne Pflastersteinstraße
Dieses Immobilienangebot richtet sich an all jene, die naturnah, ruhig und komfortabel wohnen möchten – ideal für Familien oder Paare, die moderne Wohnqualität in angenehmer Nachbarschaft suchen.
Für weitere Informationen über verfügbare Einheiten und Details zur Ausstattung, stehen wir Ihnen gerne zur Verfügung.
Szczegóły
Immobilienart: Doppelhaushälfte
Verfügbar ab: 09.07.2020
Alter Preis: 939.000 PLN
Wohnfläche: 110,00 m²
Grundstücksfläche: 350,00 m²
Grundstücksform: Rechteckig
Nutzfläche: 110,00 m²
Eigentumsform des Grundstücks: Eigentum
Eigentumsanteil am Grundstück: 1
Haustyp: Doppelhaushälfte
Baujahr: 2022
Standard: Rohbau (Entwicklerstandard)
Gebäudezustand: Rohbau (Entwicklerstandard)
Wandmaterial: Betonblöcke
Küchentyp: Kochnische
Anzahl Badezimmer: 2
Anzahl WC: 1
Anzahl Stockwerke (inkl. Erdgeschoss): 1
Telefonanschluss: Ja
Stromversorgung: Ja
Starkstromanschluss (400V): Ja
Gasanschluss: Ja
Internet: Ja
Kabelfernsehen: Ja
Dachdeckung: Dachziegel
Garten: Ja
Kamin: Ja
Terrasse: Ja
Anzahl Terrassen: 1
Terrassenfläche: 6 m²
Uwaga
- Pierwsze zdjęcie w naszej galerii zostało lekko zmodyfikowane, aby pokazać, jak nieruchomość mogłaby wyglądać – na przykład po zmianie koloru ścian. Kolejne zdjęcia przedstawiają rzeczywisty stan nieruchomości.
- Cena podana w euro odpowiada cenie w złotych, jednak ze względu na wahania kursów walut jest zawsze wartością przybliżoną. W naszych ogłoszeniach zawsze podajemy również cenę w złotych, zgodnie z życzeniem sprzedającego.
Informacje o polskich praktykach rynku nieruchomości:
- Ograniczone informacje o lokalizacji: W Polsce przyjęło się, że ogłoszenia nieruchomości nie ujawniają dokładnego adresu nieruchomości.
- Rzuty: Szczegółowe plany pięter nie zawsze są dostępne w ofertach.
Jako biuro nieruchomości zapewniamy kompleksową obsługę. Reprezentujemy Cię jako kupującego.
Współpracujemy ze sprawdzonymi partnerami (wycena nieruchomości, doradztwo prawne i podatkowe, tłumaczenia przysięgłe, remonty).
Przy inwestycjach kapitałowych oferujemy również zarządzanie nieruchomością.
Osobiste wsparcie – transparentne i kompetentne.
Cechy nieruchomości
- Gas
- Garten
- Kamin
- Terrasse
Te nieruchomości mogą Cię również zainteresować
O nas
Witamy u Twojego partnera na rynku nieruchomości w Szczecinie i na Pomorzu Zachodnim!
Jesteśmy zaangażowanym biurem nieruchomości z wieloletnim doświadczeniem na lokalnym rynku. W naszej ofercie znajdziesz szeroki wybór nieruchomości w Szczecinie oraz atrakcyjne obiekty nad polskim Bałtykiem – do zamieszkania, jako inwestycję kapitałową lub na cele wypoczynkowe.
Mówimy po polsku i po niemiecku, profesjonalnie przeprowadzimy Cię przez cały proces kupna lub sprzedaży. Mieszkanie, dom, działka czy nieruchomość wakacyjna – na pewno znajdziemy odpowiedni adres dla Ciebie!
Zapraszamy na filiżankę kawy do naszego biura lub po prostu skontaktuj się z nami. Czekamy na Ciebie!
Współpraca z nami
Jesteśmy biurem nieruchomości współpracującym z agencjami nieruchomości w województwie zachodniopomorskim. Reprezentujemy wyłącznie jedną stronę transakcji – klienta z Niemiec lub krajów DACH. W jego imieniu negocjujemy cenę, weryfikujemy ofertę i zajmujemy się wszelkimi formalnościami.
Wspieramy naszych klientów również po zakupie i pozostajemy z nimi w kontakcie. Na życzenie pomagamy przy remoncie lub kompleksowej renowacji nieruchomości. Oferujemy również zarządzanie wynajmowanymi nieruchomościami – w Szczecinie i najbliższych okolicach.
Przywiązujemy dużą wagę do jasnych zasad i uczciwości. Nasze prowizje odpowiadają stawkom obowiązującym w Polsce: 3,69% ceny zakupu dla mieszkań i domów oraz 6,15% dla działek. Prowizja jest wymagalna i płatna u notariusza przy podpisaniu umowy.
Współpracujemy z renomowaną, niemieckojęzyczną kancelarią notarialną w Szczecinie.
Korzyści podatkowe
Przy zakupie nieruchomości z rynku wtórnego podatek od czynności cywilnoprawnych wynosi jedynie 2%, a przy rynku pierwotnym nie ma podatku PCC. Dodatkowo podatek od nieruchomości w Polsce jest naliczany od powierzchni i jest bardzo niski.