Modernes Maisonette-Apartment mit Terrasse in ruhiger Lage von Stettin-Gumieńce
282,000 €
Opis
Stilvolles, bezugsfertiges Maisonette-Apartment in ruhiger Lage von Gumieńce
Willkommen in einem modernen zweiseitigen Apartment mit durchdachtem Grundriss, gelegen im beliebten Stadtteil Gumieńce. Dieses charmante Zuhause befindet sich im ersten Obergeschoss eines gepflegten 4-Parteien-Hauses aus dem Jahr 2018. Jede Einheit verfügt über einen privaten, unabhängigen Eingang – ideal für alle, die Wert auf Privatsphäre legen.
Das Grundstück ist komplett umzäunt und durch ein ferngesteuertes Einfahrtstor gesichert.
Raumaufteilung und Ausstattung
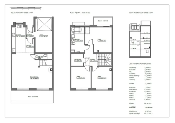
Die Wohnfläche von insgesamt 98,6 m² erstreckt sich über zwei Etagen und bietet viel Platz für komfortables Wohnen:
-
Erdgeschoss: Offener Wohnbereich mit moderner Einbauküche sowie Zugang zur südwestlich orientierten Terrasse (8 m²), Gäste-WC und Hauswirtschaftsraum.
-
Obergeschoss: Drei helle Schlafzimmer, darunter ein Hauptschlafzimmer mit eigener begehbarer Ankleide. Ein stilvolles Badezimmer mit Badewanne, Bidet, Waschbecken, Waschmaschine und Handtuchheizkörper komplettiert diese Etage.
Zusätzliche Nutzfläche bietet ein ausbaubarer Dachboden mit ca. 44 m² – perfekt als Hobbyraum, Büroraum oder Abstellfläche.
Komfort-Highlights
- Klimaanlage in jedem Schlafzimmer, steuerbar via WLAN
- Elektrische Rollläden an allen Fenstern mit Fernbedienung
- Automatische Markise auf der Terrasse
- Hochwertige Kunststofffenster und Laminatböden
- Kabel-TV und Highspeed-Internetanschluss
- Moderne Einbauküche mit Kühlschrank, Backofen und Geschirrspüler
Praktische Extras
Zum Apartment gehört ein überdachter Stellplatz (im Preis enthalten). Zusätzlich stehen ein gemeinschaftlicher Fahrradraum sowie ein weiterer Besucherparkplatz zur Verfügung.
Das Wohnen ist ohne Hausgeld organisiert. Die Eigentümergemeinschaft hat sich auf einen monatlichen Beitrag von €35 (PLN 150) für Instandhaltungsmaßnahmen verständigt.
Die Versorgung mit Warmwasser und Wärme erfolgt über eine moderne Gas-Zentralheizung mit 2-Kreislauf-System. Die monatlichen Heizkosten im Winter (für eine vierköpfige Familie) überschreiten nicht €117 (PLN 500), in den Sommermonaten liegen sie bei ca. €23 (PLN 100). Strom, Wasser und Müllentsorgung werden separat abgerechnet.
Fazit
Dieses Apartment ist die ideale Wahl für Paare oder Familien, die ein modernes Zuhause mit hoher Lebensqualität und freundlicher Nachbarschaft suchen. Es besticht durch seinen sehr guten Zustand, durchdachte Ausstattung und die ruhige sowie grüne Umgebung.
Einziehen und wohlfühlen – Ihr neues Zuhause in Gumieńce wartet auf Sie!
Szczegóły
Attraktives und modernes Apartment in Gumieńce
Typ der Immobilie: Wohnung
Wohnfläche: 98,60 m²
Lage: Gumieńce – ruhige, gepflegte Siedlungsstraße
Eigentumsform des Grundstücks: Eigentum
Baujahr: 2018
Gebäudezustand: Sehr gut
Standard der Wohnung: Sehr gut
Wandmaterial: Silikat
Anzahl der Etagen (inkl. Erdgeschoss): 1
Raumaufteilung:
- 3 Zimmer mit Flächen von 10 m², 10 m² und 18 m²
- Offene Küche (Kochnische)
- 2 Badezimmer
- 1 separates WC
- Garderobe
- 1 Balkon
- 1 Terrasse mit Fläche von 8 m²
Ausstattung & Merkmale:
- Fenster: Kunststoff
- Boden: Paneele
- Heizung: Gaszentralheizung mit 2-Kreis-Gaskessel
- Klimaanlage
- Stromanschluss 400V (Starkstrom)
- Gasanschluss
- Vollständig umzäuntes Grundstück
- Internetanschluss
- Kabel-TV
- Gegensprechanlage
Küche und Haushaltsgeräte:
- Kühlschrank
- Waschmaschine
- Backofen
- Geschirrspüler
Badezimmerausstattung:
- Handtuchheizkörper
- Bidet
- Waschbecken
- Badewanne
- Waschmaschine
Zusätzliche Annehmlichkeiten:
- Garage
Nebenkosten:
- Monatliche Kosten für Verwaltung: €93 (PLN 400)
- Jährliche Grundsteuer: €82 (PLN 350)
Uwaga
- Pierwsze zdjęcie w naszej galerii zostało lekko zmodyfikowane, aby pokazać, jak nieruchomość mogłaby wyglądać – na przykład po zmianie koloru ścian. Kolejne zdjęcia przedstawiają rzeczywisty stan nieruchomości.
- Cena podana w euro odpowiada cenie w złotych, jednak ze względu na wahania kursów walut jest zawsze wartością przybliżoną. W naszych ogłoszeniach zawsze podajemy również cenę w złotych, zgodnie z życzeniem sprzedającego.
Informacje o polskich praktykach rynku nieruchomości:
- Ograniczone informacje o lokalizacji: W Polsce przyjęło się, że ogłoszenia nieruchomości nie ujawniają dokładnego adresu nieruchomości.
- Rzuty: Szczegółowe plany pięter nie zawsze są dostępne w ofertach.
Jako biuro nieruchomości zapewniamy kompleksową obsługę. Reprezentujemy Cię jako kupującego.
Współpracujemy ze sprawdzonymi partnerami (wycena nieruchomości, doradztwo prawne i podatkowe, tłumaczenia przysięgłe, remonty).
Przy inwestycjach kapitałowych oferujemy również zarządzanie nieruchomością.
Osobiste wsparcie – transparentne i kompetentne.
Cechy nieruchomości
- Gas
- Klimaanlage
- Zaun
- Garage
- Garderobe
- Terrasse
- Garten
Te nieruchomości mogą Cię również zainteresować
O nas
Witamy u Twojego partnera na rynku nieruchomości w Szczecinie i na Pomorzu Zachodnim!
Jesteśmy zaangażowanym biurem nieruchomości z wieloletnim doświadczeniem na lokalnym rynku. W naszej ofercie znajdziesz szeroki wybór nieruchomości w Szczecinie oraz atrakcyjne obiekty nad polskim Bałtykiem – do zamieszkania, jako inwestycję kapitałową lub na cele wypoczynkowe.
Mówimy po polsku i po niemiecku, profesjonalnie przeprowadzimy Cię przez cały proces kupna lub sprzedaży. Mieszkanie, dom, działka czy nieruchomość wakacyjna – na pewno znajdziemy odpowiedni adres dla Ciebie!
Zapraszamy na filiżankę kawy do naszego biura lub po prostu skontaktuj się z nami. Czekamy na Ciebie!
Współpraca z nami
Jesteśmy biurem nieruchomości współpracującym z agencjami nieruchomości w województwie zachodniopomorskim. Reprezentujemy wyłącznie jedną stronę transakcji – klienta z Niemiec lub krajów DACH. W jego imieniu negocjujemy cenę, weryfikujemy ofertę i zajmujemy się wszelkimi formalnościami.
Wspieramy naszych klientów również po zakupie i pozostajemy z nimi w kontakcie. Na życzenie pomagamy przy remoncie lub kompleksowej renowacji nieruchomości. Oferujemy również zarządzanie wynajmowanymi nieruchomościami – w Szczecinie i najbliższych okolicach.
Przywiązujemy dużą wagę do jasnych zasad i uczciwości. Nasze prowizje odpowiadają stawkom obowiązującym w Polsce: 3,69% ceny zakupu dla mieszkań i domów oraz 6,15% dla działek. Prowizja jest wymagalna i płatna u notariusza przy podpisaniu umowy.
Współpracujemy z renomowaną, niemieckojęzyczną kancelarią notarialną w Szczecinie.
Korzyści podatkowe
Przy zakupie nieruchomości z rynku wtórnego podatek od czynności cywilnoprawnych wynosi jedynie 2%, a przy rynku pierwotnym nie ma podatku PCC. Dodatkowo podatek od nieruchomości w Polsce jest naliczany od powierzchni i jest bardzo niski.