Modernes Reihenhaus in Stettin-Gumieńce mit Garten, Garage und Dachstudio
307,000 €
Opis
Neues Reihenhaus auf den Gumieńce – attraktives Zuhause in ruhiger Lage
Willkommen in Ihrem neuen Zuhause im beliebten Stadtteil Gumieńce! Diese moderne Reihenhaus-Investition befindet sich in einem ruhigen Wohngebiet, umgeben von niedriger Einfamilienhausbebauung – ideal für Familien oder Paare, die eine komfortable und gut angebundene Umgebung suchen.
Objektdetails
- Haustyp: Reihenmittelhaus
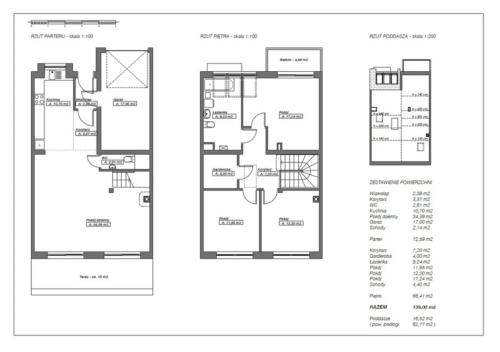
- Wohnfläche: ca. 139 m² + ausgebautes Dachgeschoss
- Grundstück: ca. 178 m²
Erdgeschoss – ca. 72,59 m²
- Großzügiger Wohnbereich mit Zugang zum Garten
- Separate Küche
- Gäste-WC
- Eingangsbereich mit Windfang und Flur
- Integrierte Garage (ca. 17 m²)
- Deckenhöhe: 2,90 m
Obergeschoss – ca. 66,41 m²
- Drei gemütliche Schlafzimmer
- Praktischer Flur
- Badezimmer
- Geräumige Ankleide
- Deckenhöhe: 2,70 m
Dachgeschoss
- Nutzfläche ca. 16,52 m² (Gesamtbodenfläche: 62,77 m²)
- Vielseitig nutzbar – z. B. als Arbeitszimmer, Spielraum oder Hobbybereich
Hinweis: Detaillierte Raumaufteilung entnehmen Sie bitte dem beigefügten Grundriss.
Ausstattung und Bauweise
- Solide Bauweise: Porotherm-Keramikziegel mit 15 cm Wärmedämmung
- Doppelte Trennwände zu den Nachbarhäusern für mehr Privatsphäre und Schallschutz
- Satteldach mit Zementziegeln
- 3-fach verglaste Kunststofffenster
- Elektrisch gesteuerte Außenrollläden
- Schiebetür im Wohnzimmer mit Zugang zur Terrasse
Technische Ausstattung
- Moderne Alarmanlage mit Zentraleinheit und Sensoren
- Vorbereitungen für Videoüberwachung
- TV- und Internetverkabelung
- Zentrale Staubsaugeranlage
- Fußbodenheizung im gesamten Haus
- Effiziente Gastherme für Heizung und Warmwasser
Außenbereich
- Geschmackvoll gestalteter und umzäunter Garten
- Zufahrt mit Stellplatz direkt vor der Garage
Diese Immobilie vereint durchdachte Architektur, hochwertige Ausstattung und eine familienfreundliche Lage. Genießen Sie Ihren privaten Garten, moderne Technologien und großzügige Raumaufteilung auf mehreren Ebenen.
Kontaktieren Sie uns gerne für weitere Informationen oder zur Vereinbarung eines Besichtigungstermins. Wir freuen uns auf Sie!
Szczegóły
Immobilienangebot – Reihenmittelhaus in Gumieńce, Stettin
Objekttyp: Haus
Haustyp: Reihenmittelhaus
Ort: Gumieńce, Stettin
Baujahr: 2023
Zustand: Im Ausbauzustand (Developerstandard)
Bauweise: Ziegel (Keramikziegel)
Gesamtfläche: 139,00 m²
Nutzfläche: 139,00 m²
Grundstücksfläche: 178,00 m²
Preis: ~1.099.000 PLN~
Ausstattungsmerkmale:
- Garage: ✔️
- Eigener Garten: ✔️
- Terrasse: ✔️ (15 m²)
- Balkon: ✔️ (1 Stück)
- Ankleidezimmer: ✔️
- Küche: Offene Küche (10,70 m²)
- Badezimmer: 1
- WC separat: 1
- Dachbedeckung: Betondachziegel
- Energieversorgung: Stromanschluss vorhanden
- Gasversorgung: Anschluss vorhanden
Beschreibung:
Zum Verkauf steht ein modernes Reihenmittelhaus im attraktiven Stadtteil Gumieńce in Stettin. Das im Jahr 2023 errichtete Haus befindet sich im sogenannten Developerstandard – ideal für Käufer, die ihre Innenraumgestaltung individuell umsetzen möchten.
Die Gesamtwohnfläche von 139 m² verteilt sich auf zwei Ebenen und bietet ausreichend Platz für eine Familie. Der offene Küchenbereich mit einer Fläche von 10,70 m² lässt sich harmonisch ins Wohnkonzept integrieren. Zusätzlich verfügt das Haus über ein separates WC sowie ein großzügiges Badezimmer.
Ein besonderes Highlight dieser Immobilie ist die sonnige Terrasse (15 m²), die direkt an den eigenen Garten angrenzt – ein perfekter Ort zum Entspannen. Zudem gibt es einen Balkon, ein praktisches Ankleidezimmer sowie eine Garage, die komfortables Parken ermöglicht.
Das Haus wurde mit hochwertigen Materialien erbaut, u. a. mit keramischen Ziegeln und einer robusten Betondachziegeleindeckung. Alle Anschlüsse – Strom und Gas – sind vorhanden, was den zukünftigen Ausbau und Bezug deutlich erleichtert.
Highlights auf einen Blick:
- Neubau (2023) im Developerstandard
- Funktionaler Grundriss mit großzügiger Wohnfläche
- Eigene Grünfläche und Terrasse
- Garage & Balkon vorhanden
- Ruhige Lage im Stadtteil Gumieńce
Ein Haus mit großem Potenzial für Ihr neues Zuhause – gestalten Sie es nach Ihren eigenen Vorstellungen.
Kontaktieren Sie uns gerne für weitere Informationen oder zur Vereinbarung eines Besichtigungstermins.
Uwaga
- Pierwsze zdjęcie w naszej galerii zostało lekko zmodyfikowane, aby pokazać, jak nieruchomość mogłaby wyglądać – na przykład po zmianie koloru ścian. Kolejne zdjęcia przedstawiają rzeczywisty stan nieruchomości.
- Cena podana w euro odpowiada cenie w złotych, jednak ze względu na wahania kursów walut jest zawsze wartością przybliżoną. W naszych ogłoszeniach zawsze podajemy również cenę w złotych, zgodnie z życzeniem sprzedającego.
Informacje o polskich praktykach rynku nieruchomości:
- Ograniczone informacje o lokalizacji: W Polsce przyjęło się, że ogłoszenia nieruchomości nie ujawniają dokładnego adresu nieruchomości.
- Rzuty: Szczegółowe plany pięter nie zawsze są dostępne w ofertach.
Jako biuro nieruchomości zapewniamy kompleksową obsługę. Reprezentujemy Cię jako kupującego.
Współpracujemy ze sprawdzonymi partnerami (wycena nieruchomości, doradztwo prawne i podatkowe, tłumaczenia przysięgłe, remonty).
Przy inwestycjach kapitałowych oferujemy również zarządzanie nieruchomością.
Osobiste wsparcie – transparentne i kompetentne.
Cechy nieruchomości
- Gas
- Garage
- Garten
- Garderobe
- Terrasse
Te nieruchomości mogą Cię również zainteresować
O nas
Witamy u Twojego partnera na rynku nieruchomości w Szczecinie i na Pomorzu Zachodnim!
Jesteśmy zaangażowanym biurem nieruchomości z wieloletnim doświadczeniem na lokalnym rynku. W naszej ofercie znajdziesz szeroki wybór nieruchomości w Szczecinie oraz atrakcyjne obiekty nad polskim Bałtykiem – do zamieszkania, jako inwestycję kapitałową lub na cele wypoczynkowe.
Mówimy po polsku i po niemiecku, profesjonalnie przeprowadzimy Cię przez cały proces kupna lub sprzedaży. Mieszkanie, dom, działka czy nieruchomość wakacyjna – na pewno znajdziemy odpowiedni adres dla Ciebie!
Zapraszamy na filiżankę kawy do naszego biura lub po prostu skontaktuj się z nami. Czekamy na Ciebie!
Współpraca z nami
Jesteśmy biurem nieruchomości współpracującym z agencjami nieruchomości w województwie zachodniopomorskim. Reprezentujemy wyłącznie jedną stronę transakcji – klienta z Niemiec lub krajów DACH. W jego imieniu negocjujemy cenę, weryfikujemy ofertę i zajmujemy się wszelkimi formalnościami.
Wspieramy naszych klientów również po zakupie i pozostajemy z nimi w kontakcie. Na życzenie pomagamy przy remoncie lub kompleksowej renowacji nieruchomości. Oferujemy również zarządzanie wynajmowanymi nieruchomościami – w Szczecinie i najbliższych okolicach.
Przywiązujemy dużą wagę do jasnych zasad i uczciwości. Nasze prowizje odpowiadają stawkom obowiązującym w Polsce: 3,69% ceny zakupu dla mieszkań i domów oraz 6,15% dla działek. Prowizja jest wymagalna i płatna u notariusza przy podpisaniu umowy.
Współpracujemy z renomowaną, niemieckojęzyczną kancelarią notarialną w Szczecinie.
Korzyści podatkowe
Przy zakupie nieruchomości z rynku wtórnego podatek od czynności cywilnoprawnych wynosi jedynie 2%, a przy rynku pierwotnym nie ma podatku PCC. Dodatkowo podatek od nieruchomości w Polsce jest naliczany od powierzchni i jest bardzo niski.