Stettin: Modernes 3-Zimmer-Apartment mit Balkon, Terrasse und Garten in Toplage
257,000 €
Opis
Stilvolles 3-Zimmer-Apartment mit Balkon, Terrasse und Garten in bester Lage von Stettin
Willkommen in Ihrem zukünftigen Zuhause! Dieses großzügige 3-Zimmer-Apartment bietet auf 77,55 m² Wohnfläche viel Raum für individuelle Gestaltungsideen. Die Wohnung liegt im 3. Obergeschoss eines modernen Neubaus im lebendigen, aufstrebenden Stadtteil Łasztownia, nur einen Steinwurf vom historischen Zentrum Stettins und dem Oderufer entfernt. Ideal für Familien, Stadtliebhaber, Investoren sowie Wassersportfreunde und Naturliebhaber.
Details zur Wohnung:
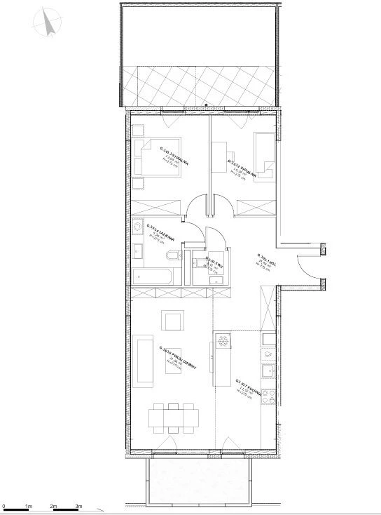
- Wohnzimmer (21,56 m²) mit Zugang zum Balkon (7,15 m²)
- Zwei Schlafzimmer (12,58 m² und 10,34 m²) mit Zugang zur Terrasse (9,81 m²) und privatem Garten (14,70 m²)
- Separate Küche (11,02 m²) – viel Platz zum Kochen und Gestalten
- Badezimmer (5,56 m²) sowie separates WC (2,01 m²)
- Großzügiger Flur (14,48 m²) mit viel Platz für Stauraum
Die Wohnung wird im entwicklungsfähigen Zustand (Rohbau) übergeben, sodass Sie Ihr neues Zuhause ganz nach Ihren Wünschen gestalten können.
Ausstattung und Architektur:
- Neubau aus dem Jahr 2024 – hochwertige Bauweise im modernen Stil
- Raumhöhe bis zu 2,76 m – großzügiges Raumgefühl
- Großflächige Panoramafenster sorgen für viel Licht und ein offenes Wohnambiente
- Balkon, Terrasse und eigener Garten bieten zusätzlichen Komfort
- Eleganter Eingangsbereich und hochwertige Gemeinschaftsflächen
- Granitwege mit integrierter Beleuchtung schaffen eine exklusive Atmosphäre
- Barrierefreie Zugänge für Senioren und Menschen mit eingeschränkter Mobilität
- Fahrradboxen und Fahrradräume für Bewohner im Gebäude
- Gebäude mit Fahrstuhl, Alarmanlage, Videoüberwachung sowie Gegensprechanlage
Zusätzliche Optionen (separat erwerbbar):
- Tiefgaragenstellplätze im beheizten Parkhaus
- Kellerabteile
- Fahrradboxen
Umgebung und Infrastruktur:
Die Lage bietet ideale Bedingungen für urbanes Wohnen mit Nähe zur Natur:
- Direkt an der Oder gelegen – perfekter Ausgangspunkt für Spaziergänge und Freizeitaktivitäten
- Nur wenige Gehminuten zur Altstadt und dem Zentrum von Stettin
- Exzellente Verkehrsanbindung: Straßenbahn, Bus, Hauptbahnhof (PKP), Busbahnhof (PKS)
- Einkaufsmöglichkeiten in unmittelbarer Nähe (u.a. Markt Tobruk, Einkaufszentrum Kaskada)
- Bildungsangebote in der Umgebung: Universitäten (PUM, ZUT, Universität Stettin), Schulen, Kindergärten
- Großes Kulturangebot: Morskie Centrum Nauki, Oper, Nationalmuseum, Philharmonie, Theater u.v.m.
- Optimale Grundversorgung mit Apotheken, Banken, Gastronomie und Spielplätzen in der Nähe
- Viele öffentliche Parkplätze und überdurchschnittlich viele Tiefgaragenplätze im Gebäude
Ein wunderbares Angebot für Eigennutzer und Kapitalanleger gleichermaßen – attraktiv dank Lage, Qualität und vielseitigem Nutzungspotenzial.
Verfügbar ab dem 18.08.2025 – reservieren Sie jetzt Ihr künftiges Zuhause oder Ihre nächste Investition!
Szczegóły
Wohnung in attraktiver Lage auf der Łasztownia-Insel
Verfügbar ab: 18.08.2025
Wohnfläche: 77,55 m²
Gebäudeart: Apartmenthaus
Baujahr: 2024
Ausbaustandard: Rohbau des Bauträgers
Wandmaterial: Silikat
Etagenanzahl (inkl. Erdgeschoss): 5
Raumhöhe: 275 cm
Raumaufteilung
- Wohnzimmer: 21,56 m²
- Zimmer 2: 12,58 m²
- Zimmer 3: 10,34 m²
- Küche (separat): 11,02 m²
- Badezimmer: 5,56 m²
- WC: 1 separates WC
Ausstattung
- Heizung und Warmwasser: Fernwärme
- Fußbodenart: Beton
- Aufzug: vorhanden
- Sicherheitsmerkmale: Alarmanlage, Videoüberwachung, Gegensprechanlage
- Außenbereiche: 1 Balkon, 1 Terrasse, Garten
- Garage: vorhanden
Lagevorteile
Zentrale und zugleich naturnahe Lage auf der Insel Łasztownia – in unmittelbarer Nähe befinden sich:
- Flussufer
- Geschäft
- Kindergarten
- Grundschule
- Hochschule
- Bahnhof (PKP)
- Busbahnhof (PKS)
- Marina
- Öffentliche Verkehrsmittel
- Apotheke
- Gastronomiebetriebe
- Bank
- Spielplatz
Ideal für alle, die urbanes Wohnen in Kombination mit Nähe zur Natur und guter Infrastruktur suchen.
Uwaga
- Pierwsze zdjęcie w naszej galerii zostało lekko zmodyfikowane, aby pokazać, jak nieruchomość mogłaby wyglądać – na przykład po zmianie koloru ścian. Kolejne zdjęcia przedstawiają rzeczywisty stan nieruchomości.
- Cena podana w euro odpowiada cenie w złotych, jednak ze względu na wahania kursów walut jest zawsze wartością przybliżoną. W naszych ogłoszeniach zawsze podajemy również cenę w złotych, zgodnie z życzeniem sprzedającego.
Informacje o polskich praktykach rynku nieruchomości:
- Ograniczone informacje o lokalizacji: W Polsce przyjęło się, że ogłoszenia nieruchomości nie ujawniają dokładnego adresu nieruchomości.
- Rzuty: Szczegółowe plany pięter nie zawsze są dostępne w ofertach.
Jako biuro nieruchomości zapewniamy kompleksową obsługę. Reprezentujemy Cię jako kupującego.
Współpracujemy ze sprawdzonymi partnerami (wycena nieruchomości, doradztwo prawne i podatkowe, tłumaczenia przysięgłe, remonty).
Przy inwestycjach kapitałowych oferujemy również zarządzanie nieruchomością.
Osobiste wsparcie – transparentne i kompetentne.
Cechy nieruchomości
- Aufzug
- Garage
- Garten
- Terrasse
- Balkon
Te nieruchomości mogą Cię również zainteresować
O nas
Witamy u Twojego partnera na rynku nieruchomości w Szczecinie i na Pomorzu Zachodnim!
Jesteśmy zaangażowanym biurem nieruchomości z wieloletnim doświadczeniem na lokalnym rynku. W naszej ofercie znajdziesz szeroki wybór nieruchomości w Szczecinie oraz atrakcyjne obiekty nad polskim Bałtykiem – do zamieszkania, jako inwestycję kapitałową lub na cele wypoczynkowe.
Mówimy po polsku i po niemiecku, profesjonalnie przeprowadzimy Cię przez cały proces kupna lub sprzedaży. Mieszkanie, dom, działka czy nieruchomość wakacyjna – na pewno znajdziemy odpowiedni adres dla Ciebie!
Zapraszamy na filiżankę kawy do naszego biura lub po prostu skontaktuj się z nami. Czekamy na Ciebie!
Współpraca z nami
Jesteśmy biurem nieruchomości współpracującym z agencjami nieruchomości w województwie zachodniopomorskim. Reprezentujemy wyłącznie jedną stronę transakcji – klienta z Niemiec lub krajów DACH. W jego imieniu negocjujemy cenę, weryfikujemy ofertę i zajmujemy się wszelkimi formalnościami.
Wspieramy naszych klientów również po zakupie i pozostajemy z nimi w kontakcie. Na życzenie pomagamy przy remoncie lub kompleksowej renowacji nieruchomości. Oferujemy również zarządzanie wynajmowanymi nieruchomościami – w Szczecinie i najbliższych okolicach.
Przywiązujemy dużą wagę do jasnych zasad i uczciwości. Nasze prowizje odpowiadają stawkom obowiązującym w Polsce: 3,69% ceny zakupu dla mieszkań i domów oraz 6,15% dla działek. Prowizja jest wymagalna i płatna u notariusza przy podpisaniu umowy.
Współpracujemy z renomowaną, niemieckojęzyczną kancelarią notarialną w Szczecinie.
Korzyści podatkowe
Przy zakupie nieruchomości z rynku wtórnego podatek od czynności cywilnoprawnych wynosi jedynie 2%, a przy rynku pierwotnym nie ma podatku PCC. Dodatkowo podatek od nieruchomości w Polsce jest naliczany od powierzchni i jest bardzo niski.