Maisonette in Stobno mit Garten, 2 Terrassen & Stellplätzen – Neubau 2024
196,000 €
Opis
Modernes Maisonette mit zwei Terrassen, Garten und Stellplätzen – Erstbezug aus 2024
Zum Verkauf steht eine großzügige, lichtdurchflutete Maisonette-Wohnung mit einer Nutzfläche von insgesamt ca. 118 m² in einem neu errichteten Zweifamilienhaus aus dem Jahr 2024. Die Immobilie wird im hochwertigen Entwicklerstandard angeboten – der Käufer ist von der PCC-Steuer befreit.
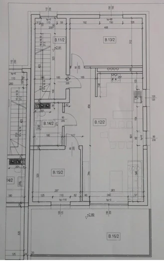
Aufteilung der Wohneinheit
1. Etage – ca. 70,70 m² Nutzfläche:
- Geräumiges Wohnzimmer mit offener Küche
- Schlafzimmer
- Kinder- oder Arbeitszimmer
- Flur
- Modernes Badezimmer
- Sonnige Terrasse mit ca. 21 m²
Dachgeschoss – ca. 45,32 m² Nutzfläche:
- Wohnbereich mit Kochnische
- Schlafzimmer
- Badezimmer
- Flur
- Weitere Terrasse mit ca. 18 m²
Die durchdachte Raumaufteilung bietet ideale Voraussetzungen für Familien, Paare oder Kapitalanleger. Zusätzlich besteht die Möglichkeit, separate Eingänge zu realisieren und beide Ebenen in zwei unabhängige Wohneinheiten zu unterteilen.
Zusätzliche Ausstattung & Vorteile
- 2 zugeordnete Pkw-Stellplätze direkt am Haus
- Privater Garten, ideal für Entspannung oder Spielbereich für Kinder
- Gasbetriebene Fußbodenheizung für behaglichen Wohnkomfort
- Anschluss an die zentrale Wasserversorgung, Strom, Schwerkraftkanalisation sowie Glasfaser-Internet
Diese moderne Wohnung besticht nicht nur durch ihre vielseitige Nutzungsmöglichkeit, sondern auch durch ihre klare, zeitgemäße Architektur und das Potenzial zur individuellen Gestaltung.
Erleben Sie ein neues Wohngefühl in einem attraktiven Neubau – ideal als Eigenheim oder Investition. Eine Besichtigung lohnt sich!
Szczegóły
Immobilienangebot – Wohnung zum Verkauf
Objekttyp: Wohnung
Gesamtfläche: 118,00 m²
Baujahr: 2024
Standard: Entwicklertyp (rohbauähnlicher Zustand)
Gebäudestatus: Sehr guter Zustand
Wandmaterial: Silikat
Küchentyp: Kochnische
Anzahl der Bäder: 2
Zufahrtsstraße: Befestigt
Etagenanzahl (inkl. Erdgeschoss): 1
Warmwasserquelle: Zweikreis-Gastherme
Heizung: Gas-Zentralheizung
Telefonanschluss: Ja
Starkstromanschluss (400V): Ja
Gasanschluss: Ja
Internet: Ja
Kabelfernsehen: Ja
Alarmanlage: Ja
Überwachung / Videoüberwachung: Ja
Fenstertyp: Kunststofffenster
Bodenbelag: Beton
Umzäunung: Vollständig eingefriedet
Garage: Ja
Anzahl der Stellplätze: 2
Garten: Ja
Ankleidezimmer: Ja
Anzahl der Balkone: 2
Nächster Lebensmittelladen: In der Nähe
Nächster Kindergarten: In der Nähe
Nächste Grundschule: In der Nähe
Öffentliche Verkehrsmittel: In der Nähe
Nächstes Restaurant: In der Nähe
Nächster Spielplatz: In der Nähe
Uwaga
- Pierwsze zdjęcie w naszej galerii zostało lekko zmodyfikowane, aby pokazać, jak nieruchomość mogłaby wyglądać – na przykład po zmianie koloru ścian. Kolejne zdjęcia przedstawiają rzeczywisty stan nieruchomości.
- Cena podana w euro odpowiada cenie w złotych, jednak ze względu na wahania kursów walut jest zawsze wartością przybliżoną. W naszych ogłoszeniach zawsze podajemy również cenę w złotych, zgodnie z życzeniem sprzedającego.
Informacje o polskich praktykach rynku nieruchomości:
- Ograniczone informacje o lokalizacji: W Polsce przyjęło się, że ogłoszenia nieruchomości nie ujawniają dokładnego adresu nieruchomości.
- Rzuty: Szczegółowe plany pięter nie zawsze są dostępne w ofertach.
Jako biuro nieruchomości zapewniamy kompleksową obsługę. Reprezentujemy Cię jako kupującego.
Współpracujemy ze sprawdzonymi partnerami (wycena nieruchomości, doradztwo prawne i podatkowe, tłumaczenia przysięgłe, remonty).
Przy inwestycjach kapitałowych oferujemy również zarządzanie nieruchomością.
Osobiste wsparcie – transparentne i kompetentne.
Cechy nieruchomości
- Gas
- Zaun
- Garage
- Garten
- Garderobe
- nahe der Grenze
Te nieruchomości mogą Cię również zainteresować
O nas
Witamy u Twojego partnera na rynku nieruchomości w Szczecinie i na Pomorzu Zachodnim!
Jesteśmy zaangażowanym biurem nieruchomości z wieloletnim doświadczeniem na lokalnym rynku. W naszej ofercie znajdziesz szeroki wybór nieruchomości w Szczecinie oraz atrakcyjne obiekty nad polskim Bałtykiem – do zamieszkania, jako inwestycję kapitałową lub na cele wypoczynkowe.
Mówimy po polsku i po niemiecku, profesjonalnie przeprowadzimy Cię przez cały proces kupna lub sprzedaży. Mieszkanie, dom, działka czy nieruchomość wakacyjna – na pewno znajdziemy odpowiedni adres dla Ciebie!
Zapraszamy na filiżankę kawy do naszego biura lub po prostu skontaktuj się z nami. Czekamy na Ciebie!
Współpraca z nami
Jesteśmy biurem nieruchomości współpracującym z agencjami nieruchomości w województwie zachodniopomorskim. Reprezentujemy wyłącznie jedną stronę transakcji – klienta z Niemiec lub krajów DACH. W jego imieniu negocjujemy cenę, weryfikujemy ofertę i zajmujemy się wszelkimi formalnościami.
Wspieramy naszych klientów również po zakupie i pozostajemy z nimi w kontakcie. Na życzenie pomagamy przy remoncie lub kompleksowej renowacji nieruchomości. Oferujemy również zarządzanie wynajmowanymi nieruchomościami – w Szczecinie i najbliższych okolicach.
Przywiązujemy dużą wagę do jasnych zasad i uczciwości. Nasze prowizje odpowiadają stawkom obowiązującym w Polsce: 3,69% ceny zakupu dla mieszkań i domów oraz 6,15% dla działek. Prowizja jest wymagalna i płatna u notariusza przy podpisaniu umowy.
Współpracujemy z renomowaną, niemieckojęzyczną kancelarią notarialną w Szczecinie.
Korzyści podatkowe
Przy zakupie nieruchomości z rynku wtórnego podatek od czynności cywilnoprawnych wynosi jedynie 2%, a przy rynku pierwotnym nie ma podatku PCC. Dodatkowo podatek od nieruchomości w Polsce jest naliczany od powierzchni i jest bardzo niski.