Großzügige Maisonettewohnung mit Garten in ruhiger Wohnlage in Stöven
200,000 €
Opis
Großzügige 5-Zimmer-Maisonettewohnung mit Garten in ruhiger Lage in Stobno
Entdecken Sie diese moderne, zweigeschossige 5-Zimmer-Maisonettewohnung im Erstbezug – eine seltene Gelegenheit in der idyllischen Umgebung von Stobno. Die Immobilie wurde 2024 erbaut und befindet sich im hochwertigen Rohbauzustand. Umgeben von viel Natur bietet diese Wohnung eine ideale Kombination aus Ruhe, Komfort und Flexibilität.
Zwei eigenständige Wohneinheiten unter einem Dach
Ein besonderes Highlight dieser Immobilie ist die Möglichkeit, sie als zwei separate Wohnungen mit eigenen Eingängen und einem unabhängigen Treppenhaus zu nutzen. Perfekt für Mehrgenerationenwohnen, als Kapitalanlage oder für die Vermietung einer Einheit.
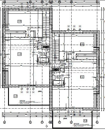
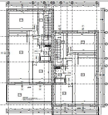
Raumaufteilung – durchdacht und funktional
Gesamtfläche: 138,16 m²
Obergeschoss: - Heller Wohnbereich mit offener Küche und Fenster - Schlafzimmer - Zusätzlicher Raum – ideal als Kinder- oder Arbeitszimmer - Badezimmer - Hauswirtschaftsraum für Technik oder Stauraum
Dachgeschoss: - Großer Wohnbereich mit Küchenanschluss - Schlafzimmer - Modernes Badezimmer
Ausstattung & Merkmale:
- Baujahr: 2024
- Wandmaterial: Silikat – ausgezeichnete Wärmedämmung
- Fenster: Kunststoff
- Küche: mit Fenster
- 2 Badezimmer
- Energieversorgung: Gas, Strom, Wasser, Kanalanschluss
- Zwei zugehörige Parkmöglichkeiten
- Eigener Garten – ideal zum Entspannen oder Gärtnern
- Ruhige Wohngegend mit viel Grün
Diese Immobilie bietet viele Möglichkeiten zur freien Gestaltung und individuellen Nutzung auf zwei Ebenen. Ob als großzügiges Einfamilienhaus oder in Form von zwei separaten Wohneinheiten – hier lassen sich Ihre Wohnträume verwirklichen.
Lassen Sie sich diese vielseitige Immobilie nicht entgehen – entdecken Sie das Potenzial bei einer Besichtigung vor Ort. Wir freuen uns auf Ihren Besuch!
Szczegóły
Großzügige Neubauwohnung mit Garten und Garage – 138 m² in moderner Ausstattung
Objektart: Wohnung
Gesamtfläche: 138,16 m²
Baujahr: 2024
Bauzustand: Neubau (im Entwicklerstandard)
Bauweise / Baumaterial: Silikatsteine
Fenster: Kunststofffenster
Etagen im Gebäude (inkl. EG): 2
Heizung / Gasanschluss: Gasanschluss vorhanden
Innenaufteilung:
Die Wohnung überzeugt durch ihre großzügige Fläche und eine funktionale Raumgestaltung. Sie verfügt über zwei moderne Badezimmer sowie eine Küche mit Fenster – Tageslicht garantiert.
Garage und Garten:
Zur Wohnung gehört eine Garage sowie ein eigener Gartenbereich – perfekt für Familien oder alle, die Ruhe und Privatsphäre schätzen.
Preiszusätze:
Garage: €11.021 (PLN 46.950)
Garten: €5.045 (PLN 21.500)
Ein ideales Objekt für alle, die modernes Wohnen mit großzügigem Raumangebot kombinieren möchten.
Uwaga
- Pierwsze zdjęcie w naszej galerii zostało lekko zmodyfikowane, aby pokazać, jak nieruchomość mogłaby wyglądać – na przykład po zmianie koloru ścian. Kolejne zdjęcia przedstawiają rzeczywisty stan nieruchomości.
- Cena podana w euro odpowiada cenie w złotych, jednak ze względu na wahania kursów walut jest zawsze wartością przybliżoną. W naszych ogłoszeniach zawsze podajemy również cenę w złotych, zgodnie z życzeniem sprzedającego.
Informacje o polskich praktykach rynku nieruchomości:
- Ograniczone informacje o lokalizacji: W Polsce przyjęło się, że ogłoszenia nieruchomości nie ujawniają dokładnego adresu nieruchomości.
- Rzuty: Szczegółowe plany pięter nie zawsze są dostępne w ofertach.
Jako biuro nieruchomości zapewniamy kompleksową obsługę. Reprezentujemy Cię jako kupującego.
Współpracujemy ze sprawdzonymi partnerami (wycena nieruchomości, doradztwo prawne i podatkowe, tłumaczenia przysięgłe, remonty).
Przy inwestycjach kapitałowych oferujemy również zarządzanie nieruchomością.
Osobiste wsparcie – transparentne i kompetentne.
Cechy nieruchomości
- Gas
- Garage
- Garten
Te nieruchomości mogą Cię również zainteresować
O nas
Witamy u Twojego partnera na rynku nieruchomości w Szczecinie i na Pomorzu Zachodnim!
Jesteśmy zaangażowanym biurem nieruchomości z wieloletnim doświadczeniem na lokalnym rynku. W naszej ofercie znajdziesz szeroki wybór nieruchomości w Szczecinie oraz atrakcyjne obiekty nad polskim Bałtykiem – do zamieszkania, jako inwestycję kapitałową lub na cele wypoczynkowe.
Mówimy po polsku i po niemiecku, profesjonalnie przeprowadzimy Cię przez cały proces kupna lub sprzedaży. Mieszkanie, dom, działka czy nieruchomość wakacyjna – na pewno znajdziemy odpowiedni adres dla Ciebie!
Zapraszamy na filiżankę kawy do naszego biura lub po prostu skontaktuj się z nami. Czekamy na Ciebie!
Współpraca z nami
Jesteśmy biurem nieruchomości współpracującym z agencjami nieruchomości w województwie zachodniopomorskim. Reprezentujemy wyłącznie jedną stronę transakcji – klienta z Niemiec lub krajów DACH. W jego imieniu negocjujemy cenę, weryfikujemy ofertę i zajmujemy się wszelkimi formalnościami.
Wspieramy naszych klientów również po zakupie i pozostajemy z nimi w kontakcie. Na życzenie pomagamy przy remoncie lub kompleksowej renowacji nieruchomości. Oferujemy również zarządzanie wynajmowanymi nieruchomościami – w Szczecinie i najbliższych okolicach.
Przywiązujemy dużą wagę do jasnych zasad i uczciwości. Nasze prowizje odpowiadają stawkom obowiązującym w Polsce: 3,69% ceny zakupu dla mieszkań i domów oraz 6,15% dla działek. Prowizja jest wymagalna i płatna u notariusza przy podpisaniu umowy.
Współpracujemy z renomowaną, niemieckojęzyczną kancelarią notarialną w Szczecinie.
Korzyści podatkowe
Przy zakupie nieruchomości z rynku wtórnego podatek od czynności cywilnoprawnych wynosi jedynie 2%, a przy rynku pierwotnym nie ma podatku PCC. Dodatkowo podatek od nieruchomości w Polsce jest naliczany od powierzchni i jest bardzo niski.