Modernes Maisonette mit Garten und Dachterrasse in ruhiger Lage in Stettin-Krzekowo
183,000 €
Opis
Modernes Maisonette-Apartment mit Garten und Terrasse in ruhiger Lage von Szczecin-Krzekowo
Willkommen in Ihrem neuen Zuhause! Dieses charmante, dreigeschossige Apartment befindet sich in einem ruhigen, familienfreundlichen Wohnviertel im gefragten Stadtteil Krzekowo in Stettin. Die Siedlung bietet eine ideale Balance zwischen urbanem Komfort und naturnahem Wohnen ‒ mit ausgezeichnetem Zugang zur Innenstadt sowie zu Freizeit- und Erholungseinrichtungen.
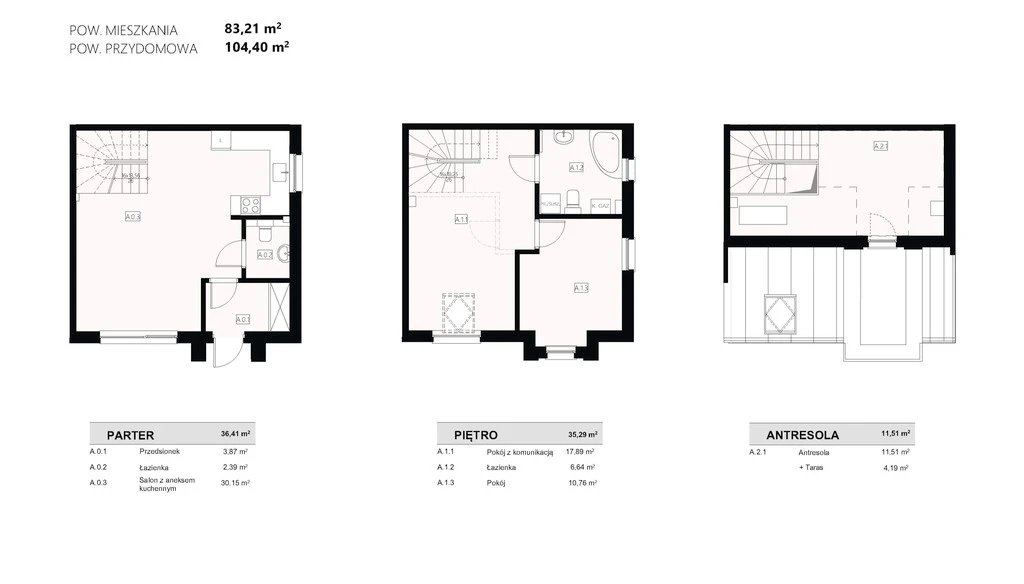
Wohnfläche und Aufteilung
Das Apartment verfügt über eine Gesamtfläche von 83,21 m², verteilt auf drei Ebenen:
- Erdgeschoss: großzügiger Wohnbereich mit offener Küche, Eingangsbereich und Gäste-WC
- 1. Obergeschoss: zwei helle Schlafzimmer sowie ein modernes Badezimmer
- 2. Obergeschoss: offene Galerie mit Zugang zu einer großen Dachterrasse
Privater Garten und Stellplatz
Hervorzuheben ist der private, direkt vom Wohnzimmer aus begehbare Garten mit 104,4 m² – perfekt zum Entspannen, Gärtnern oder Spielen für Kinder.
Ein PKW-Außenstellplatz, günstig in Nähe des Wohnungseingangs gelegen, gehört ebenfalls zur Immobilie.
Es besteht die Möglichkeit, einen weiteren Außenstellplatz zum Preis von €3.500 (PLN 15.000) zu erwerben.
Bautechnik und Ausstattung
Das Gebäude wurde aus Porotherm- und Suporex-Mauerwerk errichtet und mit einer 18 cm dicken Styropor-Dämmung isoliert – dadurch profitieren Sie von einem ausgezeichneten Wärme- und Schallschutz.
- Heizung und Warmwasser erfolgen über eine energieeffiziente Gastherme
- Lüftungssystem mit Wärmerückgewinnung (Rekuperation) sorgt für ein angenehmes Raumklima zu jeder Jahreszeit
Vielfalt an Wohnungstypen
In diesem Projekt stehen 4 verschiedene Wohnungstypen zur Auswahl – mit Wohnflächen zwischen 65 m² und 84 m² sowie variierenden Grundrissen und Gartenflächen.
Die gesamte Wohnsiedlung umfasst 16 stilvoll gestaltete Gebäude in moderner Architektursprache. Jedes Gebäude beherbergt nur zwei Wohneinheiten, was ein hohes Maß an Privatsphäre verspricht.
Baufortschritt
- Baubeginn: 1. Quartal 2024
- Geplante Fertigstellung der ersten Einheiten: 2. Quartal 2025
Diese Wohnung ist eine ideale Lösung für alle, die die Vorzüge eines Hauses genießen möchten, ohne auf die Vorteile des städtischen Lebens verzichten zu müssen. Perfekt geeignet für Familien, Paare und alle, die Komfort schätzen und modernes Wohnen in naturnaher Umgebung suchen.
Szczegóły
Immobilienart: Wohnung
Verfügbar ab: 30.06.2025
Stadtteil: Krzekowo
Gesamtfläche: 83,21 m²
Grundstückseigentum: Eigentum
Gebäudetyp: Haus
Baujahr: 2023
Standard: Entwicklertandard
Wandmaterial: Keramikziegel
Küchentyp: Kochnische
Anzahl der Badezimmer: 1
Anzahl der WCs: 1
Erdgeschosswohnung: Ja
Anzahl der Etagen (inkl. EG): 2
Warmwasseraufbereitung: Gastherme (2-Kreislaufsystem)
Heizung: Gas-Zentralheizung
Gasanschluss: Ja
Gegensprechanlage: Ja
Fenster: Kunststofffenster
Einfriedung: Komplett umzäunt
Garage: Ja
Lage und Umgebung
- Nächstgelegener Lebensmittelladen: in der Nähe
- Nächster Kindergarten: in der Nähe
- Nächste Grundschule: in der Nähe
- Öffentliche Verkehrsmittel: in der Nähe
- Nächster Spielplatz: in der Nähe
Uwaga
- Pierwsze zdjęcie w naszej galerii zostało lekko zmodyfikowane, aby pokazać, jak nieruchomość mogłaby wyglądać – na przykład po zmianie koloru ścian. Kolejne zdjęcia przedstawiają rzeczywisty stan nieruchomości.
- Cena podana w euro odpowiada cenie w złotych, jednak ze względu na wahania kursów walut jest zawsze wartością przybliżoną. W naszych ogłoszeniach zawsze podajemy również cenę w złotych, zgodnie z życzeniem sprzedającego.
Informacje o polskich praktykach rynku nieruchomości:
- Ograniczone informacje o lokalizacji: W Polsce przyjęło się, że ogłoszenia nieruchomości nie ujawniają dokładnego adresu nieruchomości.
- Rzuty: Szczegółowe plany pięter nie zawsze są dostępne w ofertach.
Jako biuro nieruchomości zapewniamy kompleksową obsługę. Reprezentujemy Cię jako kupującego.
Współpracujemy ze sprawdzonymi partnerami (wycena nieruchomości, doradztwo prawne i podatkowe, tłumaczenia przysięgłe, remonty).
Przy inwestycjach kapitałowych oferujemy również zarządzanie nieruchomością.
Osobiste wsparcie – transparentne i kompetentne.
Cechy nieruchomości
- Erdgeschoss
- Gas
- Zaun
- Garage
- Garten
Te nieruchomości mogą Cię również zainteresować
O nas
Witamy u Twojego partnera na rynku nieruchomości w Szczecinie i na Pomorzu Zachodnim!
Jesteśmy zaangażowanym biurem nieruchomości z wieloletnim doświadczeniem na lokalnym rynku. W naszej ofercie znajdziesz szeroki wybór nieruchomości w Szczecinie oraz atrakcyjne obiekty nad polskim Bałtykiem – do zamieszkania, jako inwestycję kapitałową lub na cele wypoczynkowe.
Mówimy po polsku i po niemiecku, profesjonalnie przeprowadzimy Cię przez cały proces kupna lub sprzedaży. Mieszkanie, dom, działka czy nieruchomość wakacyjna – na pewno znajdziemy odpowiedni adres dla Ciebie!
Zapraszamy na filiżankę kawy do naszego biura lub po prostu skontaktuj się z nami. Czekamy na Ciebie!
Współpraca z nami
Jesteśmy biurem nieruchomości współpracującym z agencjami nieruchomości w województwie zachodniopomorskim. Reprezentujemy wyłącznie jedną stronę transakcji – klienta z Niemiec lub krajów DACH. W jego imieniu negocjujemy cenę, weryfikujemy ofertę i zajmujemy się wszelkimi formalnościami.
Wspieramy naszych klientów również po zakupie i pozostajemy z nimi w kontakcie. Na życzenie pomagamy przy remoncie lub kompleksowej renowacji nieruchomości. Oferujemy również zarządzanie wynajmowanymi nieruchomościami – w Szczecinie i najbliższych okolicach.
Przywiązujemy dużą wagę do jasnych zasad i uczciwości. Nasze prowizje odpowiadają stawkom obowiązującym w Polsce: 3,69% ceny zakupu dla mieszkań i domów oraz 6,15% dla działek. Prowizja jest wymagalna i płatna u notariusza przy podpisaniu umowy.
Współpracujemy z renomowaną, niemieckojęzyczną kancelarią notarialną w Szczecinie.
Korzyści podatkowe
Przy zakupie nieruchomości z rynku wtórnego podatek od czynności cywilnoprawnych wynosi jedynie 2%, a przy rynku pierwotnym nie ma podatku PCC. Dodatkowo podatek od nieruchomości w Polsce jest naliczany od powierzchni i jest bardzo niski.