Exklusive Wohnung in Hoffnungshalben – Ruhige Lage nur 500 m vom Ostseestrand entfernt
185,000 €
Opis
Exklusives Apartment in Trzęsacz – Ruhe und Natur nahe der Ostsee genießen
Wir freuen uns, Ihnen ein modernes Apartment in der charmanten Küstenortschaft Trzęsacz präsentieren zu dürfen. Das Anwesen liegt nur ca. 500 Meter vom wunderschönen Sandstrand entfernt – ideal für alle, die Erholung in ruhiger Umgebung suchen und dabei dem Trubel von bekannten Badeorten wie Międzyzdroje oder Świnoujście entgehen möchten.
Das Apartment ist Teil eines stilvollen Neubauprojekts mit 24 Wohneinheiten und Wohnflächen zwischen 29 m² und 66,5 m². Das Gebäude wurde an der Stelle eines ehemaligen Hofstalls errichtet und verbindet moderne Architektur mit dem historischen Charakter des benachbarten Schlosses. Elemente im Fachwerkstil sowie zahlreiche Holzakzente verleihen dem Objekt einen einzigartigen Charme und fügen sich harmonisch in die Umgebung ein.
Details zum Apartment
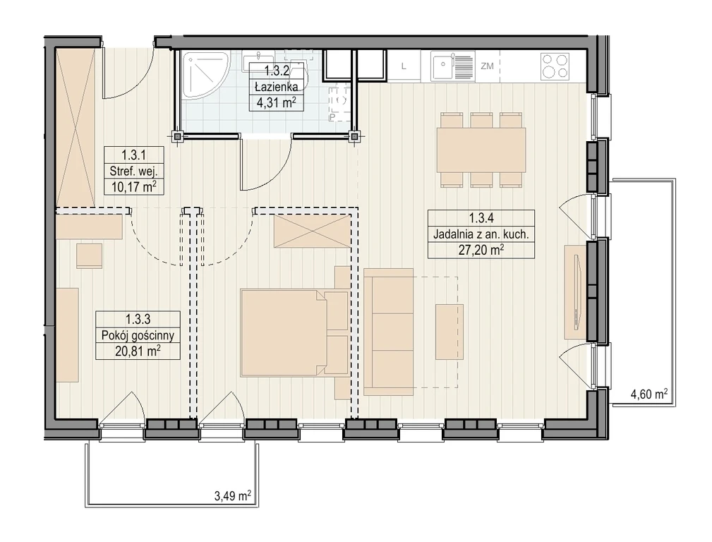
Die angebotene Wohnung befindet sich im Obergeschoss und verfügt über eine Wohnfläche von 62,49 m². Sie besteht aus:
- einem hellen Wohnzimmer mit offener Küchenzeile
- zwei gemütlichen Schlafzimmern
- einem Bad mit moderner Ausstattung
- einem einladenden Flur
Sowohl das Wohnzimmer als auch die beiden Schlafzimmer bieten Zugang zu sonnigen Balkonen mit herrlichem Blick ins Grüne – perfekt, um die frische Meeresluft zu genießen.
Ausstattung und Besonderheiten
- Landschaftlich reizvolle Lage, nur wenige Gehminuten vom Strand entfernt
- Kinderspielplatz und beheizter Außenpool, ausschließlich zur Nutzung durch Eigentümer
- Energieeffizientes Konzept: Photovoltaikanlage auf dem Dach sowie ein Lüftungssystem mit Wärmerückgewinnung (Rekuperation) in jeder Wohneinheit
- Heizung über individuelle Gasthermen
- Geringe Betriebskosten: Betriebskosten betragen nur €1,99/m² (PLN 8,5/m²) und beinhalten die Pflege aller Gemeinschaftsbereiche
- Verkauf im erweiterten Rohbauzustand (developerski) – auf Wunsch kann die Wohnung gegen Aufpreis auch vollständig bezugsfertig („schlüsselfertig“) übergeben werden
Parkmöglichkeiten
Auf dem umzäunten Gelände stehen 24 private Stellplätze zur Verfügung. Ein Parkplatz kann optional zu einem Preis von ca. €8.200 netto (PLN 35.000 netto) erworben werden.
Weitere Informationen
Das Projekt unterliegt der Mehrwertsteuer von 23 %. Der angegebene Preis ist ein Nettopreis.
Die Kombination aus Meeresnähe, modernem Wohnkomfort, ökologischer Bauweise und idyllischer Umgebung macht dieses Angebot zu einer hervorragenden Gelegenheit – sowohl zur Eigennutzung als auch als Wertanlage oder Ferienimmobilie.
Lassen Sie sich verzaubern – wir laden Sie herzlich zu einer unverbindlichen Besichtigung ein!
Szczegóły
Immobilienart: Wohnung
Gesamtfläche: 62,49 m²
Gebäudetyp: Apartmenthaus
Baujahr: 2023
Standard: Bauträgerstandard
Gebäudestatus: Neuwertig
Wandmaterial: Ziegel
Küchentyp: Mit Fenster
Anzahl der Badezimmer: 1
Anzahl der Etagen (inkl. Erdgeschoss): 1
Gasanschluss: Ja
Internetanschluss: Ja
Kabel-TV: Ja
Videoüberwachung: Ja
Garage: Ja
Uwaga
- Pierwsze zdjęcie w naszej galerii zostało lekko zmodyfikowane, aby pokazać, jak nieruchomość mogłaby wyglądać – na przykład po zmianie koloru ścian. Kolejne zdjęcia przedstawiają rzeczywisty stan nieruchomości.
- Cena podana w euro odpowiada cenie w złotych, jednak ze względu na wahania kursów walut jest zawsze wartością przybliżoną. W naszych ogłoszeniach zawsze podajemy również cenę w złotych, zgodnie z życzeniem sprzedającego.
Informacje o polskich praktykach rynku nieruchomości:
- Ograniczone informacje o lokalizacji: W Polsce przyjęło się, że ogłoszenia nieruchomości nie ujawniają dokładnego adresu nieruchomości.
- Rzuty: Szczegółowe plany pięter nie zawsze są dostępne w ofertach.
Jako biuro nieruchomości zapewniamy kompleksową obsługę. Reprezentujemy Cię jako kupującego.
Współpracujemy ze sprawdzonymi partnerami (wycena nieruchomości, doradztwo prawne i podatkowe, tłumaczenia przysięgłe, remonty).
Przy inwestycjach kapitałowych oferujemy również zarządzanie nieruchomością.
Osobiste wsparcie – transparentne i kompetentne.
Cechy nieruchomości
- Gas
- Garage
- Balkon
- an der Ostsee
Te nieruchomości mogą Cię również zainteresować
O nas
Witamy u Twojego partnera na rynku nieruchomości w Szczecinie i na Pomorzu Zachodnim!
Jesteśmy zaangażowanym biurem nieruchomości z wieloletnim doświadczeniem na lokalnym rynku. W naszej ofercie znajdziesz szeroki wybór nieruchomości w Szczecinie oraz atrakcyjne obiekty nad polskim Bałtykiem – do zamieszkania, jako inwestycję kapitałową lub na cele wypoczynkowe.
Mówimy po polsku i po niemiecku, profesjonalnie przeprowadzimy Cię przez cały proces kupna lub sprzedaży. Mieszkanie, dom, działka czy nieruchomość wakacyjna – na pewno znajdziemy odpowiedni adres dla Ciebie!
Zapraszamy na filiżankę kawy do naszego biura lub po prostu skontaktuj się z nami. Czekamy na Ciebie!
Współpraca z nami
Jesteśmy biurem nieruchomości współpracującym z agencjami nieruchomości w województwie zachodniopomorskim. Reprezentujemy wyłącznie jedną stronę transakcji – klienta z Niemiec lub krajów DACH. W jego imieniu negocjujemy cenę, weryfikujemy ofertę i zajmujemy się wszelkimi formalnościami.
Wspieramy naszych klientów również po zakupie i pozostajemy z nimi w kontakcie. Na życzenie pomagamy przy remoncie lub kompleksowej renowacji nieruchomości. Oferujemy również zarządzanie wynajmowanymi nieruchomościami – w Szczecinie i najbliższych okolicach.
Przywiązujemy dużą wagę do jasnych zasad i uczciwości. Nasze prowizje odpowiadają stawkom obowiązującym w Polsce: 3,69% ceny zakupu dla mieszkań i domów oraz 6,15% dla działek. Prowizja jest wymagalna i płatna u notariusza przy podpisaniu umowy.
Współpracujemy z renomowaną, niemieckojęzyczną kancelarią notarialną w Szczecinie.
Korzyści podatkowe
Przy zakupie nieruchomości z rynku wtórnego podatek od czynności cywilnoprawnych wynosi jedynie 2%, a przy rynku pierwotnym nie ma podatku PCC. Dodatkowo podatek od nieruchomości w Polsce jest naliczany od powierzchni i jest bardzo niski.